GA
Fox Close, Timperley, Altrincham
By Gascoigne Halman
£ 675,000
Reviews
3 out of 5 stars
Gascoigne Halman says ..
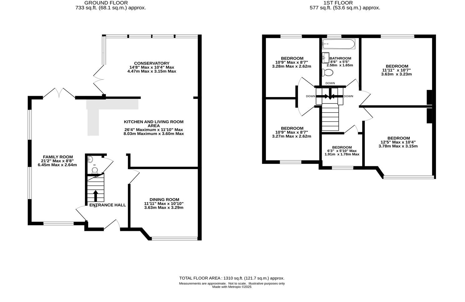
Set in a highly desirable cul-de-sac, this superbly extended semi-detached home offers generous and versatile family accommodation. Ideally located within convenient reach of extremely sought after schools and commuter links, the property features an impressive open-plan kitchen/living area, dini...
Property Oracle says ..
Therefore, we give this property 7 / 10. *Disclaimer: This is our option and does constitute a recommendation or financial advice. Do your own research. *
- Price
- 6
- Condition
- 8
- Location
- 8
- Land
- 7
- Bedrooms
- 5
- Bathrooms
- 1
- Sqft (est)
- 1,264.79
The heatmap indicates the level of crime in the area. The color of the heatmap indicates the crime severity and recency.
Metrics Year-on-Year
- Average area value
- 505,714.00 £Decreased by 1.54 %
- Est sale value
- 627,335.84 £Increased by 32.62 %
- Average area rental value
- 1,900.00 £/moIncreased by 21.17 %
- Est letting value
- 1,264.79 £/moUnchanged by 0.00 %
- Est rental Yield
- 4.51 %Increased by 23.22 %
- Crime Rate
- 0.00 %
from 513,607.00 £
from 473,031.46 £
from 1,568.00 £/mo
from 1,264.79 £/mo
from 3.66 %
from 0.00 %
Agent Activity
Gascoigne Halman created the listing.
Nearby Schools
| Name | Type | Ofsted | Distance |
|---|---|---|---|
| Forest School | Other Independent School | 0.20 KM | |
| Wellington School | Academy Converter | Good | 0.24 KM |
| Willows Primary School | Community School | Good | 0.58 KM |
| St Hugh'S Catholic Primary School | Voluntary Aided School | Outstanding | 0.71 KM |
| Trafford Alternative Education Provision | Pupil Referral Unit | Good | 0.86 KM |
Images
Nearby Streets
| Name | Average Price | Average Sqft | Distance |
|---|---|---|---|
| Brook Lane | £ 0 | 0 | 0.00 KM |
| Lawn Drive | £ 0 | 0 | 0.00 KM |
| Westwood Avenue | £ 0 | 0 | 0.00 KM |
| Langdale Close | £ 550,000 | 0 | 0.00 KM |
| Wood Lane | £ 0 | 0 | 0.00 KM |
Nearby Transport
| Name | NLC | TLC | Distance |
|---|---|---|---|
| Navigation Road | 2940 | NVR | 0.81 KM |
| Altrincham | 2806 | ALT | 1.51 KM |
| Hale (Manchester) | 2845 | HAL | 2.29 KM |
| Ashley | 2850 | ASY | 4.51 KM |
| Urmston | 2938 | URM | 6.14 KM |
Nearby Listings
| Address | Price | Type | Score | Distance |
|---|---|---|---|---|
| Fox Close, Timperley, Altrincham | £ 675,000 | BUY | 7 / 10 | 0.00 KM |
| Wellington Road, Timperley | £ 268,000 | BUY | Unknown | 0.16 KM |
| Tulip Drive, Timperley, Altrincham, Greater Manchester, WA15 | £ 450,000 | BUY | Unknown | 0.17 KM |
| Wellington Road, Timperley, Altrincham, Greater Manchester, WA15 | £ 275,000 | BUY | 6 / 10 | 0.18 KM |
| Forest Drive, Timperley, Altrincham | £ 525,000 | BUY | 8 / 10 | 0.19 KM |
Nearby Properties
| Address | Price | Distance |
|---|---|---|
| 103 Brook Lane | £ 475,000 | 0.09 KM |
| 95 Brook Lane | £ 146,000 | 0.09 KM |
| 109 Brook Lane | £ 238,000 | 0.09 KM |
| 111 Brook Lane | £ 182,000 | 0.09 KM |
| 79 Brook Lane | £ 103,000 | 0.09 KM |