Chancellors says ..
Welcome to this substantial and individual chalet-style residence, offering no onward chain and a rare opportunity to acquire a home on a generous plot of approximately 0.2 acres in a desirable non-estate location. Situated within easy reach of local schools and a convenience store.
Property Oracle says ..
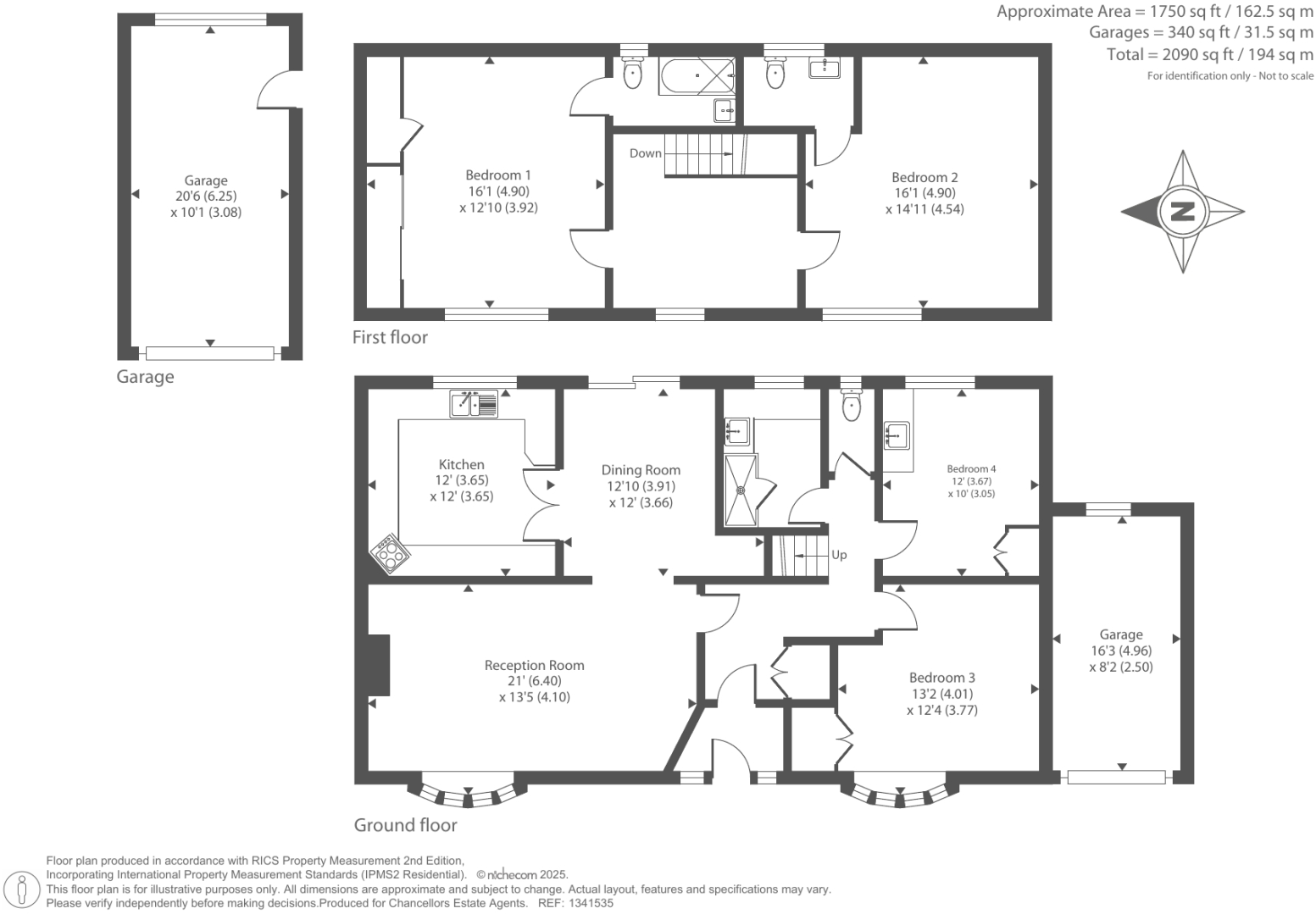
This is a four-bedroom detached house in Kempshott, Basingstoke. The property is in a good location, close to schools and transport links. The house is in reasonable condition, but would benefit from some modernisation. It has a good-sized garden and a garage. The price is reasonable for the area.
Therefore, we give this property 7 / 10. *Disclaimer: This is our option and does constitute a recommendation or financial advice. Do your own research. *
- Price
- 7
- Condition
- 6
- Location
- 7
- Land
- 8
- Bedrooms
- 4
- Bathrooms
- 3
- Sqft (est)
- 1,645.00
The heatmap indicates the level of crime in the area. The color of the heatmap indicates the crime severity and recency.
Metrics Year-on-Year
- Average area value
- 1,258,750.00 £Increased by 38.62 %
- Est sale value
- 968,905.00 £Decreased by 3.12 %
- Average area rental value
- 2,017.00 £/moDecreased by 42.17 %
- Est letting value
- 0.00 £/moDecreased by 100.00 %
- Est rental Yield
- 1.92 %Decreased by 58.35 %
- Crime Rate
- 1.00 %Unchanged by 0.00 %
Agent Activity
Chancellors created the listing.
Nearby Schools
| Name | Type | Ofsted | Distance |
|---|---|---|---|
| Kempshott Infant School | Community School | Outstanding | 0.15 KM |
| Kempshott Junior School | Community School | Good | 0.16 KM |
| Bunnies Children'S Centre | Children's Centre Linked Site | 1.26 KM | |
| St Mark'S Church Of England Primary School | Voluntary Aided School | Good | 1.36 KM |
| Hatch Warren Junior School | Community School | Good | 1.53 KM |
Images
Nearby Streets
| Name | Average Price | Average Sqft | Distance |
|---|---|---|---|
| Honeysuckle Close | £ 0 | 0 | 0.00 KM |
| Southgate Close | £ 600,000 | 0 | 0.00 KM |
| Robin Close | £ 0 | 0 | 0.00 KM |
| Heather Way | £ 995,000 | 0 | 0.00 KM |
| Cormorant Close | £ 425,000 | 0 | 0.00 KM |
Nearby Transport
| Name | NLC | TLC | Distance |
|---|---|---|---|
| Basingstoke | 5520 | BSK | 5.98 KM |
Nearby Listings
| Address | Price | Type | Score | Distance |
|---|---|---|---|---|
| Basingstoke, Hampshire, RG22 | £ 600,000 | BUY | 7 / 10 | 0.00 KM |
| Homesteads Road, Basingstoke, RG22 5LJ | £ 700,000 | BUY | 6 / 10 | 0.08 KM |
| Homesteads Road, Kempshott | £ 650,000 | BUY | 7 / 10 | 0.08 KM |
| Homesteads Road, Basingstoke | £ 585,000 | BUY | 6 / 10 | 0.10 KM |
| Homesteads Road, Kempshott | £ 570,000 | BUY | 7 / 10 | 0.12 KM |
Nearby Properties
| Address | Price | Distance |
|---|---|---|
| 4 Merrileas Gardens | £ 385,000 | 0.06 KM |
| 1 Merrileas Gardens | £ 323,000 | 0.06 KM |
| 36 Homesteads Road | £ 440,000 | 0.06 KM |
| 38 Homesteads Road | £ 555,000 | 0.06 KM |
| 70 Homesteads Road | £ 485,000 | 0.06 KM |