Farfield Grove, Bradford, West Yorkshire, BD6
By Robert Watts
£ 195,000
Reviews
3 out of 5 stars
Robert Watts says ..
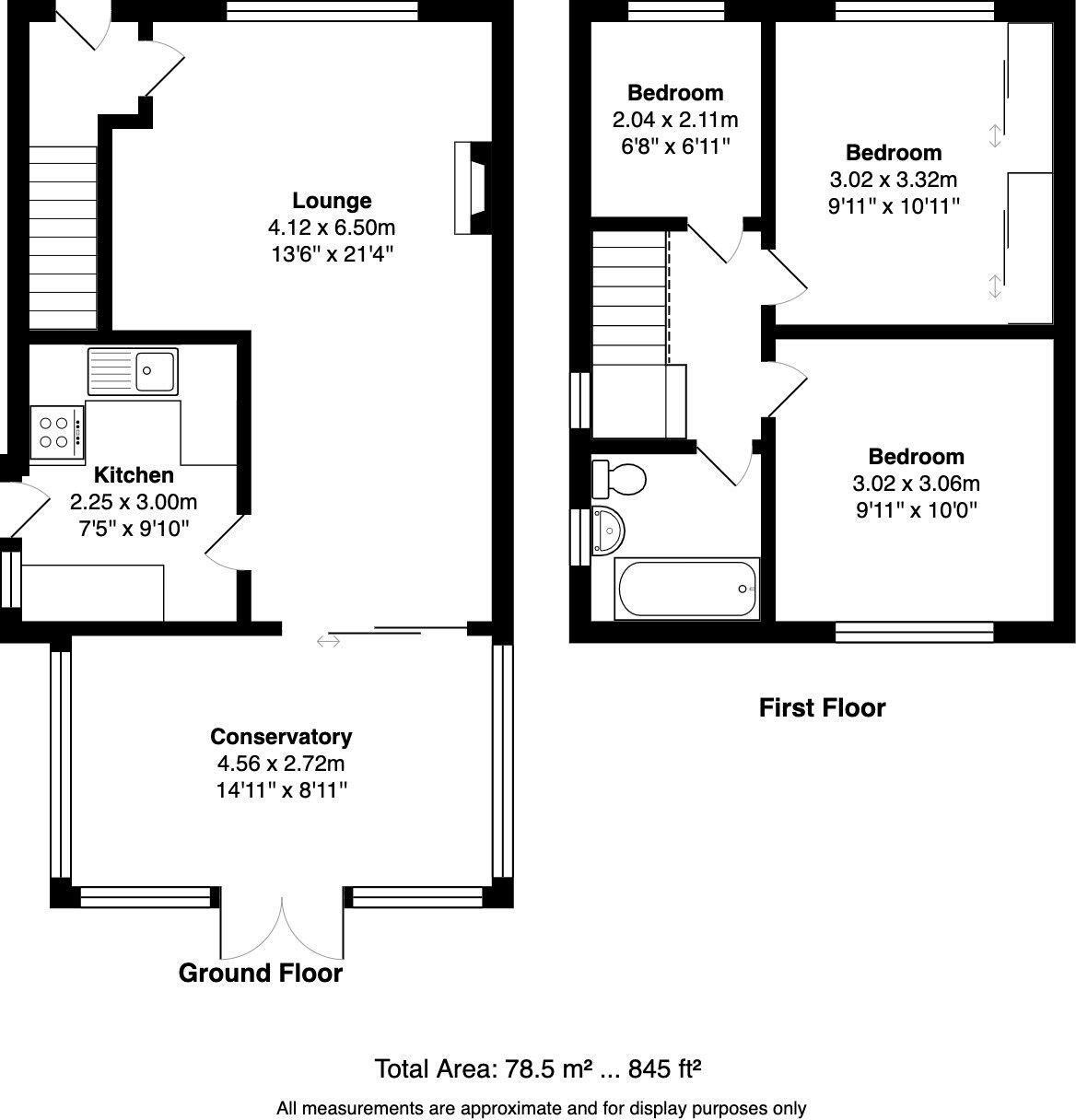
** OFFERED WITH NO CHAIN ** SUPERB PLOT POSITION WITH A VAST AMOUNT OF SCOPE FOR EXTENSION (subject to permissions). Viewing is strongly advised for this traditional SEMI DETACHED family home. Briefly comprising: entrance hall, through lounge dining area whch leads to large CONSERVATORY and kitch...
Property Oracle says ..
Therefore, we give this property 6 / 10. *Disclaimer: This is our option and does constitute a recommendation or financial advice. Do your own research. *
- Price
- 8
- Condition
- 5
- Location
- 7
- Land
- 7
- Bedrooms
- 3
- Bathrooms
- 1
- Sqft (est)
- 844.97
The heatmap indicates the level of crime in the area. The color of the heatmap indicates the crime severity and recency.
Metrics Year-on-Year
- Average area value
- 856,250.00 £Increased by 15.74 %
- Est sale value
- 599,928.70 £Increased by 21.37 %
- Average area rental value
- 2,000.00 £/moDecreased by 15.25 %
- Est letting value
- 844.97 £/moUnchanged by 0.00 %
- Est rental Yield
- 2.80 %Decreased by 26.89 %
- Crime Rate
- 6.00 %Unchanged by 0.00 %
from 739,779.00 £
from 494,307.45 £
from 2,360.00 £/mo
from 844.97 £/mo
from 3.83 %
from 6.00 %
Agent Activity
Robert Watts created the listing.
Nearby Schools
| Name | Type | Ofsted | Distance |
|---|---|---|---|
| Farfield Primary And Nursery School | Community School | Good | 0.43 KM |
| Buttershaw Business & Enterprise College Academy | Academy Sponsor Led | Requires improvement | 0.53 KM |
| Broadbeck Learning Centre | Other Independent Special School | Good | 0.76 KM |
| Reevy Hill Primary School | Academy Sponsor Led | Good | 0.93 KM |
| Reevy Hill Children'S Centre | Children's Centre | 0.97 KM |
Images
Nearby Streets
| Name | Average Price | Average Sqft | Distance |
|---|---|---|---|
| Waverton Green | £ 0 | 0 | 0.00 KM |
| Albion Street | £ 150,000 | 0 | 0.00 KM |
| Farhills | £ 145,000 | 0 | 0.00 KM |
| Beacon Grove | £ 0 | 0 | 0.00 KM |
| Ullswater Drive | £ 164,995 | 0 | 0.00 KM |
Nearby Transport
| Name | NLC | TLC | Distance |
|---|---|---|---|
| Low Moor | 8416 | LMR | 4.28 KM |
| Bradford Interchange | 8345 | BDI | 5.60 KM |
| Bradford Forster Square | 8346 | BDQ | 5.74 KM |
| Frizinghall | 8556 | FZH | 6.99 KM |
| Brighouse | 8514 | BGH | 7.12 KM |
Nearby Listings
| Address | Price | Type | Score | Distance |
|---|---|---|---|---|
| Farfield Grove, Bradford, West Yorkshire, BD6 | £ 195,000 | BUY | 6 / 10 | 0.00 KM |
| Farfield Grove, Bradford, BD6 | £ 160,000 | BUY | Unknown | 0.04 KM |
| Farfield Grove, Bradford | £ 220,000 | BUY | 7 / 10 | 0.04 KM |
| Farfield Grove, Bradford, BD6 2LU | £ 200,000 | BUY | 6 / 10 | 0.04 KM |
| Farfield Grove, Bradford, BD6 | £ 269,950 | BUY | Unknown | 0.09 KM |
Nearby Properties
| Address | Price | Distance |
|---|---|---|
| 13 Farfield Grove | £ 130,000 | 0.04 KM |
| 17 Farfield Grove | £ 77,000 | 0.04 KM |
| 19 Farfield Grove | £ 117,500 | 0.04 KM |
| 47 Farfield Grove | £ 133,000 | 0.04 KM |
| 37 Farfield Grove | £ 240,000 | 0.04 KM |