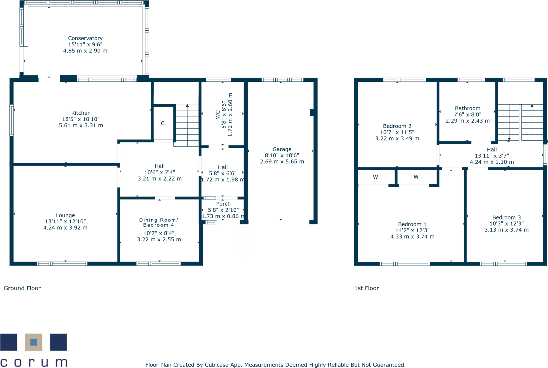
Corum says ..
A lovely, detached house set within private garden grounds.
Property Oracle says ..
Therefore, we give this property 7 / 10. *Disclaimer: This is our option and does constitute a recommendation or financial advice. Do your own research. *
- Price
- 8
- Condition
- 5
- Location
- 7
- Land
- 8
- Bedrooms
- 3
- Bathrooms
- 1
- Sqft (est)
- 1,490.80
The heatmap indicates the level of crime in the area. The color of the heatmap indicates the crime severity and recency.
Metrics Year-on-Year
- Average area value
- 447,909.00 £Increased by 2.81 %
- Est sale value
- 556,068.40 £Increased by 37.13 %
- Average area rental value
- 1,580.00 £/moDecreased by 1.13 %
- Est letting value
- 1,490.80 £/mo
- Est rental Yield
- 4.23 %Decreased by 3.86 %
- Crime Rate
- 0.00 %
from 435,687.00 £
from 405,497.60 £
from 1,598.00 £/mo
from 0.00 £/mo
from 4.40 %
from 0.00 %
Agent Activity
Corum created the listing.
Images
Nearby Streets
| Name | Average Price | Average Sqft | Distance |
|---|---|---|---|
| Holehouse Avenue | £ 180,000 | 0 | 0.00 KM |
| Holehouse Road | £ 325,000 | 0 | 0.00 KM |
| Manseview Terrace | £ 219,000 | 0 | 0.00 KM |
| Tarff Avenue | £ 0 | 0 | 0.00 KM |
| Airyligg Drive | £ 525,000 | 0 | 0.00 KM |
Nearby Transport
| Name | NLC | TLC | Distance |
|---|---|---|---|
| Thorntonhall | 9825 | THT | 3.62 KM |
| Busby | 9791 | BUS | 4.11 KM |
| Clarkston | 9792 | CKS | 4.90 KM |
| Williamwood | 9781 | WLM | 5.68 KM |
| Hairmyres | 9810 | HMY | 6.24 KM |
Nearby Listings
| Address | Price | Type | Score | Distance |
|---|---|---|---|---|
| Alexander Avenue, Eaglesham | £ 325,000 | BUY | 7 / 10 | 0.00 KM |
| Holehouse Road, Eaglesham, G76 0JF | £ 290,000 | BUY | 7 / 10 | 0.08 KM |
| Alexander Avenue, Eaglesham, G76 | £ 99,000 | BUY | 7 / 10 | 0.08 KM |
| Alexander Avenue, Eaglesham, G76 | £ 110,000 | BUY | 6 / 10 | 0.10 KM |
| Alexander Avenue, Eaglesham, G76 | £ 110,000 | BUY | 7 / 10 | 0.12 KM |