Blackbear says ..
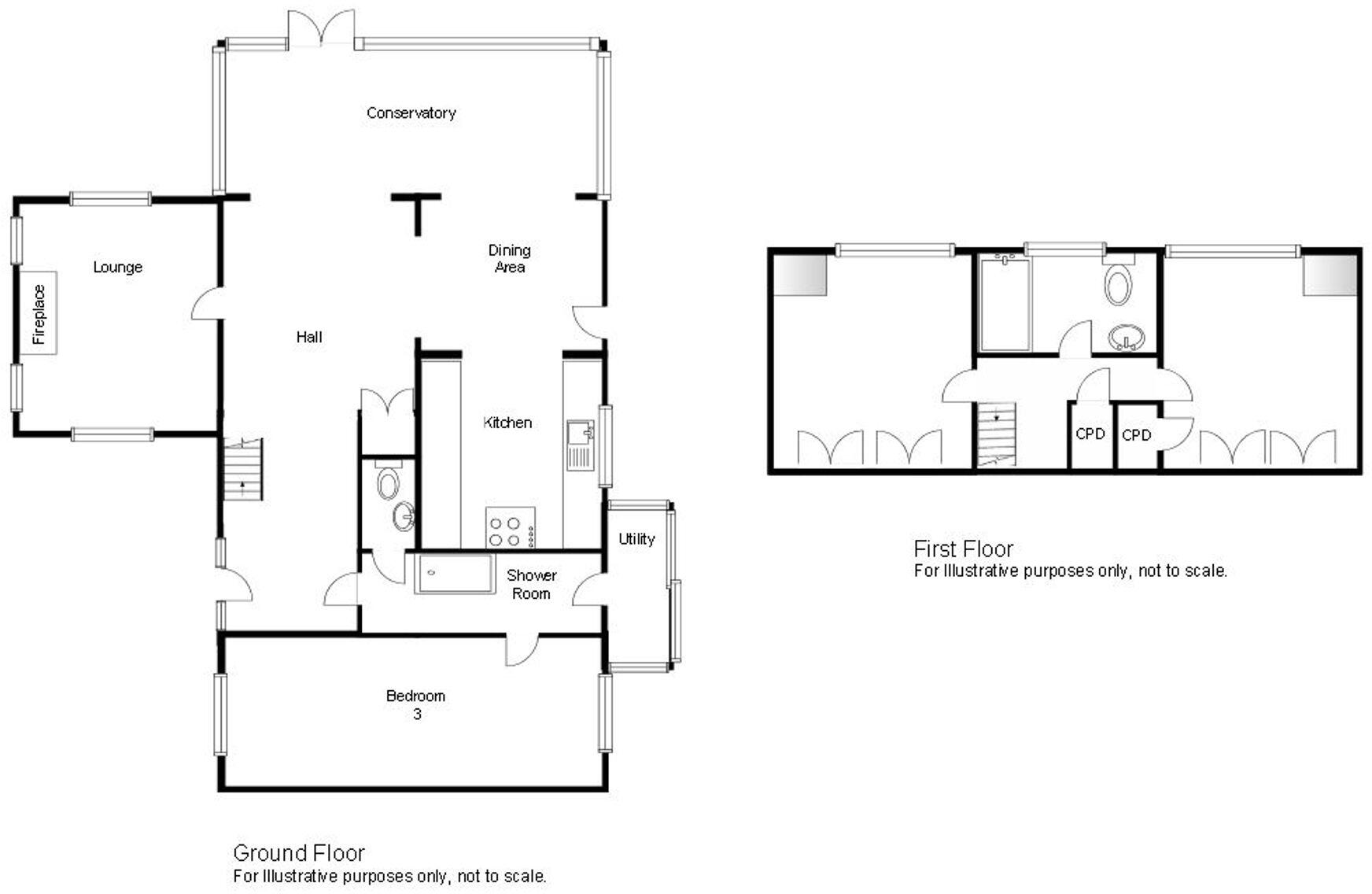
Beautiful detached house in Tenby with stunning views over town and coastline. Gas central heating, double glazing, ample parking, and landscaped gardens. Spacious accommodation with lounge, conservatory, dining area, kitchen, 3 bedrooms, 2 bathrooms. Close to town centre, beaches, and schools. A...
Property Oracle says ..
Seascape is a detached property located in the popular coastal town of Tenby. The property has three bedrooms and two bathrooms, and it is set in a good-sized garden with a large decking area. The property is in reasonable condition, but it could benefit from some updating. The kitchen and bathrooms are dated, and the decor is a bit tired. However, the property is clean and well-maintained. The property is priced at £420,000, which is slightly below the average price for a detached property in Tenby. Given the property’s location, condition, and land, it represents good value for money. The property is located close to local schools and transport links. The property would make an ideal family home or holiday home.
Therefore, we give this property 6 / 10. *Disclaimer: This is our option and does constitute a recommendation or financial advice. Do your own research. *
- Price
- 7
- Condition
- 6
- Location
- 7
- Land
- 7
- Bedrooms
- 3
- Bathrooms
- 2
- Sqft (est)
- 870.00
The heatmap indicates the level of crime in the area. The color of the heatmap indicates the crime severity and recency.
Metrics Year-on-Year
- Average area value
- 467,663.00 £Increased by 74.51 %
- Est sale value
- 371,490.00 £Decreased by 14.26 %
- Average area rental value
- 1,138.00 £/moIncreased by 56.97 %
- Est letting value
- 870.00 £/moUnchanged by 0.00 %
- Est rental Yield
- 2.92 %Decreased by 10.15 %
- Crime Rate
- 2.00 %Unchanged by 0.00 %
Agent Activity
Blackbear created the listing.
Nearby Schools
| Name | Type | Ofsted | Distance |
|---|---|---|---|
| St Teilos V.R.C. School | Welsh Establishment | 0.69 KM | |
| The Greenhill School | Welsh Establishment | 0.79 KM | |
| Saundersfoot C.P. School | Welsh Establishment | 3.98 KM | |
| Stepaside C.P. School | Welsh Establishment | 5.98 KM | |
| St Florence V.C. School | Welsh Establishment | 7.54 KM |
Images
Nearby Streets
| Name | Average Price | Average Sqft | Distance |
|---|---|---|---|
| The Paddock | £ 275,000 | 0 | 0.00 KM |
| Mayfield Drive | £ 0 | 0 | 0.00 KM |
| Rosemount Gardens | £ 0 | 0 | 0.00 KM |
| Glen View Crescent | £ 0 | 0 | 0.00 KM |
| Rectory Court | £ 287,500 | 0 | 0.00 KM |
Nearby Transport
| Name | NLC | TLC | Distance |
|---|---|---|---|
| Tenby | 4110 | TEN | 0.69 KM |
| Penally | 4129 | PNA | 2.63 KM |
| Saundersfoot | 4108 | SDF | 4.88 KM |
| Kilgetty | 4083 | KGT | 5.96 KM |
| Manorbier | 4094 | MRB | 9.39 KM |
Nearby Listings
| Address | Price | Type | Score | Distance |
|---|---|---|---|---|
| Seascape, Tenby, SA70 | £ 420,000 | BUY | 6 / 10 | 0.00 KM |
| Bryn Y Mor, Narberth Road, TENBY, Pembrokeshire. SA70 | £ 320,000 | BUY | Unknown | 0.03 KM |
| Bryn Y Mor, Narberth Road, Tenby | £ 269,950 | BUY | 5 / 10 | 0.04 KM |
| Seascape, Tenby, Pembrokeshire, SA70 | £ 650,000 | BUY | 7 / 10 | 0.05 KM |
| Seascape, Tenby | £ 410,000 | BUY | Unknown | 0.06 KM |
Nearby Properties
| Address | Price | Distance |
|---|---|---|
| 6 Seascape | £ 315,000 | 0.05 KM |
| 16 Seascape | £ 305,000 | 0.05 KM |
| 7 Seascape | £ 325,000 | 0.05 KM |
| 10 Seascape | £ 212,500 | 0.05 KM |
| Coach House | £ 392,500 | 0.07 KM |