Charlton Road, Southampton, Hampshire
By Leaders Sales
£ 159,950
Reviews
3 out of 5 stars
Leaders Sales says ..
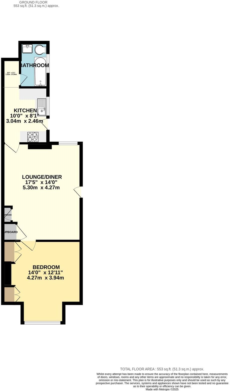
Introducing this charming ground floor apartment located in a desirable residential area. Boasting one generously sized bedroom, this property offers a perfect blend of comfort and convenience. The apartment features a private garden, providing a tranquil outdoor space to relax and unwind. ...
Property Oracle says ..
This is a one-bedroom apartment located on Charlton Road in Southampton. The property is listed for £159,950 and has a square footage of 552.19 sqft. The apartment benefits from its location, which is close to schools and transportation links, including Southampton Central station. The interior of the property is in fair condition, with a modern bathroom and kitchen. However, the exterior and garden require some renovation. The property includes a garden, which is a positive feature, although it needs landscaping. Considering the location, condition, and land, the list price appears to be reasonable compared to the average property prices in the area.
Therefore, we give this property 7 / 10. *Disclaimer: This is our option and does constitute a recommendation or financial advice. Do your own research. *
- Price
- 8
- Condition
- 6
- Location
- 7
- Land
- 7
- Bedrooms
- 1
- Bathrooms
- 1
- Sqft (est)
- 552.19
The heatmap indicates the level of crime in the area. The color of the heatmap indicates the crime severity and recency.
Metrics Year-on-Year
- Average area value
- 345,413.00 £Increased by 43.37 %
- Est sale value
- 242,963.60 £Increased by 48.15 %
- Average area rental value
- 1,031.00 £/moDecreased by 7.37 %
- Est letting value
- 552.19 £/moUnchanged by 0.00 %
- Est rental Yield
- 3.58 %Decreased by 35.38 %
- Crime Rate
- 3.00 %Unchanged by 0.00 %
Agent Activity
Leaders Sales created the listing.
Nearby Schools
| Name | Type | Ofsted | Distance |
|---|---|---|---|
| St Mark'S Church Of England Voluntary Controlled Primary School | Voluntary Controlled School | Good | 0.44 KM |
| King Edward Vi School | Other Independent School | 0.66 KM | |
| Springhill Catholic Primary School | Academy Converter | 0.75 KM | |
| Freemantle Sure Start Children Centre | Children's Centre | 0.89 KM | |
| Freemantle Church Of England Community Academy | Academy Converter | Good | 0.98 KM |
Images
Nearby Streets
| Name | Average Price | Average Sqft | Distance |
|---|---|---|---|
| Western District Cut | £ 0 | 0 | 0.00 KM |
| Shirley Road | £ 135,000 | 0 | 0.00 KM |
| Branksome Avenue | £ 0 | 0 | 0.00 KM |
| Harland Crescent | £ 0 | 0 | 0.00 KM |
| Saxon Road | £ 0 | 0 | 0.00 KM |
Nearby Transport
| Name | NLC | TLC | Distance |
|---|---|---|---|
| Southampton Central | 5932 | SOU | 1.36 KM |
| Millbrook (Hants) | 5909 | MBK | 1.69 KM |
| St Denys | 5914 | SDN | 3.60 KM |
| Bitterne | 5945 | BTE | 4.75 KM |
| Woolston | 5925 | WLS | 5.19 KM |
Nearby Listings
| Address | Price | Type | Score | Distance |
|---|---|---|---|---|
| Charlton Road, Southampton, Hampshire | £ 159,950 | BUY | 7 / 10 | 0.00 KM |
| Charlton Road, Southampton, SO15 5FL | £ 325,000 | BUY | 7 / 10 | 0.00 KM |
| Charlton Road, Shirley, Southampton, Hampshire, SO15 | £ 325,000 | BUY | 7 / 10 | 0.06 KM |
| Shirley, Southampton | £ 450,000 | BUY | Unknown | 0.07 KM |
| Norfolk Road, Shirley, Southampton, Hampshire, SO15 | £ 525,000 | BUY | 6 / 10 | 0.08 KM |
Nearby Properties
| Address | Price | Distance |
|---|---|---|
| 45 Charlton Road | £ 227,500 | 0.02 KM |
| 53 Charlton Road | £ 133,033 | 0.02 KM |
| 13 Charlton Road | £ 100,000 | 0.02 KM |
| 51 Charlton Road | £ 345,000 | 0.02 KM |
| 23 Charlton Road | £ 320,000 | 0.02 KM |