Ben Rose says ..
Ben Rose Estate Agents are pleased to present to market this charming three-bedroom, first-floor apartment located in the highly desirable Avenham conservation area of Preston. Set within a beautiful Grade II listed building, this home offers a rare opportunity for first-time buyers or investors ...
Property Oracle says ..
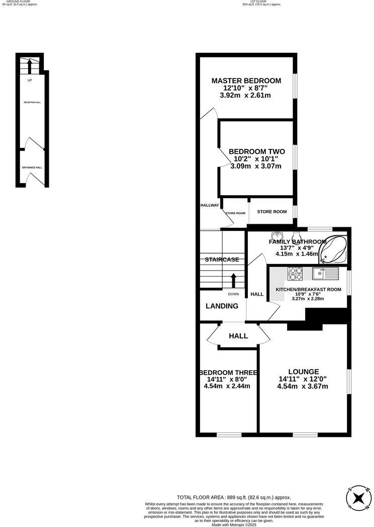
This three-bedroom apartment is situated on Frenchwood Street in Preston City Centre. The property benefits from being close to local amenities and transport links. While the apartment is in a convenient location, the provided images suggest it may require some modernisation or cosmetic improvements. The lack of plot size information limits the assessment of outdoor space. Compared to the average price per square foot in the area (£399), the listed price of £149,950 for 889.10 sqft seems relatively reasonable, especially considering the nearby comparable properties. However, the condition of the property should be factored into any final valuation.
Therefore, we give this property 5 / 10. *Disclaimer: This is our option and does constitute a recommendation or financial advice. Do your own research. *
- Price
- 7
- Condition
- 6
- Location
- 8
- Land
- 1
- Bedrooms
- 3
- Bathrooms
- 1
- Sqft (est)
- 889.10
The heatmap indicates the level of crime in the area. The color of the heatmap indicates the crime severity and recency.
Metrics Year-on-Year
- Average area value
- 322,952.00 £Decreased by 27.89 %
- Est sale value
- 305,850.40 £Decreased by 6.52 %
- Average area rental value
- 1,604.00 £/moDecreased by 7.50 %
- Est letting value
- 889.10 £/moUnchanged by 0.00 %
- Est rental Yield
- 5.96 %Increased by 28.17 %
- Crime Rate
- 6.00 %Unchanged by 0.00 %
Agent Activity
Ben Rose created the listing.
Nearby Schools
| Name | Type | Ofsted | Distance |
|---|---|---|---|
| Stoneygate Nursery School | Local Authority Nursery School | Good | 0.40 KM |
| Stoneygate Children'S Centre | Children's Centre | 0.40 KM | |
| St Augustine'S Catholic Primary School | Voluntary Aided School | Good | 0.43 KM |
| Imam Muhammad Zakariya School | Other Independent School | Good | 0.54 KM |
| Frenchwood Community Primary School | Community School | Good | 0.64 KM |
Images
Nearby Streets
| Name | Average Price | Average Sqft | Distance |
|---|---|---|---|
| Tenby Road | £ 0 | 0 | 0.00 KM |
| Lennox Street | £ 0 | 0 | 0.00 KM |
| Rose Street | £ 49,950 | 0 | 0.00 KM |
| New Cock Yard | £ 0 | 0 | 0.00 KM |
| Back Grimshaw Street | £ 0 | 0 | 0.00 KM |
Nearby Transport
| Name | NLC | TLC | Distance |
|---|---|---|---|
| Preston (Lancs) | 2753 | PRE | 1.46 KM |
| Lostock Hall | 2689 | LOH | 3.44 KM |
| Bamber Bridge | 2561 | BMB | 4.87 KM |
| Leyland | 2710 | LEY | 6.22 KM |
| Buckshaw Parkway | 7501 | BSV | 9.77 KM |
Nearby Listings
| Address | Price | Type | Score | Distance |
|---|---|---|---|---|
| Frenchwood Street, Preston | £ 149,950 | BUY | 5 / 10 | 0.00 KM |
| Avenham Place Preston PR1 3SX | £ 280,000 | BUY | Unknown | 0.06 KM |
| Bank Parade, Preston, PR1 | £ 150,000 | BUY | 6 / 10 | 0.08 KM |
| Bank Parade, Preston, Lancashire, PR1 | £ 60,000 | BUY | 5 / 10 | 0.10 KM |
| Bank Parade, Preston | £ 74,950 | BUY | 5 / 10 | 0.13 KM |
Nearby Properties
| Address | Price | Distance |
|---|---|---|
| 6 Avenham Place | £ 178,000 | 0.05 KM |
| 2 Avenham Place | £ 68,000 | 0.05 KM |
| 4 Bank Parade | £ 115,000 | 0.08 KM |
| 10 Bank Parade | £ 99,000 | 0.08 KM |
| 10 Cadogan Place | £ 120,000 | 0.08 KM |