Buxton Road, Furness Vale, High Peak
By Gascoigne Halman
£ 165,000
Reviews
3 out of 5 stars
Gascoigne Halman says ..
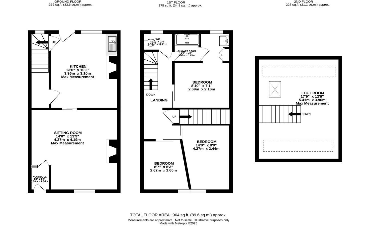
A GARDEN FRONTED SPACIOUS STONE TERRACE PROPERTY requiring modernisation offering LIVING ROOM and DINING KITCHEN and currently THREE bedrooms and a loft room. The property has an unusual large garden for this type of property with stone outbuildings. The location is popular close to amenities of ...
Property Oracle says ..
This three-bedroom terraced house located on Buxton Road in Furness Vale, Derbyshire, presents a mixed opportunity for potential buyers. The property’s major advantage lies in its location. It enjoys excellent transport links, with Furness Vale train station within easy walking distance, and a nearby well-regarded primary school. The village atmosphere and proximity to the Peak District National Park are additional draws. However, the property is in need of considerable modernisation. The interior images reveal outdated décor, carpeting, and kitchen and bathroom fixtures. Potential buyers should factor in significant renovation costs into their budget. Despite its dated condition, the property offers a surprisingly large garden compared to other similar houses in the area, an attractive feature, especially for families. Outbuildings provide extra storage. The list price appears competitive, aligning with other properties in Furness Vale but it’s crucial to weigh the required renovation costs against the asking price to determine overall value. Buyers should consider whether the potential return on investment from refurbishment justifies the purchase price.
Therefore, we give this property 6 / 10. *Disclaimer: This is our option and does constitute a recommendation or financial advice. Do your own research. *
- Price
- 7
- Condition
- 4
- Location
- 7
- Land
- 6
- Bedrooms
- 3
- Bathrooms
- 1
The heatmap indicates the level of crime in the area. The color of the heatmap indicates the crime severity and recency.
Metrics Year-on-Year
- Average area value
- 334,167.00 £Increased by 24.23 %
- Average area rental value
- 1,252.00 £/moIncreased by 4.33 %
- Est rental Yield
- 4.50 %Decreased by 15.89 %
- Crime Rate
- 0.00 %
Agent Activity
Gascoigne Halman marked this listing as sold.
Gascoigne Halman created the listing.
Nearby Schools
| Name | Type | Ofsted | Distance |
|---|---|---|---|
| Furness Vale Primary And Nursery School | Community School | Good | 0.40 KM |
| Whaley Bridge Primary School | Community School | Requires improvement | 2.18 KM |
| Buxworth Primary School | Community School | Good | 2.41 KM |
| St George'S Cofe Primary School | Academy Sponsor Led | 2.55 KM | |
| Taxal And Fernilee Cofe Primary School | Voluntary Controlled School | Good | 2.56 KM |
Images
Nearby Streets
| Name | Average Price | Average Sqft | Distance |
|---|---|---|---|
| Williamson Crescent | £ 0 | 0 | 0.00 KM |
| Goyt Road | £ 310,000 | 0 | 0.00 KM |
Nearby Transport
| Name | NLC | TLC | Distance |
|---|---|---|---|
| Furness Vale | 2952 | FNV | 0.45 KM |
| Whaley Bridge | 2772 | WBR | 1.78 KM |
| New Mills Newtown | 2769 | NMN | 2.93 KM |
| New Mills Central | 2974 | NMC | 3.03 KM |
| Chinley | 2823 | CLY | 4.66 KM |
Nearby Listings
| Address | Price | Type | Score | Distance |
|---|---|---|---|---|
| Buxton Road, Furness Vale, High Peak | £ 165,000 | BUY | 6 / 10 | 0.00 KM |
| Buxton Road, High Peak | £ 375,000 | BUY | 7 / 10 | 0.17 KM |
| Buxton Road, Furness Vale, SK23 | £ 170,000 | BUY | 6 / 10 | 0.20 KM |
| Buxton Road, Furness Vale, SK23 | £ 299,999 | BUY | 6 / 10 | 0.28 KM |
| Buxton Road, Furness Vale, SK23 | £ 200,000 | BUY | 6 / 10 | 0.29 KM |
Nearby Properties
| Address | Price | Distance |
|---|---|---|
| 10 Buxton Road | £ 315,000 | 0.17 KM |
| 78 Buxton Road | £ 118,000 | 0.17 KM |
| 98 Buxton Road | £ 245,000 | 0.17 KM |
| 30 Buxton Road | £ 68,427 | 0.17 KM |
| 64 Buxton Road | £ 185,000 | 0.17 KM |