Lady Bailey Caravan Park, Winterborne Whitechurch
By Forum Sales and Lettings
£ 150,000
Reviews
2 out of 5 stars
Forum Sales and Lettings says ..
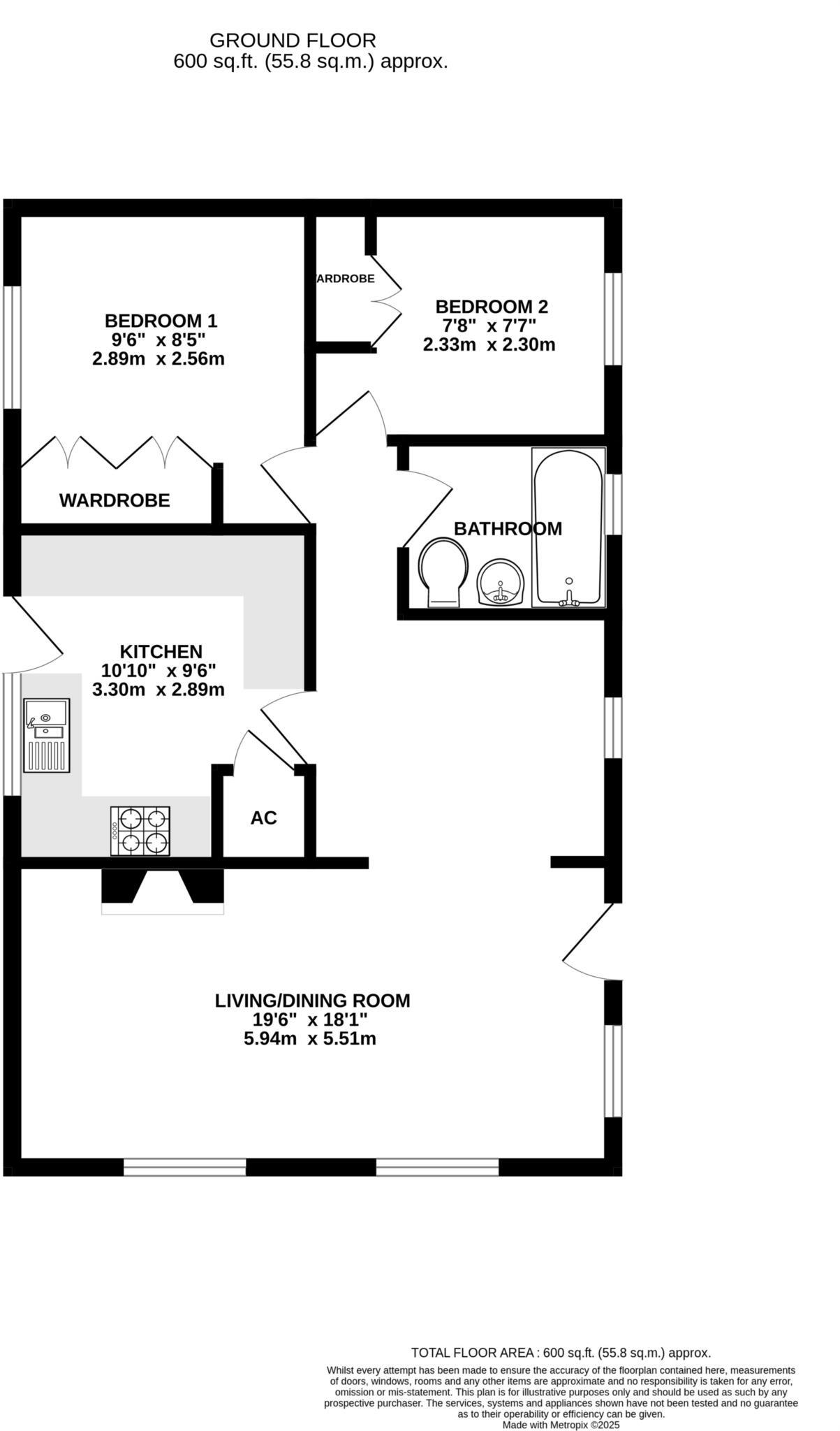
A well presented 2 bedroom park home offering views to front on this popular site on the outskirts of Winterborne Whitechurch
Property Oracle says ..
This park home in Lady Bailey Caravan Park, Winterborne Whitechurch, Dorset, presents a comfortable and relatively well-maintained living space. The property boasts two bedrooms, one bathroom, and an open-plan living area that appears bright and inviting. The kitchen is functional with modern appliances, however, the overall aesthetic of the interior design may feel outdated to some buyers. The property benefits from a relatively small but usable garden, although plot sizes aren’t clearly defined in the provided information. The location offers a quiet rural lifestyle, conveniently close to Dunbury Church of England Academy (rated ‘Good’ by Ofsted), and a few other schools, but is lacking in immediate public transportation access. The asking price of £150,000 appears reasonable in comparison to other listed park homes in the surrounding area, although more detailed information on the plot size and specific details would be beneficial for a more precise valuation. Potential buyers should be aware of the costs associated with park home living, such as site fees, and should factor this into their overall budgetary assessment. A full structural survey is strongly recommended before any commitment to purchase.
Therefore, we give this property 5 / 10. *Disclaimer: This is our option and does constitute a recommendation or financial advice. Do your own research. *
- Price
- 7
- Condition
- 7
- Location
- 6
- Land
- 3
- Bedrooms
- 2
- Bathrooms
- 1
- Sqft (est)
- 600.63
The heatmap indicates the level of crime in the area. The color of the heatmap indicates the crime severity and recency.
Metrics Year-on-Year
- Average area value
- 400,000.00 £Decreased by 14.31 %
- Est sale value
- 175,383.96 £Decreased by 4.58 %
- Average area rental value
- 1,515.00 £/moDecreased by 21.30 %
- Est letting value
- 600.63 £/moUnchanged by 0.00 %
- Est rental Yield
- 4.55 %Decreased by 8.08 %
- Crime Rate
- 329.00 %Unchanged by 0.00 %
Agent Activity
Forum Sales and Lettings created the listing.
Nearby Schools
| Name | Type | Ofsted | Distance |
|---|---|---|---|
| Dunbury Church Of England Academy | Academy Sponsor Led | Good | 0.49 KM |
| Bere Regis Primary And Preschool | Academy Sponsor Led | 5.42 KM | |
| Milborne St Andrew First School | Academy Converter | Good | 5.66 KM |
| Milton Abbey School | Other Independent School | 6.08 KM | |
| Knighton House School | Other Independent School | 9.18 KM |
Images
Nearby Streets
| Name | Average Price | Average Sqft | Distance |
|---|---|---|---|
| St Mary's Close | £ 0 | 0 | 0.00 KM |
| Dolway Lane | £ 0 | 0 | 0.00 KM |
| Field's Close | £ 325,000 | 0 | 0.00 KM |
| Rook Lane | £ 0 | 0 | 0.00 KM |
| Rose Cottages | £ 400,000 | 0 | 0.00 KM |
Nearby Listings
| Address | Price | Type | Score | Distance |
|---|---|---|---|---|
| Lady Bailey Caravan Park, Winterborne Whitechurch | £ 150,000 | BUY | 5 / 10 | 0.00 KM |
| Bailey View Park, Winterborne Whitechurch, Blandford Forum, DT11 | £ 159,950 | BUY | 6 / 10 | 0.10 KM |
| Lady Bailey Park, Winterborne Whitechurch, Blandford Forum, DT11 | £ 199,950 | BUY | Unknown | 0.10 KM |
| Lady Bailey Residential Park, Winterborne Whitechurch, Blandford Forum, Dorset, DT11 | £ 142,500 | BUY | 6 / 10 | 0.11 KM |
| Winterborne Whitechurch, Blandford Forum, Dorset, DT11 | £ 160,000 | BUY | 6 / 10 | 0.11 KM |
Nearby Properties
| Address | Price | Distance |
|---|---|---|
| 12 St Marys Close | £ 318,000 | 0.22 KM |
| 13 St Marys Close | £ 244,000 | 0.22 KM |
| 16 St Marys Close | £ 305,000 | 0.22 KM |
| 9 St Marys Close | £ 463,250 | 0.22 KM |
| 2 St Marys Close | £ 269,000 | 0.22 KM |