Graveyard Lane, Mobberley, Knutsford, WA16
By Michael J Chapman
£ 850,000
Reviews
3 out of 5 stars
Michael J Chapman says ..
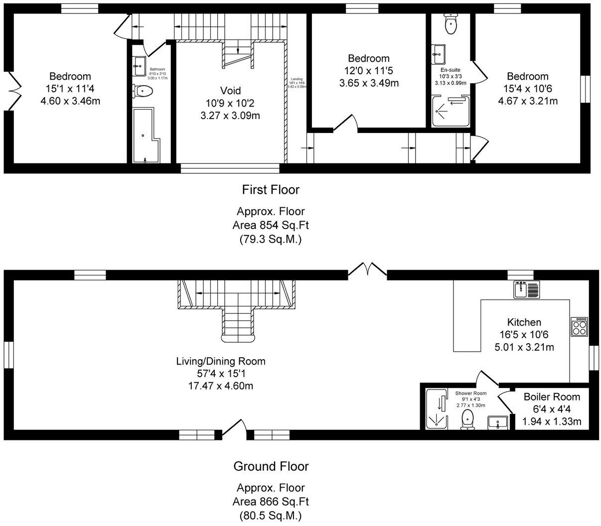
A recently converted and extending to 1720sqft three double bedrooms and three bathrooms, standing in gardens and ground extending to 1.64 Acres (0.66ha) with a Ground Source heat plump, offered for sale with no onward chain.
Property Oracle says ..
This property is a beautifully renovated barn conversion located in the sought-after village of Mobberley, Cheshire. The conversion appears to have been done to a high standard, resulting in a modern and stylish home. The open-plan living area is particularly impressive, featuring large windows that provide ample natural light and views of the surrounding countryside. The property boasts a contemporary kitchen, modern bathrooms, and well-presented bedrooms. The inclusion of a table tennis table suggests a focus on leisure and entertainment.
The property’s location within Mobberley offers access to good schools and transport links, making it an attractive option for families. However, the available land appears to be limited. The lack of precise plot size information from the listing and neighboring sales leaves the land assessment partially incomplete.
Overall, the property presents as a desirable home in a good location, but the limited land might affect its appeal for some buyers. A detailed analysis of the property’s square footage and a comparison to more similar properties with their land sizes would enhance the assessment of its overall value and price point. It is important to verify the details directly with the estate agent before making a purchasing decision.
Therefore, we give this property 6 / 10. *Disclaimer: This is our option and does constitute a recommendation or financial advice. Do your own research. *
- Price
- 7
- Condition
- 9
- Location
- 7
- Land
- 3
- Bedrooms
- 3
- Bathrooms
- 3
- Sqft (est)
- 1,620.50
The heatmap indicates the level of crime in the area. The color of the heatmap indicates the crime severity and recency.
Metrics Year-on-Year
- Average area value
- 607,999.00 £Decreased by 19.74 %
- Est sale value
- 690,333.00 £Decreased by 8.58 %
- Average area rental value
- 1,708.00 £/moDecreased by 59.57 %
- Est letting value
- 1,620.50 £/moDecreased by 50.00 %
- Est rental Yield
- 3.37 %Decreased by 49.63 %
- Crime Rate
- 0.00 %
Agent Activity
Michael J Chapman created the listing.
Nearby Schools
| Name | Type | Ofsted | Distance |
|---|---|---|---|
| Mobberley Cofe Primary School | Voluntary Controlled School | Outstanding | 3.01 KM |
| Lindow Community Primary School | Community School | Good | 3.44 KM |
| The David Lewis Centre | Special Post 16 Institution | Outstanding | 3.50 KM |
| David Lewis School | Non-maintained Special School | Good | 3.50 KM |
| Ashdene Primary School | Community School | Outstanding | 4.45 KM |
Images
Nearby Streets
| Name | Average Price | Average Sqft | Distance |
|---|---|---|---|
| Willow Close | £ 0 | 0 | 0.00 KM |
Nearby Transport
| Name | NLC | TLC | Distance |
|---|---|---|---|
| Mobberley | 2849 | MOB | 5.20 KM |
| Chelford (Cheshire) | 2764 | CEL | 5.40 KM |
| Manchester Airport | 2961 | MIA | 5.45 KM |
| Alderley Edge | 2760 | ALD | 5.88 KM |
| Styal | 2868 | SYA | 6.22 KM |
Nearby Listings
| Address | Price | Type | Score | Distance |
|---|---|---|---|---|
| Graveyard Lane, Mobberley, Knutsford, WA16 | £ 850,000 | BUY | 6 / 10 | 0.00 KM |
| Graveyard Lane, Mobberley, Knutsford, Cheshire, WA16 | £ 450,000 | BUY | 8 / 10 | 0.13 KM |
| Graveyard Lane, Mobberley, Knutsford, Cheshire, WA16 | £ 975,000 | BUY | 7 / 10 | 0.22 KM |
| Oak Lea, Moss Lane, Mobberley, WA16 7BU | £ 850,000 | BUY | 8 / 10 | 0.39 KM |
| Croft Park, Mobberley, WA16 | £ 250,000 | BUY | 7 / 10 | 0.59 KM |
Nearby Properties
| Address | Price | Distance |
|---|---|---|
| Oak Bank Barn | £ 575,000 | 0.39 KM |
| Lea Cottage | £ 275,000 | 0.39 KM |
| Sugar Brook Barn | £ 215,000 | 0.39 KM |
| Oaklea | £ 487,500 | 0.39 KM |
| Holt Cottage | £ 1,200,000 | 0.88 KM |