Hoskings Row, Redruth
ST

Hoskings Row, Redruth

By Stags Farm Agency

£ 115,000

Reviews

2 out of 5 stars

Stags Farm Agency says ..

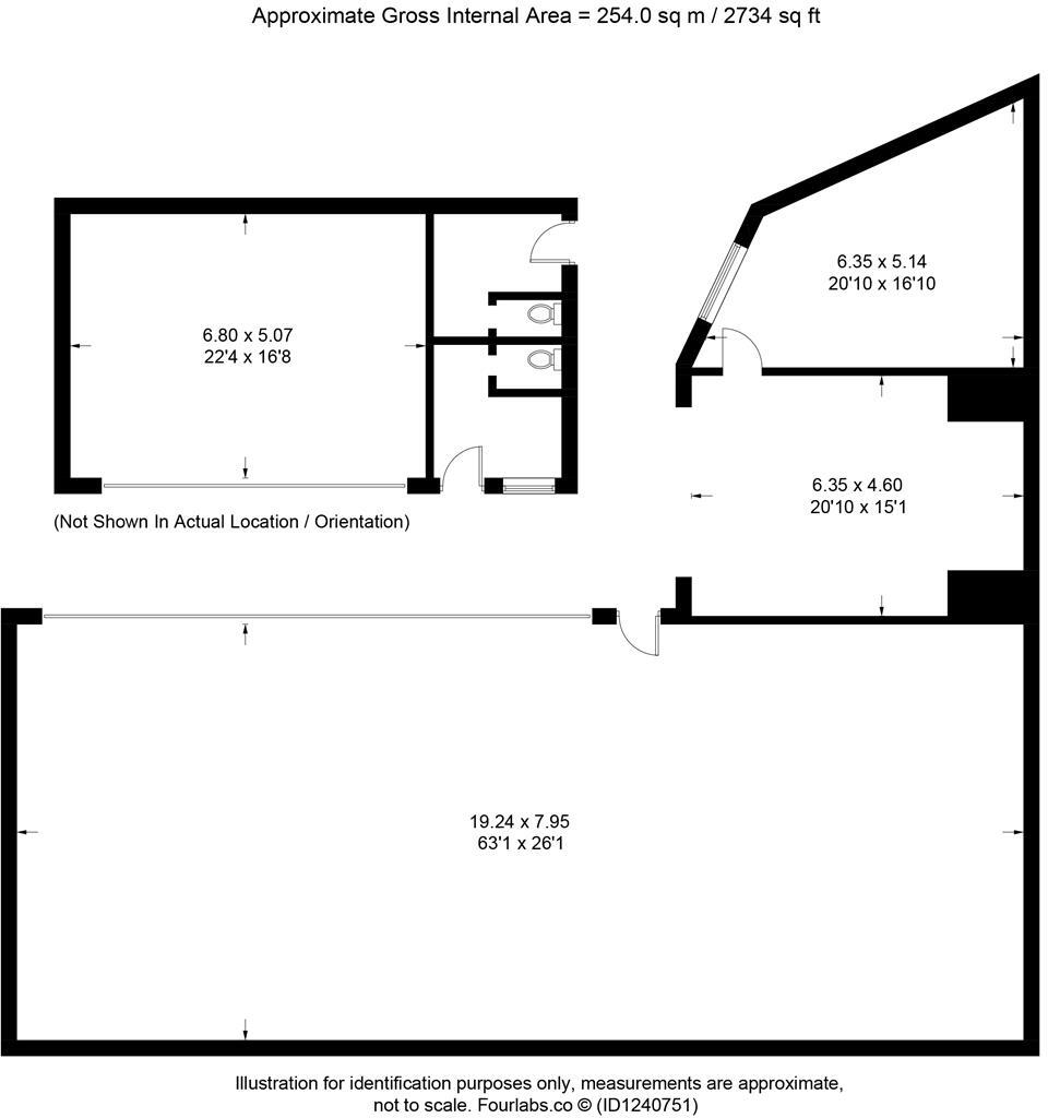
For Sale by Online Auction - A well positioned former carpenter’s workshop with adjoining outbuildings, in the town of Redruth, a short distance from the town centre and its many amenities. The site benefits from approved Planning Permission for the development of a terrace of four three-bedroom ...

Property Oracle says ..

This bungalow in Redruth North, Cornwall, presents a significant renovation opportunity. While the location offers reasonable access to schools and transportation, the property itself is in poor condition, requiring substantial work. The plot size is adequate, offering potential for landscaping and improvement. The asking price reflects the condition, making it an attractive prospect for investors or those willing to undertake a comprehensive renovation project. The property could be transformed into a desirable residence with the necessary investment and effort.

Therefore, we give this property 5 / 10. *Disclaimer: This is our option and does constitute a recommendation or financial advice. Do your own research. *

Price
8
Condition
2
Location
6
Land
6
Bedrooms
0
Bathrooms
0
Sqft (est)
2,332.61

The heatmap indicates the level of crime in the area. The color of the heatmap indicates the crime severity and recency.

Metrics Year-on-Year

Average area value
380,500.00 £
Decreased by 7.95 %
from 413,363.00 £
Est sale value
711,446.05 £
Increased by 0.66 %
from 706,780.83 £
Average area rental value
1,550.00 £/mo
Increased by 31.91 %
from 1,175.00 £/mo
Est letting value
2,332.61 £/mo
from 0.00 £/mo
Est rental Yield
4.89 %
Increased by 43.40 %
from 3.41 %
Crime Rate
16.00 %
Unchanged by 0.00 %
from 16.00 %

Agent Activity

  • Stags Farm Agency created the listing.

Nearby Schools

NameTypeOfstedDistance
Trewirgie Infants' SchoolAcademy ConverterRequires improvement0.59 KM
Redruth SchoolFoundation SchoolGood0.61 KM
Trewirgie Junior SchoolAcademy ConverterGood0.64 KM
Curnow SchoolAcademy Special ConverterOutstanding0.78 KM
Pennoweth Primary SchoolAcademy Converter0.92 KM

Images

IMG_2314.JPEG DJI_0298.JPG DJI_0302.JPG IMG_2317.JPEG Arrows for properties (9).jpg IMG_2327.JPEG IMG_2311.JPEG IMG_2315.JPEG IMG_2316.JPEG IMG_2319.JPEG IMG_2308.JPEG DJI_0300.JPG DJI_0301.JPG IMG_2309.JPEG IMG_2310.JPEG IMG_2312.JPEG IMG_2313.JPEG IMG_2318.JPEG IMG_2320.JPEG IMG_2321.JPEG IMG_2322.JPEG IMG_2323.JPEG IMG_2324.JPEG IMG_2325.JPEG IMG_2326.JPEG IMG_2328.JPEG IMG_2329.JPEG IMG_2330.JPEG

Nearby Streets

NameAverage PriceAverage SqftDistance
Hosking's Row £ 210,00000.00 KM
Fairfield £ 327,25000.00 KM
Rose Hill £ 000.00 KM
Lemin's Court £ 000.00 KM
Falmouth Road £ 000.00 KM

Nearby Transport

NameNLCTLCDistance
Redruth3530RED0.78 KM
Camborne3504CBN7.55 KM

Nearby Listings

AddressPriceTypeScoreDistance
Hoskings Row, Redruth £ 115,000BUY5 / 100.00 KM
Hoskings Row, Redruth £ 229,950BUY7 / 100.01 KM
Forth Noweth, Redruth, Cornwall, TR15 £ 255,000BUY6 / 100.05 KM
Forth Noweth, Redruth, Cornwall, TR15 £ 255,000BUY7 / 100.05 KM
West End, Redruth, Cornwall, TR15 £ 150,000BUY6 / 100.11 KM

Nearby Properties

AddressPriceDistance
7 Hoskings Row £ 119,9500.02 KM
10 Hoskings Row £ 137,0000.02 KM
8 Hoskings Row £ 112,0000.02 KM
17 Hoskings Row £ 118,0000.02 KM
13 Hoskings Row £ 157,0000.04 KM