Stankelt Road, Silverdale, Carnforth, LA5
By Richard Turner & Son
£ 250,000
Reviews
3 out of 5 stars
Richard Turner & Son says ..
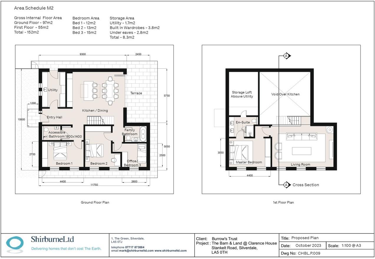
Detached Brick Barn with Detailed Planning Permission for Demolition and Erection of a New 4 Bedroomed Dwelling with Detached Garage and Good Sized Garden GroundsViewings: Strictly by prior appointment through Richard Turner & Son, Bentham OfficeDirections: Via /// what3words...
Property Oracle says ..
This is a barn conversion opportunity in the sought-after village of Silverdale. The property requires complete renovation but offers a substantial footprint and the potential to create a desirable family home. The location is convenient for local schools, amenities, and transport links. The asking price reflects the condition of the property and the investment required.
Therefore, we give this property 6 / 10. *Disclaimer: This is our option and does constitute a recommendation or financial advice. Do your own research. *
- Price
- 8
- Condition
- 2
- Location
- 7
- Land
- 7
- Bedrooms
- 4
- Bathrooms
- 3
- Sqft (est)
- 1,636.11
The heatmap indicates the level of crime in the area. The color of the heatmap indicates the crime severity and recency.
Metrics Year-on-Year
- Average area value
- 419,000.00 £Increased by 9.74 %
- Est sale value
- 678,985.65 £Increased by 2.22 %
- Average area rental value
- 1,467.00 £/moDecreased by 6.50 %
- Est letting value
- 1,636.11 £/moUnchanged by 0.00 %
- Est rental Yield
- 4.20 %Decreased by 14.81 %
- Crime Rate
- 5.00 %Unchanged by 0.00 %
Agent Activity
Richard Turner & Son created the listing.
Nearby Schools
| Name | Type | Ofsted | Distance |
|---|---|---|---|
| Silverdale St John'S Church Of England Voluntary Aided Primary School | Voluntary Aided School | Good | 0.67 KM |
| Bleasdale School | Community Special School | Outstanding | 0.75 KM |
| Arnside National Cofe School | Academy Converter | Requires improvement | 3.98 KM |
| Storth Cofe School | Voluntary Controlled School | Good | 5.49 KM |
| Prospect House | Other Independent School | Good | 6.20 KM |
Images
Nearby Streets
| Name | Average Price | Average Sqft | Distance |
|---|---|---|---|
| Elmslack Court | £ 0 | 0 | 0.00 KM |
| Waterslack road | £ 250,000 | 0 | 0.00 KM |
Nearby Transport
| Name | NLC | TLC | Distance |
|---|---|---|---|
| Silverdale | 1968 | SVR | 1.81 KM |
| Arnside | 1963 | ARN | 4.03 KM |
| Carnforth | 2640 | CNF | 6.83 KM |
| Grange-Over-Sands | 1965 | GOS | 9.67 KM |
Nearby Listings
| Address | Price | Type | Score | Distance |
|---|---|---|---|---|
| Stankelt Road, Silverdale, Carnforth, LA5 | £ 250,000 | BUY | 6 / 10 | 0.00 KM |
| St Johns Avenue, Silverdale, LA5 | £ 460,000 | BUY | Unknown | 0.36 KM |
| Stankelt Road, Silverdale, LA5 | £ 700,000 | BUY | 7 / 10 | 0.41 KM |
| Spring Bank, Silverdale, LA5 | £ 475,000 | BUY | 6 / 10 | 0.49 KM |
| 5 Spring Bank, Silverdale, Carnforth, Lancashire, LA5 0TD | £ 375,000 | BUY | Unknown | 0.51 KM |
Nearby Properties
| Address | Price | Distance |
|---|---|---|
| 55 Stankelt Road | £ 566,500 | 0.06 KM |
| 51 Stankelt Road | £ 215,000 | 0.06 KM |
| 45a Stankelt Road | £ 350,000 | 0.06 KM |
| 1 The Chase | £ 395,000 | 0.16 KM |
| 5 The Green | £ 340,000 | 0.17 KM |