Highfield Road, Five Lane Ends, Bradford, BD2
By Robert Watts
£ 180,000
Reviews
3 out of 5 stars
Robert Watts says ..
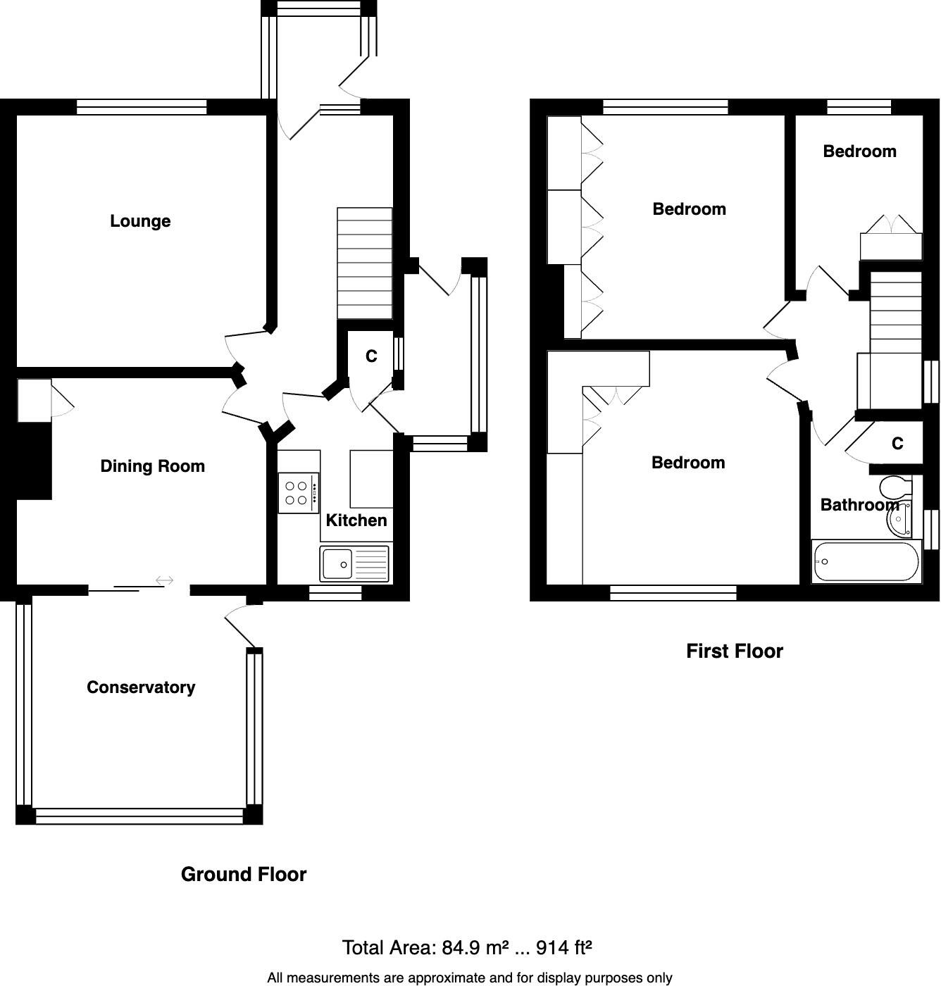
NO CHAIN – Popular style of semi-detached within walking distance of Blakehill Primary and Morrisons retail park. Of likely appeal to a variety of buyers this 2/3 bedroom, 2 reception room example offers new owners an opportunity to make their own mark. The good size under house store, driv...
Property Oracle says ..
This three-bedroom semi-detached house on Highfield Road, Five Lane Ends, Bradford, is presented for sale at £180,000. The property’s main strengths lie in its location, offering proximity to Blakehill Primary School and several train stations. While not central Bradford, the location offers easy access to local amenities. The property includes a garage and garden which are valuable additions, though the available land appears smaller than average. The interior shows a need for modernisation. The décor is dated throughout, and some areas of the property require minor repairs or updates. However, the property is in a generally habitable condition and appears structurally sound. The kitchen and bathroom are functional but could benefit from a refresh. Given the local market data, the asking price is competitive, but not excessively low, given the condition and the lack of data regarding exact property size. Buyers should factor in costs for improvements and updating to fully realise the property’s potential.
Therefore, we give this property 6 / 10. *Disclaimer: This is our option and does constitute a recommendation or financial advice. Do your own research. *
- Price
- 7
- Condition
- 6
- Location
- 7
- Land
- 4
- Bedrooms
- 3
- Bathrooms
- 1
- Sqft (est)
- 914.00
The heatmap indicates the level of crime in the area. The color of the heatmap indicates the crime severity and recency.
Metrics Year-on-Year
- Average area value
- 236,407.00 £Decreased by 2.23 %
- Est sale value
- 264,146.00 £Increased by 23.50 %
- Average area rental value
- 978.00 £/moDecreased by 5.69 %
- Est letting value
- 914.00 £/moUnchanged by 0.00 %
- Est rental Yield
- 4.96 %Decreased by 3.69 %
- Crime Rate
- 10.00 %Unchanged by 0.00 %
Agent Activity
Robert Watts created the listing.
Nearby Schools
| Name | Type | Ofsted | Distance |
|---|---|---|---|
| Blakehill Primary School | Community School | Good | 0.28 KM |
| Swain House Primary School | Community School | Good | 0.72 KM |
| St Francis Catholic Primary School, A Voluntary Academy | Academy Converter | 0.98 KM | |
| Hanson School | Foundation School | Serious Weaknesses | 1.02 KM |
| Grove House Primary School | Academy Converter | 1.15 KM |
Images
Nearby Streets
| Name | Average Price | Average Sqft | Distance |
|---|---|---|---|
| Highfield Grove | £ 198,333 | 0 | 0.00 KM |
| The Stray | £ 0 | 0 | 0.00 KM |
| All Alone Road | £ 265,000 | 0 | 0.00 KM |
| Albert Street | £ 0 | 0 | 0.00 KM |
| Springfield Place | £ 0 | 0 | 0.00 KM |
Nearby Transport
| Name | NLC | TLC | Distance |
|---|---|---|---|
| Baildon | 8552 | BLD | 3.30 KM |
| Frizinghall | 8556 | FZH | 3.58 KM |
| Bradford Forster Square | 8346 | BDQ | 3.64 KM |
| Apperley Bridge | 8562 | APY | 3.89 KM |
| Bradford Interchange | 8345 | BDI | 4.08 KM |
Nearby Listings
| Address | Price | Type | Score | Distance |
|---|---|---|---|---|
| Highfield Road, Five Lane Ends, Bradford, BD2 | £ 180,000 | BUY | 6 / 10 | 0.00 KM |
| Highfield Road, Idle, Bradford, West Yorkshire, BD10 | £ 190,000 | BUY | 8 / 10 | 0.07 KM |
| Highfield Road, Idle, Bradford, BD10 | £ 150,000 | BUY | 6 / 10 | 0.07 KM |
| Highfield Road, Idle, Bradford, West Yorkshire, BD10 | £ 160,000 | BUY | 7 / 10 | 0.07 KM |
| Althorpe Grove, Idle, Bradford, BD10 | £ 200,000 | BUY | 7 / 10 | 0.12 KM |
Nearby Properties
| Address | Price | Distance |
|---|---|---|
| 40 Highfield Road | £ 200,000 | 0.10 KM |
| 42 Highfield Road | £ 102,500 | 0.10 KM |
| 18a Highfield Road | £ 165,000 | 0.10 KM |
| 46 Highfield Road | £ 107,000 | 0.10 KM |
| 9 Althorpe Grove | £ 139,000 | 0.11 KM |