Carnation Road, Rochester, Kent. ME2
By Moxy Property Consultants
£ 300,000
Reviews
3 out of 5 stars
Moxy Property Consultants says ..
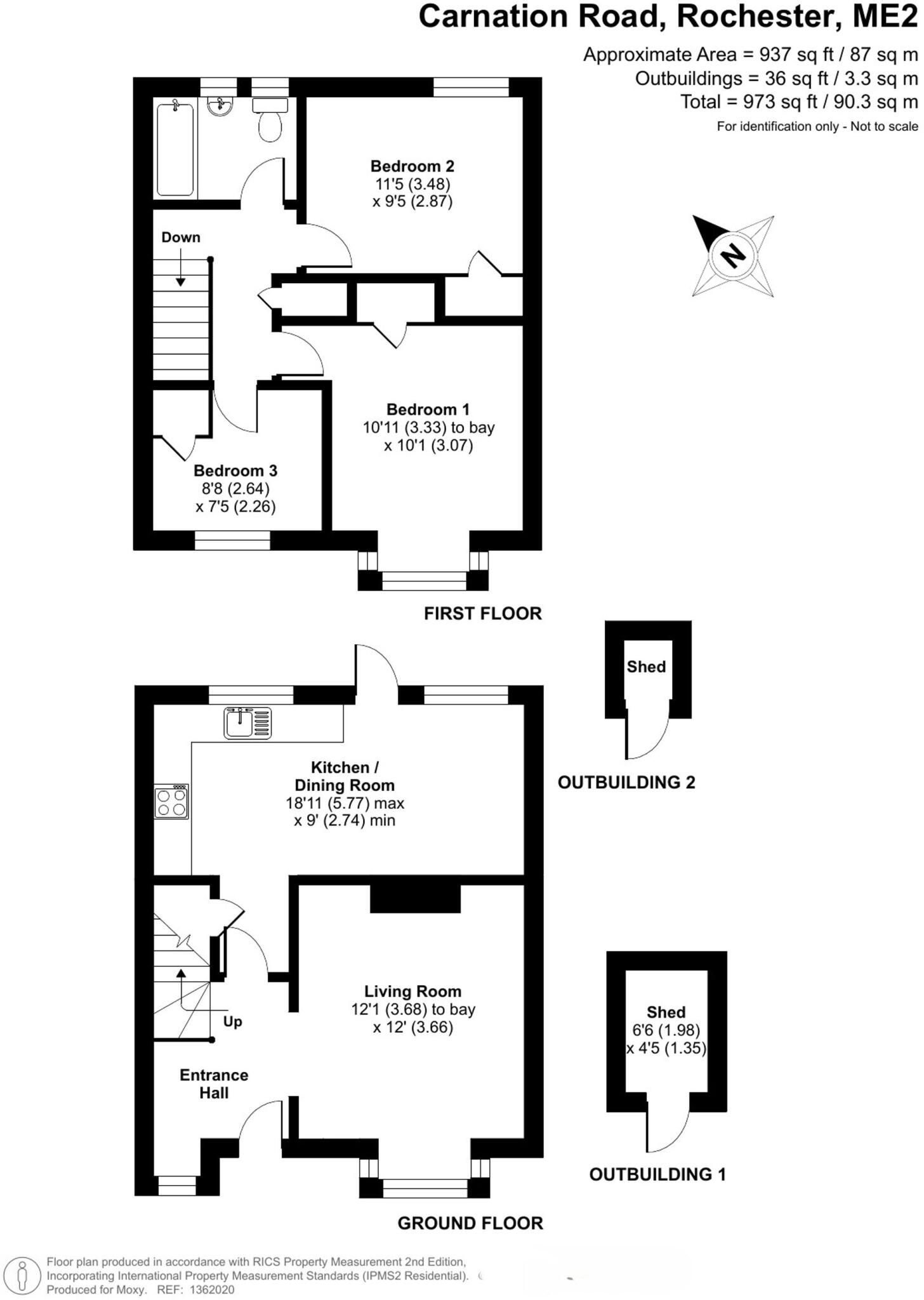
A three bedroom, semi-detached home in an elevated spot with bay fronted lounge, modern kitchen/diner, large garden with rear access and parking potential. Close to M2/A2, shops, and schools.
Property Oracle says ..
This is a three-bedroom semi-detached house located in Strood South, Medway. The property appears to be in good condition, with a modern kitchen and bathroom. It also benefits from a garden. The location is convenient for local schools and transportation links. The asking price of £300,000 seems reasonable given the condition and location, and in line with recent sales of similar properties in the area.
Therefore, we give this property 7 / 10. *Disclaimer: This is our option and does constitute a recommendation or financial advice. Do your own research. *
- Price
- 7
- Condition
- 8
- Location
- 7
- Land
- 7
- Bedrooms
- 3
- Bathrooms
- 1
The heatmap indicates the level of crime in the area. The color of the heatmap indicates the crime severity and recency.
Metrics Year-on-Year
- Average area value
- 272,545.00 £Decreased by 13.33 %
- Average area rental value
- 1,483.00 £/moIncreased by 11.09 %
- Est rental Yield
- 6.53 %Increased by 28.29 %
- Crime Rate
- 15.00 %Unchanged by 0.00 %
Agent Activity
Moxy Property Consultants created the listing.
Nearby Schools
| Name | Type | Ofsted | Distance |
|---|---|---|---|
| Strood Academy | Academy Sponsor Led | Good | 0.45 KM |
| Bligh Primary School (Juniors) | Academy Converter | 0.73 KM | |
| Ebbsfleet Green Primary School | Free Schools | 0.73 KM | |
| Bligh Primary School (Infants) | Academy Converter | 0.73 KM | |
| Bligh Children'S Centre | Children's Centre | 0.91 KM |
Images
Nearby Streets
| Name | Average Price | Average Sqft | Distance |
|---|---|---|---|
| Lincoln Close | £ 270,000 | 0 | 0.00 KM |
| Wakefield Close | £ 240,000 | 0 | 0.00 KM |
| A2 | £ 375,000 | 0 | 0.00 KM |
| Crispin Road | £ 0 | 0 | 0.00 KM |
| Russet Close | £ 0 | 0 | 0.00 KM |
Nearby Transport
| Name | NLC | TLC | Distance |
|---|---|---|---|
| Cuxton | 5201 | CUX | 2.35 KM |
| Strood (Kent) | 5191 | SOO | 3.47 KM |
| Higham | 5202 | HGM | 3.66 KM |
| Rochester | 5203 | RTR | 4.66 KM |
| Halling | 5173 | HAI | 5.31 KM |
Nearby Listings
| Address | Price | Type | Score | Distance |
|---|---|---|---|---|
| Carnation Road, Rochester, Kent. ME2 | £ 300,000 | BUY | 7 / 10 | 0.00 KM |
| Carnation Road, Rochester, Kent, ME2 | £ 295,000 | BUY | 6 / 10 | 0.00 KM |
| Carnation Road, Rochester, Kent | £ 280,000 | BUY | Unknown | 0.08 KM |
| Carnation Road, Strood | £ 325,000 | BUY | 6 / 10 | 0.12 KM |
| Hyacinth Road,Rochester,ME2 2YJ | £ 280,000 | BUY | 6 / 10 | 0.25 KM |
Nearby Properties
| Address | Price | Distance |
|---|---|---|
| 48 Carnation Road | £ 210,000 | 0.05 KM |
| 68 Carnation Road | £ 300,000 | 0.05 KM |
| 66 Carnation Road | £ 240,000 | 0.05 KM |
| 72 Carnation Road | £ 325,000 | 0.05 KM |
| 80 Carnation Road | £ 235,000 | 0.05 KM |