Julian Marks says ..
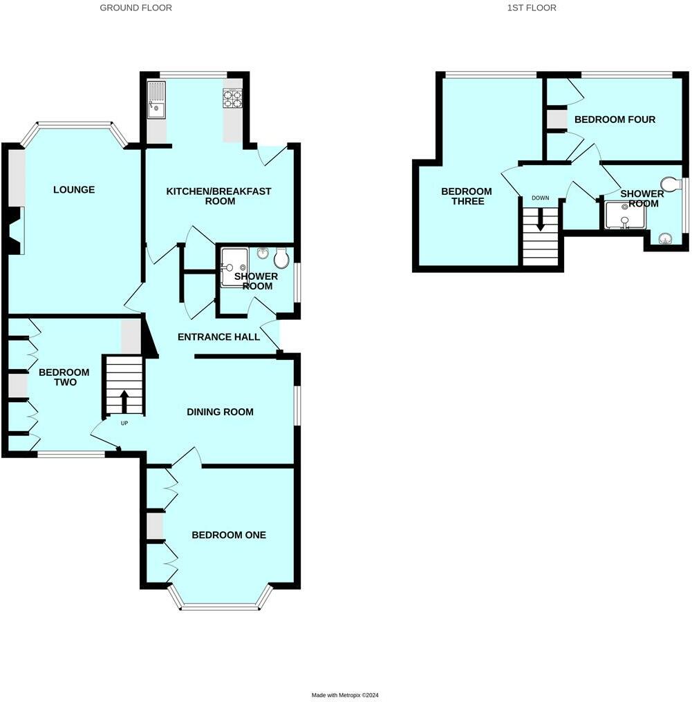
Superbly-presented deceptively spacious semi-detached dormer bungalow situated in this highly sought-after location. Briefly, the accommodation comprises an entrance hall, lounge, separate dining room, 'L-shaped' kitchen/breakfast room, 4 bedrooms, 2 on the ground floor & 2 upstairs, & 2 shower r...
Property Oracle says ..
This property is a 4-bedroom, 2-bathroom house located in Plymstock, Plymouth. It is a bungalow style property with a brick exterior and a tiled roof. The property has a garden and is within reasonable proximity to several schools and transportation links. The interior appears well-maintained, with a traditional style. The property is listed at £340,000, which is slightly above the average price for the area but comparable to similar properties on Green Park Road. The average price per square foot in the area is £354, while this property has 830 sqft. The property appears to be in good condition, and the garden is a nice addition. Overall, this property seems to be a reasonable purchase for someone looking for a family home in Plymstock.
Therefore, we give this property 7 / 10. *Disclaimer: This is our option and does constitute a recommendation or financial advice. Do your own research. *
- Price
- 7
- Condition
- 8
- Location
- 7
- Land
- 7
- Bedrooms
- 4
- Bathrooms
- 2
- Sqft (est)
- 830.00
The heatmap indicates the level of crime in the area. The color of the heatmap indicates the crime severity and recency.
Metrics Year-on-Year
- Average area value
- 339,996.00 £Increased by 4.84 %
- Est sale value
- 324,530.00 £Increased by 27.36 %
- Average area rental value
- 1,581.00 £/moIncreased by 51.87 %
- Est letting value
- 830.00 £/mo
- Est rental Yield
- 5.58 %Increased by 44.94 %
- Crime Rate
- 11.00 %Unchanged by 0.00 %
Agent Activity
Julian Marks created the listing.
Nearby Schools
| Name | Type | Ofsted | Distance |
|---|---|---|---|
| Goosewell Primary Academy | Academy Sponsor Led | Good | 0.74 KM |
| Plymstock School | Academy Converter | Good | 1.05 KM |
| Coombe Dean School | Academy Converter | Requires improvement | 1.35 KM |
| Pomphlett Primary School | Academy Converter | 1.46 KM | |
| Plymstock Children'S Centre | Children's Centre | 1.73 KM |
Images
Nearby Streets
| Name | Average Price | Average Sqft | Distance |
|---|---|---|---|
| Paddock Close | £ 0 | 0 | 0.00 KM |
| Church Road | £ 327,500 | 0 | 0.00 KM |
| Woodlands | £ 0 | 0 | 0.00 KM |
| Reigate Road | £ 282,500 | 0 | 0.00 KM |
| Moor View | £ 0 | 0 | 0.00 KM |
Nearby Transport
| Name | NLC | TLC | Distance |
|---|---|---|---|
| Plymouth | 3580 | PLY | 6.52 KM |
| Devonport | 3579 | DPT | 9.38 KM |
Nearby Listings
| Address | Price | Type | Score | Distance |
|---|---|---|---|---|
| Plymstock, Plymouth | £ 340,000 | BUY | 7 / 10 | 0.00 KM |
| Green Park Road, Plymstock, Plymouth, PL9 | £ 300,000 | BUY | Unknown | 0.06 KM |
| Green Park Road, Plymouth, Devon, PL9 | £ 160,750 | BUY | 7 / 10 | 0.13 KM |
| Plymstock, Plymouth | £ 250,000 | BUY | 6 / 10 | 0.14 KM |
| Green Park Road, Plymstock, Plymouth. | £ 270,000 | BUY | 6 / 10 | 0.14 KM |
Nearby Properties
| Address | Price | Distance |
|---|---|---|
| 33 Green Park Road | £ 59,000 | 0.04 KM |
| 65 Green Park Road | £ 186,000 | 0.04 KM |
| 67 Green Park Road | £ 362,000 | 0.04 KM |
| 23 Green Park Road | £ 232,000 | 0.04 KM |
| 63 Green Park Road | £ 210,000 | 0.04 KM |