Goundrys says ..
This substantial detached property is located on a highly sought after road in the popular village of Illogan. It has in the past been a children's nursery and surgery. The generous accommodation would lend itself to various possibilities including creating spaces for multi generational living...
Property Oracle says ..
The property is a 5 bedroom, 2 bathroom character property located on Alexandra Road in Illogan, Cornwall. It has a list price of £595,000 and is 1,699 sqft with a plot size of 1,815.98 sqft. The average price for properties in the area is £468,178, with an average size of 1,992 sqft and an average price per sqft of £235. The property benefits from a good location with nearby schools and convenient transportation links. Based on the provided images, the property appears to be a period property with some modernisation. While it has character features, some areas could benefit from renovation or updating. The property includes a good-sized garden, which adds to its appeal. Considering the property’s size, location, features, and the condition shown in the images, the list price of £595,000 appears to be at the higher end of the market value for the area. While the property is larger than the average in the area, the need for potential renovation work may impact its overall value. The presence of a garden is a positive factor.
Therefore, we give this property 7 / 10. *Disclaimer: This is our option and does constitute a recommendation or financial advice. Do your own research. *
- Price
- 6
- Condition
- 7
- Location
- 8
- Land
- 7
- Bedrooms
- 5
- Bathrooms
- 2
- Sqft (est)
- 1,699.00
- Lot (est)
- 1,815.98
The heatmap indicates the level of crime in the area. The color of the heatmap indicates the crime severity and recency.
Metrics Year-on-Year
- Average area value
- 534,992.00 £Increased by 54.07 %
- Est sale value
- 1,196,096.00 £Increased by 181.60 %
- Average area rental value
- 1,250.00 £/moIncreased by 8.13 %
- Est letting value
- 1,699.00 £/mo
- Est rental Yield
- 2.80 %Decreased by 29.82 %
- Crime Rate
- 5.00 %Unchanged by 0.00 %
Agent Activity
Goundrys created the listing.
Nearby Schools
| Name | Type | Ofsted | Distance |
|---|---|---|---|
| Illogan School | Academy Converter | Requires improvement | 0.54 KM |
| Treloweth Children'S Centre | Children's Centre | 1.91 KM | |
| Pool Academy | Academy Converter | Good | 1.92 KM |
| Treloweth Community Primary School | Academy Converter | Good | 1.93 KM |
| Portreath Community Primary School | Academy Converter | Good | 2.10 KM |
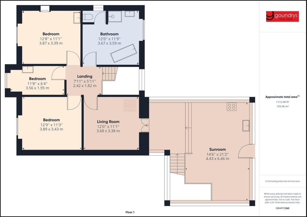
Images
Nearby Streets
| Name | Average Price | Average Sqft | Distance |
|---|---|---|---|
| Warwick Avenue | £ 0 | 0 | 0.00 KM |
| Park An Lann | £ 0 | 0 | 0.00 KM |
| Park Road | £ 299,950 | 0 | 0.00 KM |
| Mill Grist Meadow | £ 0 | 0 | 0.00 KM |
| West Trewirgie Road | £ 0 | 0 | 0.00 KM |
Nearby Transport
| Name | NLC | TLC | Distance |
|---|---|---|---|
| Camborne | 3504 | CBN | 5.00 KM |
| Redruth | 3530 | RED | 5.00 KM |
Nearby Listings
| Address | Price | Type | Score | Distance |
|---|---|---|---|---|
| Alexandra Road, Illogan, Redruth, Cornwall | £ 365,000 | BUY | Unknown | 0.01 KM |
| Illogan | £ 319,950 | BUY | 8 / 10 | 0.13 KM |
| Alexandra Close, Illogan, Redruth, Cornwall, TR16 | £ 290,000 | BUY | 7 / 10 | 0.13 KM |
| Alexandra Close, Illogan | £ 305,000 | BUY | Unknown | 0.15 KM |
| Warwick Avenue, Illogan, TR16 | £ 325,000 | BUY | 6 / 10 | 0.21 KM |
Nearby Properties
| Address | Price | Distance |
|---|---|---|
| 26 Alexandra Road | £ 595,000 | 0.01 KM |
| 19a Alexandra Road | £ 311,000 | 0.01 KM |
| Avenue Bungalow | £ 360,000 | 0.01 KM |
| 19 Alexandra Road | £ 250,000 | 0.01 KM |
| 2 Alexandra Close | £ 299,950 | 0.13 KM |