ST
115 Victoria Terrace, Dunfermline, Fife, KY12 0JB
By Stevenson & Marshall
£ 329,950
Reviews
3 out of 5 stars
Stevenson & Marshall says ..
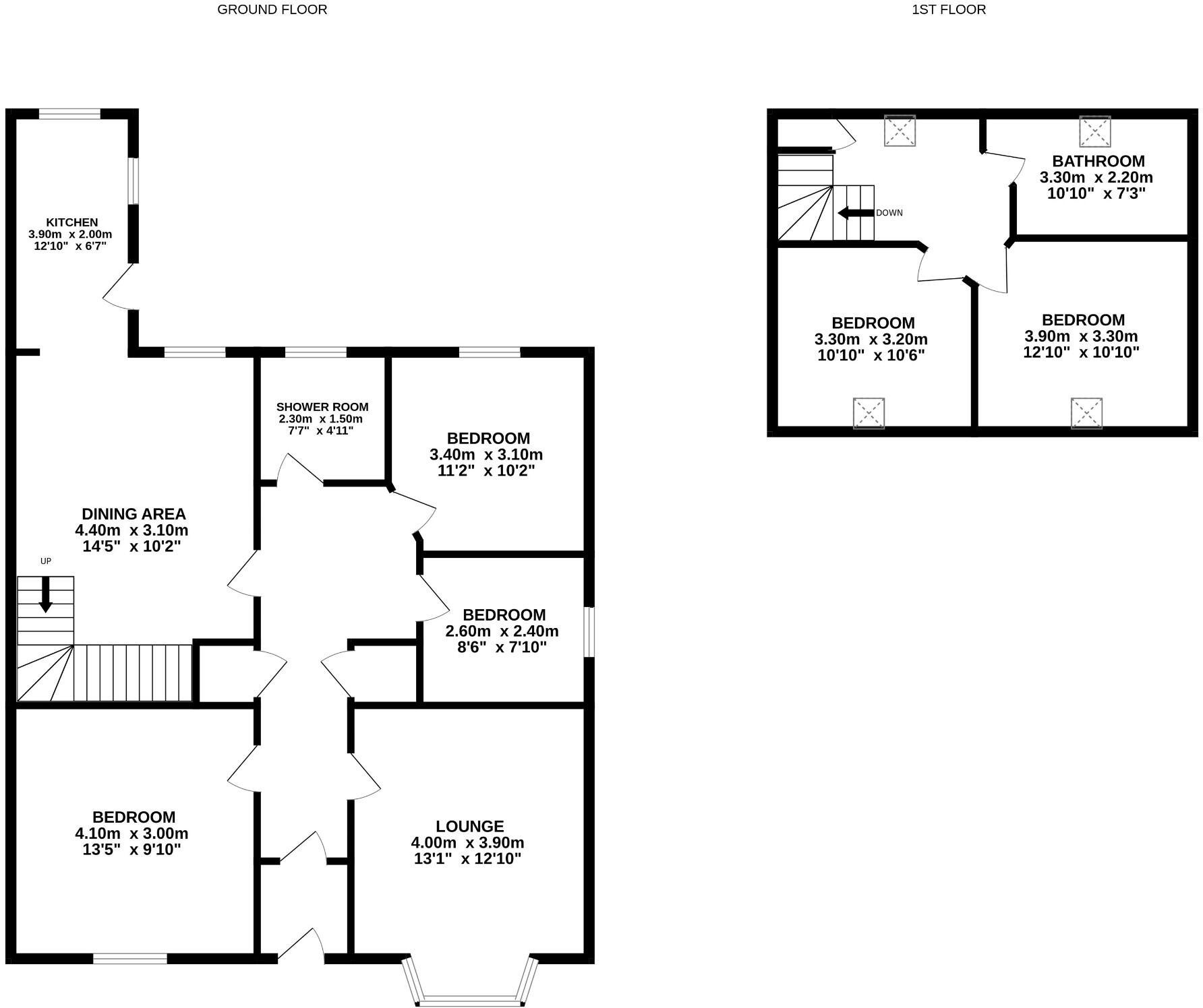
Rarely available, an Edwardian semi detached bungalow in desirable location close to city centre and railway station.
Property Oracle says ..
Therefore, we give this property 7 / 10. *Disclaimer: This is our option and does constitute a recommendation or financial advice. Do your own research. *
- Price
- 7
- Condition
- 8
- Location
- 7
- Land
- 7
- Bedrooms
- 5
- Bathrooms
- 2
- Sqft (est)
- 1,079.19
The heatmap indicates the level of crime in the area. The color of the heatmap indicates the crime severity and recency.
Metrics Year-on-Year
- Average area value
- 546,663.00 £Increased by 20.32 %
- Est sale value
- 641,038.86 £Increased by 55.50 %
- Average area rental value
- 2,315.00 £/moIncreased by 58.13 %
- Est letting value
- 2,158.38 £/moIncreased by 100.00 %
- Est rental Yield
- 5.08 %Increased by 31.27 %
- Crime Rate
- 0.00 %
from 454,336.00 £
from 412,250.58 £
from 1,464.00 £/mo
from 1,079.19 £/mo
from 3.87 %
from 0.00 %
Agent Activity
Stevenson & Marshall created the listing.
Images
Nearby Streets
| Name | Average Price | Average Sqft | Distance |
|---|---|---|---|
| Tuke Street | £ 0 | 0 | 0.00 KM |
| Townhill Road | £ 0 | 0 | 0.00 KM |
| Leys Park Road | £ 89,995 | 0 | 0.00 KM |
| Holyrood Place | £ 0 | 0 | 0.00 KM |
| Viewfield Terrace | £ 575,000 | 0 | 0.00 KM |
Nearby Transport
| Name | NLC | TLC | Distance |
|---|---|---|---|
| Dunfermline Town | 9187 | DFE | 1.07 KM |
| Dunfermline Queen Margaret | 9186 | DFL | 3.66 KM |
| Rosyth | 9190 | ROS | 4.66 KM |
| Inverkeithing | 9136 | INK | 8.02 KM |
| North Queensferry | 9189 | NQU | 9.80 KM |
Nearby Listings
| Address | Price | Type | Score | Distance |
|---|---|---|---|---|
| 115 Victoria Terrace, Dunfermline, Fife, KY12 0JB | £ 329,950 | BUY | 7 / 10 | 0.00 KM |
| Thistle Street, Dunfermline, KY12 | £ 124,995 | BUY | 7 / 10 | 0.06 KM |
| 11 Newlands Park, Dunfermline, KY12 0RG | £ 279,950 | BUY | 6 / 10 | 0.15 KM |
| 44 Rose Street, Dunfermline, KY12 0RE | £ 124,950 | BUY | 6 / 10 | 0.18 KM |
| 34 Gladstone Place, Dunfermline | £ 135,000 | BUY | 7 / 10 | 0.20 KM |