Cubitt & West says ..
Filey Close is a terraced home, perfectly tucked away within a peaceful cul-de-sac just off of Egmont Road, sitting right in the heart of South Sutton. The location couldn't be better, you are within very easy reach of some of Sutton's most sought after schools including The Harris Academy & Sutt...
Property Oracle says ..
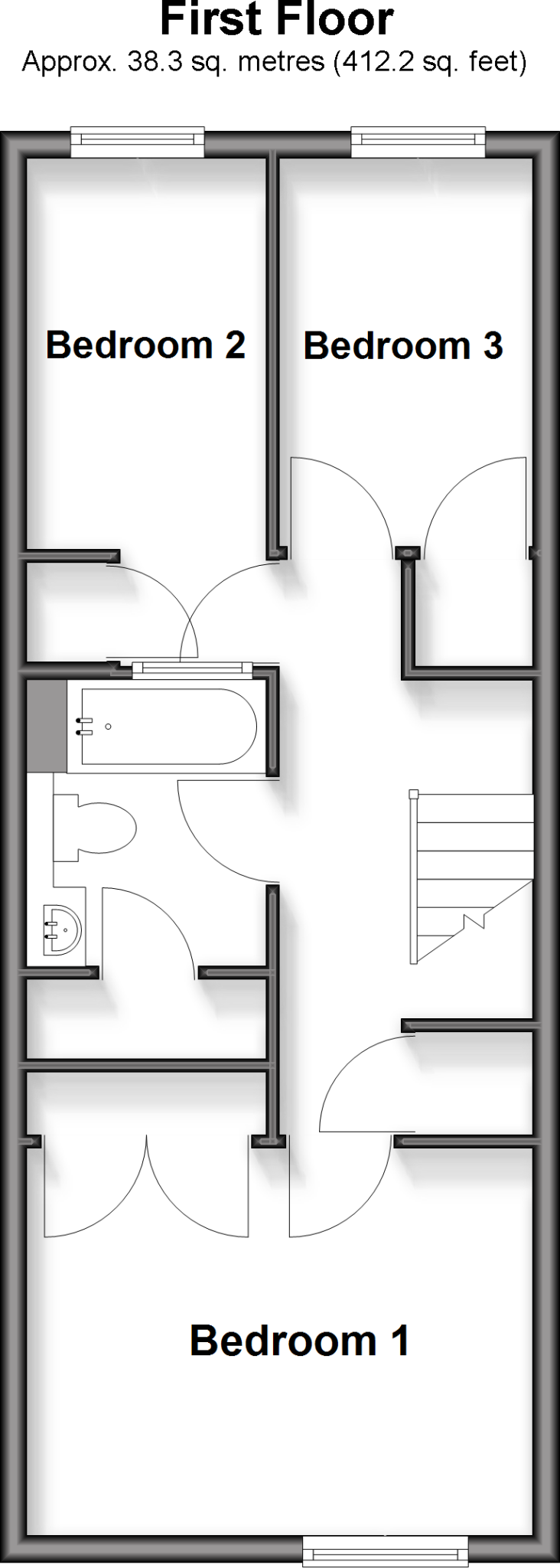
This is a three-bedroom terraced house located in Belmont, Sutton. The property is in good condition, with a modern kitchen and bathroom. It also benefits from a garden. The property is located close to local amenities, shops, and transportation links. Several schools are also nearby, including Devonshire Primary School, which is rated ‘Good’ by Ofsted. The list price of £500,000 seems relatively high considering the average price per square foot in the area and the property’s square footage.
Therefore, we give this property 6 / 10. *Disclaimer: This is our option and does constitute a recommendation or financial advice. Do your own research. *
- Price
- 6
- Condition
- 7
- Location
- 7
- Land
- 6
- Bedrooms
- 3
- Bathrooms
- 1
- Sqft (est)
- 364.00
The heatmap indicates the level of crime in the area. The color of the heatmap indicates the crime severity and recency.
Metrics Year-on-Year
- Average area value
- 426,436.00 £Decreased by 1.59 %
- Est sale value
- 175,084.00 £Increased by 21.77 %
- Average area rental value
- 1,587.00 £/moDecreased by 7.46 %
- Est letting value
- 364.00 £/moUnchanged by 0.00 %
- Est rental Yield
- 4.47 %Decreased by 5.89 %
- Crime Rate
- 2.00 %Unchanged by 0.00 %
Agent Activity
Cubitt & West created the listing.
Nearby Schools
| Name | Type | Ofsted | Distance |
|---|---|---|---|
| Devonshire Primary School | Community School | Good | 0.45 KM |
| Eagle House School Sutton | Other Independent Special School | Good | 0.68 KM |
| Orchard Hill College Of Further Education | Special Post 16 Institution | Outstanding | 0.78 KM |
| Seaton House School | Other Independent School | 0.88 KM | |
| Harris Academy Sutton | Free Schools | 1.10 KM |
Images
Nearby Streets
| Name | Average Price | Average Sqft | Distance |
|---|---|---|---|
| Mitre Close | £ 0 | 0 | 0.00 KM |
| Chalgrove Road | £ 850,000 | 0 | 0.00 KM |
| The Causeway | £ 0 | 0 | 0.00 KM |
| Wells Place | £ 250,000 | 0 | 0.00 KM |
| Felbridge Close | £ 0 | 0 | 0.00 KM |
Nearby Transport
| Name | NLC | TLC | Distance |
|---|---|---|---|
| Sutton | 5385 | SUO | 0.91 KM |
| Carshalton Beeches | 5406 | CSB | 1.81 KM |
| Belmont | 5350 | BLM | 1.82 KM |
| West Sutton | 5293 | WSU | 2.56 KM |
| Sutton Common | 5436 | SUC | 2.65 KM |
Nearby Listings
| Address | Price | Type | Score | Distance |
|---|---|---|---|---|
| Filey Close, Sutton, Surrey | £ 500,000 | BUY | 6 / 10 | 0.00 KM |
| Egmont Road, Sutton, Surrey | £ 250,000 | BUY | 6 / 10 | 0.04 KM |
| Egmont Road, Sutton | £ 200,000 | BUY | 5 / 10 | 0.05 KM |
| Egmont Road, Sutton, Surrey, SM2 | £ 280,000 | BUY | 6 / 10 | 0.05 KM |
| Devonshire Road, Sutton | £ 160,000 | BUY | 5 / 10 | 0.09 KM |
Nearby Properties
| Address | Price | Distance |
|---|---|---|
| 3 Filey Close | £ 440,000 | 0.02 KM |
| 13 Filey Close | £ 445,000 | 0.02 KM |
| 1 Filey Close | £ 370,000 | 0.02 KM |
| 9 Filey Close | £ 351,650 | 0.02 KM |
| 17 Filey Close | £ 475,000 | 0.02 KM |