Trinity Lane, Bishophill
By Churchills Estate Agents
£ 350,000
Reviews
2 out of 5 stars
Churchills Estate Agents says ..
OFFERED WITH NO FORWARD CHAIN! Churchills are delighted to present this spacious two bedroom, first floor apartment within the historic walls of York, centrally located only a few minutes walk from York's many City Centre amenities. Forming part of a charming conversion dating back to 1700's, the...
Property Oracle says ..
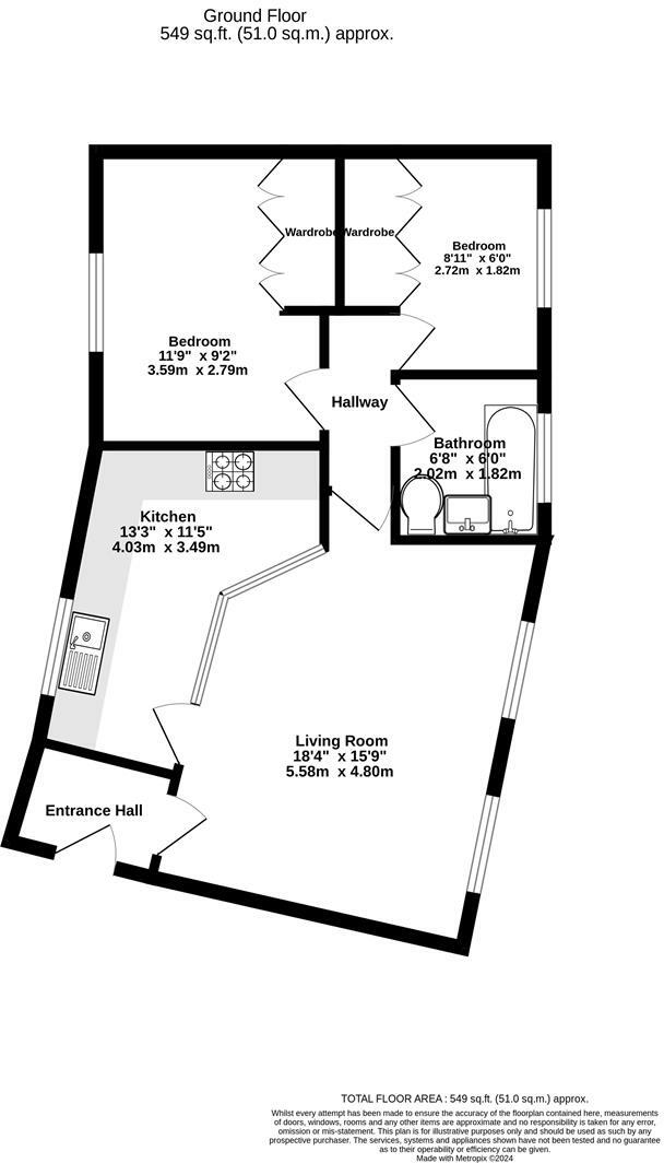
This property is a 2-bedroom apartment located in the Micklegate area of York. The apartment is situated on Trinity Lane, a street with a mix of property types and price points. While the provided images show a well-maintained interior, the lack of information regarding the exterior and plot size prevents a full assessment of the property condition and land. The list price of £350,000 is higher than the average price of similar properties in the area (£415,447), but the average square footage is significantly larger (973 sqft vs 549 sqft). Nearby properties on Trinity Lane and St. Martins Lane range from £220,000 to £675,000, indicating variability in pricing. The proximity to York train station (0.66 km) is a positive aspect, offering convenient transportation links. Several schools are within a reasonable distance, although Ofsted ratings are not provided for all of them. More information is needed to fully assess the value for money.
Therefore, we give this property 5 / 10. *Disclaimer: This is our option and does constitute a recommendation or financial advice. Do your own research. *
- Price
- 6
- Condition
- 7
- Location
- 8
- Land
- 1
- Bedrooms
- 2
- Bathrooms
- 1
- Sqft (est)
- 548.96
The heatmap indicates the level of crime in the area. The color of the heatmap indicates the crime severity and recency.
Metrics Year-on-Year
- Average area value
- 542,496.00 £Increased by 34.28 %
- Est sale value
- 229,465.28 £Increased by 33.55 %
- Average area rental value
- 1,435.00 £/moIncreased by 6.30 %
- Est letting value
- 548.96 £/moUnchanged by 0.00 %
- Est rental Yield
- 3.17 %Decreased by 20.95 %
- Crime Rate
- 18.00 %Unchanged by 0.00 %
Agent Activity
Churchills Estate Agents created the listing.
Nearby Schools
| Name | Type | Ofsted | Distance |
|---|---|---|---|
| Scarcroft Primary School | Academy Converter | 0.49 KM | |
| Millthorpe School | Academy Converter | Good | 0.90 KM |
| Bootham School | Other Independent School | 0.91 KM | |
| St Peter'S School 2-18 | Other Independent School | 1.22 KM | |
| The Mount School (York) | Other Independent School | 1.22 KM |
Images
Nearby Streets
| Name | Average Price | Average Sqft | Distance |
|---|---|---|---|
| Trinity Court | £ 282,500 | 0 | 0.00 KM |
| Riverside Lodge | £ 0 | 0 | 0.00 KM |
| Victoria Cloisters | £ 251,667 | 0 | 0.00 KM |
| Bishops Court | £ 0 | 0 | 0.00 KM |
| Barker Lane | £ 2,950,000 | 0 | 0.00 KM |
Nearby Transport
| Name | NLC | TLC | Distance |
|---|---|---|---|
| York | 8263 | YRK | 0.66 KM |
| Poppleton | 8254 | POP | 7.11 KM |
Nearby Listings
| Address | Price | Type | Score | Distance |
|---|---|---|---|---|
| Trinity Lane, Bishophill | £ 350,000 | BUY | 5 / 10 | 0.00 KM |
| Trinity Lane, Bishophill, York, YO1 6EY | £ 240,000 | BUY | 6 / 10 | 0.00 KM |
| Trinity Court, Trinity Lane, York | £ 325,000 | BUY | 6 / 10 | 0.01 KM |
| Trinity Lane, Bishophill, York, YO1 | £ 195,000 | BUY | 5 / 10 | 0.05 KM |
| St. Martins Lane, York | £ 170,000 | BUY | 6 / 10 | 0.06 KM |
Nearby Properties
| Address | Price | Distance |
|---|---|---|
| 5 St Martins Lane | £ 430,000 | 0.06 KM |
| 4 St Martins Lane | £ 425,000 | 0.06 KM |
| 6 St Martins Lane | £ 220,000 | 0.06 KM |
| 7 St Martins Lane | £ 628,000 | 0.06 KM |
| 3 St Martins Lane | £ 84,500 | 0.06 KM |