Chancellors says ..
A well presented two bedroom ground floor apartment with allocated parking situated on Horspath Road. This property is being sold with no onward chain and is walking distance to public transport and local shops.
Property Oracle says ..
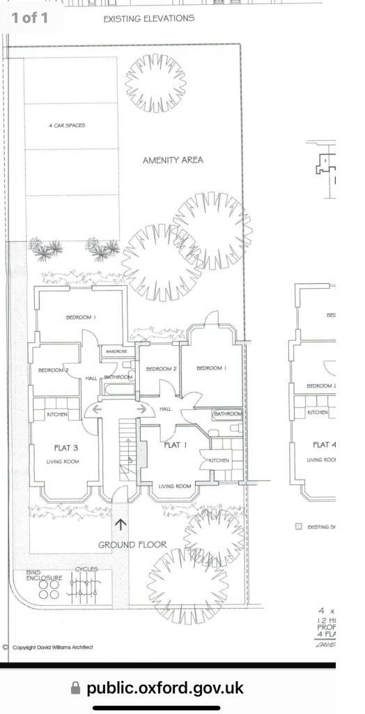
This two-bedroom property located on Horspath Road in Cowley, Oxford, presents a mixed bag for potential buyers. The property is described as a two bedroom property by the estate agent, Chancellors, but the floor plan shows four separate flats. This discrepancy requires clarification. Its proximity to several well-regarded primary schools rated ‘Good’ by Ofsted is a significant plus point, likely to attract families. The photographs reveal a property that appears to be in reasonable condition. The interior shots illustrate a fresh and clean, though rather basic, presentation with a recently fitted kitchen and bathroom, but the property lacks character and any significant bespoke details. A lack of external information about the building prevents a further comment on its overall external condition. A notable downside is the apparent lack of a garden or any significant outdoor space, which is a common requirement for buyers, particularly those with children or who value outdoor space. The listed price of £255,000 requires further context from comparable properties with similar square footage in the area to determine its true value. Given the limitations of the information available, it is only possible to make a tentative conclusion about the price. Overall, this property may appeal to first-time buyers or investors seeking a relatively affordable entry point into the Oxford property market, particularly those prioritizing good schools. However, buyers expecting a spacious living environment or significant outdoor space should look elsewhere. The limited external space presents a significant drawback. More information about the current configuration and condition of the property is needed to provide a more comprehensive evaluation.
Therefore, we give this property 5 / 10. *Disclaimer: This is our option and does constitute a recommendation or financial advice. Do your own research. *
- Price
- 7
- Condition
- 6
- Location
- 7
- Land
- 1
- Bedrooms
- 2
- Bathrooms
- 1
- Sqft (est)
- 474.00
The heatmap indicates the level of crime in the area. The color of the heatmap indicates the crime severity and recency.
Metrics Year-on-Year
- Average area value
- 473,750.00 £Increased by 2.87 %
- Est sale value
- 248,850.00 £Increased by 6.71 %
- Average area rental value
- 1,237.00 £/moDecreased by 12.02 %
- Est letting value
- 474.00 £/moUnchanged by 0.00 %
- Est rental Yield
- 3.13 %Decreased by 14.48 %
- Crime Rate
- 5.00 %Unchanged by 0.00 %
Agent Activity
Chancellors created the listing.
Nearby Schools
| Name | Type | Ofsted | Distance |
|---|---|---|---|
| St Francis Church Of England Primary School | Voluntary Controlled School | Good | 0.32 KM |
| Tyndale Community School | Free Schools | Good | 0.59 KM |
| Kings Education (Oxford) | Other Independent School | Good | 0.82 KM |
| Our Lady'S Roman Catholic Primary School | Academy Converter | Good | 1.04 KM |
| St Christopher'S Church Of England School, Cowley | Academy Sponsor Led | Good | 1.10 KM |
Images
Nearby Streets
| Name | Average Price | Average Sqft | Distance |
|---|---|---|---|
| William Morris Close | £ 372,500 | 0 | 0.00 KM |
| St Francis Court | £ 0 | 0 | 0.00 KM |
| Eastfield Place | £ 0 | 0 | 0.00 KM |
| Slade House | £ 0 | 0 | 0.00 KM |
| Three Fields Road | £ 280,000 | 0 | 0.00 KM |
Nearby Transport
| Name | NLC | TLC | Distance |
|---|---|---|---|
| Radley | 3118 | RAD | 7.10 KM |
| Oxford | 3115 | OXF | 7.54 KM |
Nearby Listings
| Address | Price | Type | Score | Distance |
|---|---|---|---|---|
| Horspath Road, Cowley, OX4 | £ 255,000 | BUY | 5 / 10 | 0.00 KM |
| Horspath Road, Cowley, Oxford | £ 600,000 | BUY | 7 / 10 | 0.04 KM |
| Horspath Road, East Oxford, OX4 | £ 500,000 | BUY | Unknown | 0.05 KM |
| Horspath Road, Oxford | £ 500,000 | BUY | 7 / 10 | 0.09 KM |
| Ridley Road, Cowley, OX4 | £ 400,000 | BUY | 7 / 10 | 0.10 KM |
Nearby Properties
| Address | Price | Distance |
|---|---|---|
| 41 Horspath Road | £ 212,000 | 0.03 KM |
| 37 Horspath Road | £ 305,000 | 0.03 KM |
| 47 Horspath Road | £ 325,000 | 0.04 KM |
| 39 Horspath Road | £ 346,000 | 0.04 KM |
| 6 Horspath Road | £ 205,000 | 0.04 KM |