19 Birchwood Place, Inverness, IV2 5AS
By Paul Coutts Estate Agency
£ 230,000
Reviews
3 out of 5 stars
Paul Coutts Estate Agency says ..
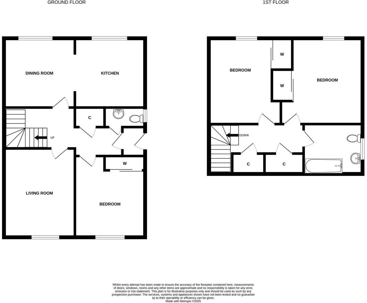
This well presented semi-detached property is located in the established residential area of Inshes Wood in Inverness. Offering three bedrooms together with flexible and spacious living accommodation this property is ideal for a growing family. There is ample off street parking and a low maint...
Property Oracle says ..
The property at 19 Birchwood Place, Inverness, is a semi-detached bungalow offering three bedrooms and two bathrooms. It is located in the Inverness South area. The property appears to be in generally good condition, with modern fixtures. It includes a garden and driveway. The asking price of £230,000 seems reasonable when compared to the average property price in the area, which is £317,000.
Therefore, we give this property 7 / 10. *Disclaimer: This is our option and does constitute a recommendation or financial advice. Do your own research. *
- Price
- 8
- Condition
- 7
- Location
- 7
- Land
- 6
- Bedrooms
- 3
- Bathrooms
- 2
- Sqft (est)
- 880.00
The heatmap indicates the level of crime in the area. The color of the heatmap indicates the crime severity and recency.
Metrics Year-on-Year
- Average area value
- 317,000.00 £Increased by 13.74 %
- Est sale value
- 310,640.00 £Increased by 34.73 %
- Average area rental value
- 900.00 £/moIncreased by 1.69 %
- Est letting value
- 880.00 £/mo
- Est rental Yield
- 3.41 %Decreased by 10.50 %
- Crime Rate
- 0.00 %
Agent Activity
Paul Coutts Estate Agency created the listing.
Images
Nearby Streets
| Name | Average Price | Average Sqft | Distance |
|---|---|---|---|
| Woodlands View | £ 185,000 | 0 | 0.00 KM |
| Birchwood Road | £ 169,500 | 0 | 0.00 KM |
| Castlehill Drive | £ 0 | 0 | 0.00 KM |
| Cradlehall Farm Drive | £ 0 | 0 | 0.00 KM |
| Castlehill Court | £ 0 | 0 | 0.00 KM |
Nearby Transport
| Name | NLC | TLC | Distance |
|---|---|---|---|
| Inverness | 8649 | INV | 6.66 KM |
Nearby Listings
| Address | Price | Type | Score | Distance |
|---|---|---|---|---|
| 19 Birchwood Place, Inverness, IV2 5AS | £ 230,000 | BUY | 7 / 10 | 0.00 KM |
| Birchwood Place, Inverness, IV2 5AS | £ 195,000 | BUY | 7 / 10 | 0.02 KM |
| Caulfield Road South, Inverness, IV2 5BH | £ 575,000 | BUY | 7 / 10 | 0.24 KM |
| Inshes Brae, Westhill, Inverness | £ 295,000 | BUY | 6 / 10 | 0.34 KM |
| Cradlehall Park, Inverness, IV2 5DA | £ 220,000 | BUY | 6 / 10 | 0.38 KM |