Holland Road, Kensal, London
By Warwick Estate Agents
£ 665,000
Reviews
4 out of 5 stars
Warwick Estate Agents says ..
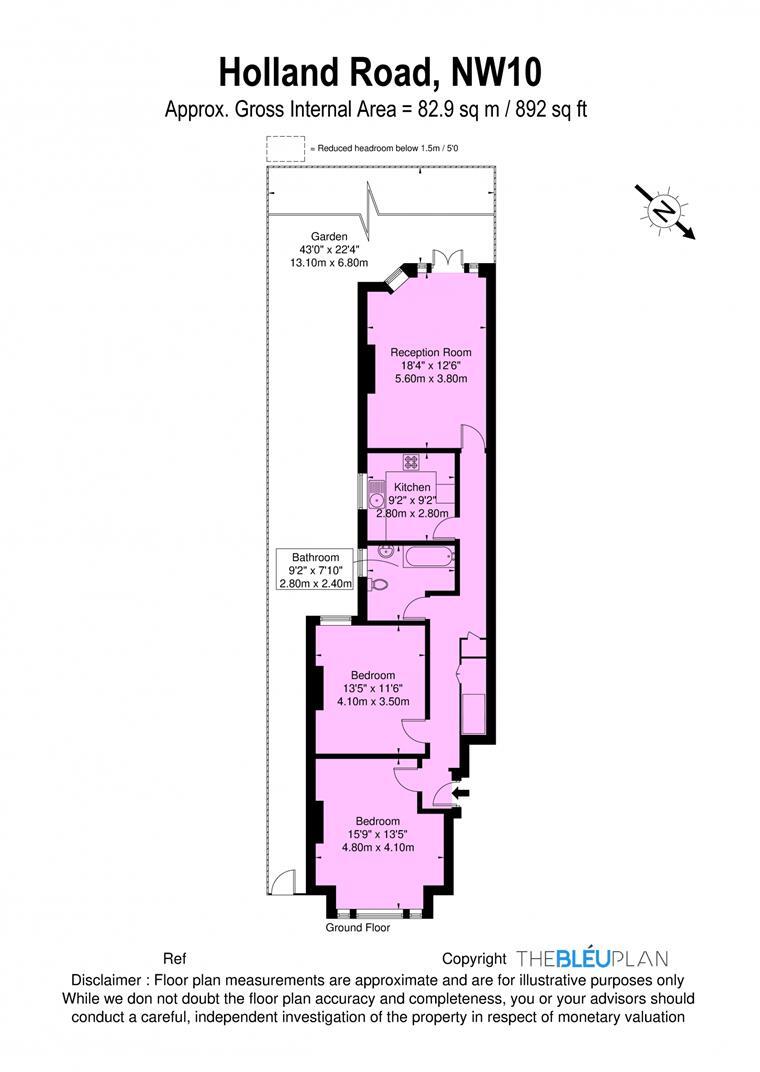
Unique, generously sized… timber floored two double bedroomed apartment with a south/westerly facing private rear garden, and some imposing period features enhanced by high ceilings. On the ground floor of this impressive end-terraced house, in a broad attractive road. The property offer...
Property Oracle says ..
This property is a 2 bedroom flat located in Kensal Green, London. The property is well presented and benefits from a good sized garden. The location is convenient with good transport links and nearby schools. The price is slightly below the average price per square foot for the area, making it potentially good value for money. However, further investigation into the specifics of the property and its condition would be beneficial to confirm this.
Therefore, we give this property 8 / 10. *Disclaimer: This is our option and does constitute a recommendation or financial advice. Do your own research. *
- Price
- 7
- Condition
- 8
- Location
- 9
- Land
- 8
- Bedrooms
- 2
- Bathrooms
- 1
- Sqft (est)
- 892.33
The heatmap indicates the level of crime in the area. The color of the heatmap indicates the crime severity and recency.
Metrics Year-on-Year
- Average area value
- 745,000.00 £Decreased by 11.71 %
- Est sale value
- 682,632.45 £Decreased by 15.09 %
- Average area rental value
- 2,378.00 £/moIncreased by 14.49 %
- Est letting value
- 1,784.66 £/moUnchanged by 0.00 %
- Est rental Yield
- 3.83 %Increased by 29.83 %
- Crime Rate
- 2.00 %Unchanged by 0.00 %
Agent Activity
Warwick Estate Agents created the listing.
Nearby Schools
| Name | Type | Ofsted | Distance |
|---|---|---|---|
| Treetops Children'S Centre | Children's Centre | 0.40 KM | |
| Capital City Academy | Academy Sponsor Led | Good | 0.43 KM |
| Kenmont Primary School | Community School | Good | 0.50 KM |
| College Green School And Services | Local Authority Nursery School | Outstanding | 0.62 KM |
| Furness Primary School | Academy Converter | Good | 0.66 KM |
Images
Nearby Streets
| Name | Average Price | Average Sqft | Distance |
|---|---|---|---|
| Wrottesley Road | £ 0 | 0 | 0.00 KM |
| Wrottesley Road | £ 0 | 0 | 0.00 KM |
| Wrottesley Road | £ 0 | 0 | 0.00 KM |
| Wrottesley Road | £ 0 | 0 | 0.00 KM |
| Wrottesley Road | £ 0 | 0 | 0.00 KM |
Nearby Transport
| Name | NLC | TLC | Distance |
|---|---|---|---|
| Kensal Green | 1447 | KNL | 1.05 KM |
| Willesden Junction | 1457 | WIJ | 1.31 KM |
| Kensal Rise | 1448 | KNR | 1.46 KM |
| Brondesbury Park | 1438 | BSP | 2.60 KM |
| Harlesden | 1521 | HDN | 2.72 KM |
Nearby Listings
| Address | Price | Type | Score | Distance |
|---|---|---|---|---|
| Holland Road, Kensal, London | £ 665,000 | BUY | 8 / 10 | 0.00 KM |
| Holland Road, Kensal Rise, NW10 | £ 500,000 | BUY | Unknown | 0.06 KM |
| Lushington Road, Kensal Rise (Borders), NW10 | £ 699,950 | BUY | 6 / 10 | 0.06 KM |
| Herbert Gardens, Kensal Green, London, NW10 | £ 1,500,000 | BUY | 8 / 10 | 0.08 KM |
| Herbert Gardens, London, NW10 | £ 1,500,000 | BUY | 8 / 10 | 0.13 KM |
Nearby Properties
| Address | Price | Distance |
|---|---|---|
| 47 Holland Road | £ 850,000 | 0.06 KM |
| 87 Holland Road | £ 1,415,000 | 0.06 KM |
| 123 Holland Road | £ 925,000 | 0.06 KM |
| 111 Holland Road | £ 1,110,000 | 0.06 KM |
| 79 Holland Road | £ 1,272,000 | 0.06 KM |