Trinity View, Leeds, LS28
By Domus Residential
£ 219,950
Reviews
2 out of 5 stars
Domus Residential says ..
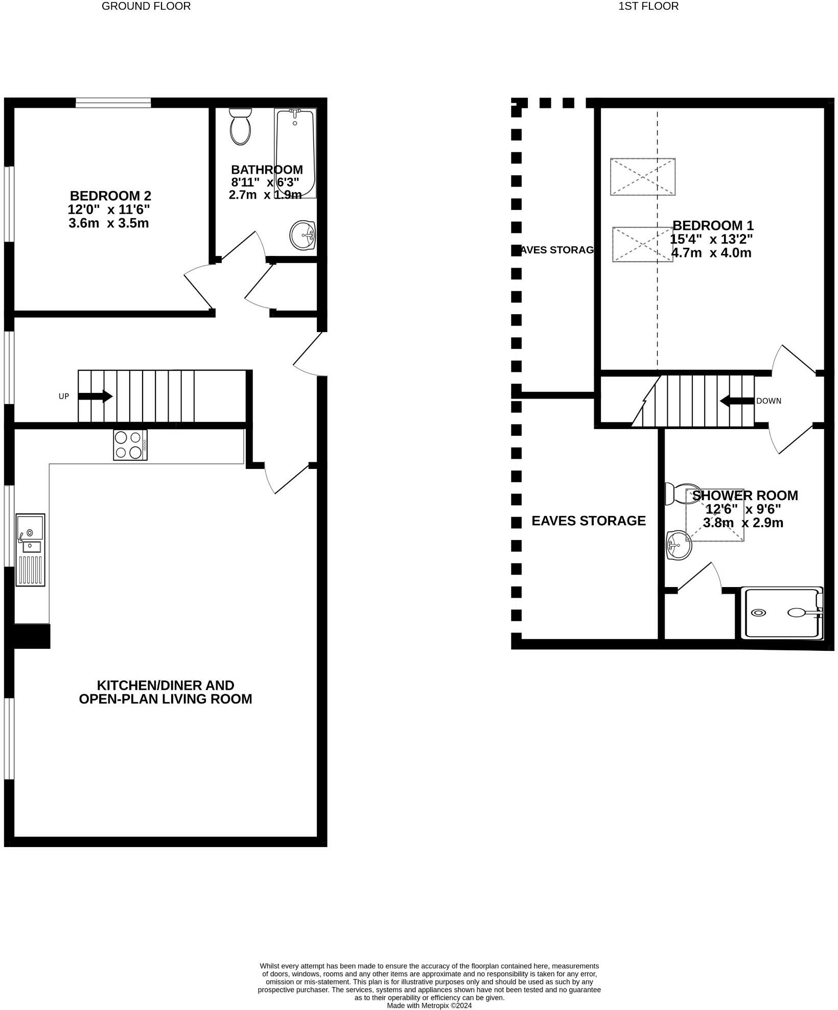
Over 1000sq ft and 19ft high ceilings. This stunning top floor apartment has a loft feel from the moment you step in the door. Large feature windows across two elevations flood the property with light, and the room dimensions are more than generous!Within a few minutes walk is Mill Kitchen!
Property Oracle says ..
This two-bedroom, two-bathroom apartment in Trinity View, Farsley, Leeds, presents a modern and well-maintained living space. The images highlight a contemporary design with high ceilings and large windows, creating an open and airy feel. The property benefits from a convenient location close to several well-regarded primary schools and New Pudsey train station, making it suitable for professionals and families alike. The absence of information regarding outdoor space is a noteworthy detail. In conclusion, this apartment is a solid option for those seeking a move-in ready home in a convenient location. Further details on the building itself (e.g., parking, communal areas) and a more thorough property inspection would enhance the assessment.
Therefore, we give this property 5 / 10. *Disclaimer: This is our option and does constitute a recommendation or financial advice. Do your own research. *
- Price
- 7
- Condition
- 8
- Location
- 7
- Land
- 1
- Bedrooms
- 2
- Bathrooms
- 2
- Sqft (est)
- 936.14
The heatmap indicates the level of crime in the area. The color of the heatmap indicates the crime severity and recency.
Metrics Year-on-Year
- Average area value
- 245,948.00 £Decreased by 19.85 %
- Est sale value
- 330,457.42 £Increased by 41.20 %
- Average area rental value
- 915.00 £/moDecreased by 6.92 %
- Est letting value
- 936.14 £/mo
- Est rental Yield
- 4.46 %Increased by 16.15 %
- Crime Rate
- 2.00 %Unchanged by 0.00 %
Agent Activity
Domus Residential marked this listing as sold.
Domus Residential created the listing.
Nearby Schools
| Name | Type | Ofsted | Distance |
|---|---|---|---|
| Farsley Springbank Primary School | Community School | Good | 0.46 KM |
| Westroyd Primary School And Nursery | Community School | Good | 0.74 KM |
| Farsley & Calverley Children'S Centre | Children's Centre | 1.20 KM | |
| Farsley Farfield Primary School | Community School | Good | 1.31 KM |
| Valley View Community Primary School | Community School | Good | 1.50 KM |
Images
Nearby Streets
| Name | Average Price | Average Sqft | Distance |
|---|---|---|---|
| Charles Street | £ 0 | 0 | 0.00 KM |
| Ebenezer Street | £ 0 | 0 | 0.00 KM |
| Well Street | £ 0 | 0 | 0.00 KM |
| Wade Street | £ 0 | 0 | 0.00 KM |
| Cherry Tree Crescent | £ 300,000 | 0 | 0.00 KM |
Nearby Transport
| Name | NLC | TLC | Distance |
|---|---|---|---|
| New Pudsey | 8506 | NPD | 1.60 KM |
| Bramley (West Yorkshire) | 8496 | BLE | 4.01 KM |
| Apperley Bridge | 8562 | APY | 4.73 KM |
| Kirkstall Forge | 6544 | KLF | 5.53 KM |
| Horsforth | 8499 | HRS | 5.81 KM |
Nearby Listings
| Address | Price | Type | Score | Distance |
|---|---|---|---|---|
| Trinity View, Leeds, LS28 | £ 219,950 | BUY | 5 / 10 | 0.00 KM |
| 5 Trinity View, Bryan Street, Farsley, Pudsey, West Yorkshire | £ 190,000 | BUY | 6 / 10 | 0.01 KM |
| Trinity View, Bryan Street, Farsley, Pudsey, Leeds,, LS28 | £ 199,950 | BUY | 5 / 10 | 0.01 KM |
| Trinity View, Bryan Street, Farsley, West Yorkshire | £ 229,950 | BUY | 5 / 10 | 0.03 KM |
| 10 Trinity View, Bryan Street, Farsley, Pudsey, West Yorkshire | £ 250,000 | BUY | 8 / 10 | 0.03 KM |
Nearby Properties
| Address | Price | Distance |
|---|---|---|
| 21 Bryan Street | £ 140,000 | 0.04 KM |
| 12 Bryan Street | £ 242,500 | 0.04 KM |
| 15 Bryan Street | £ 145,000 | 0.04 KM |
| 67 Bryan Street | £ 175,000 | 0.04 KM |
| 16 Bryan Street | £ 170,000 | 0.04 KM |