JLL says ..
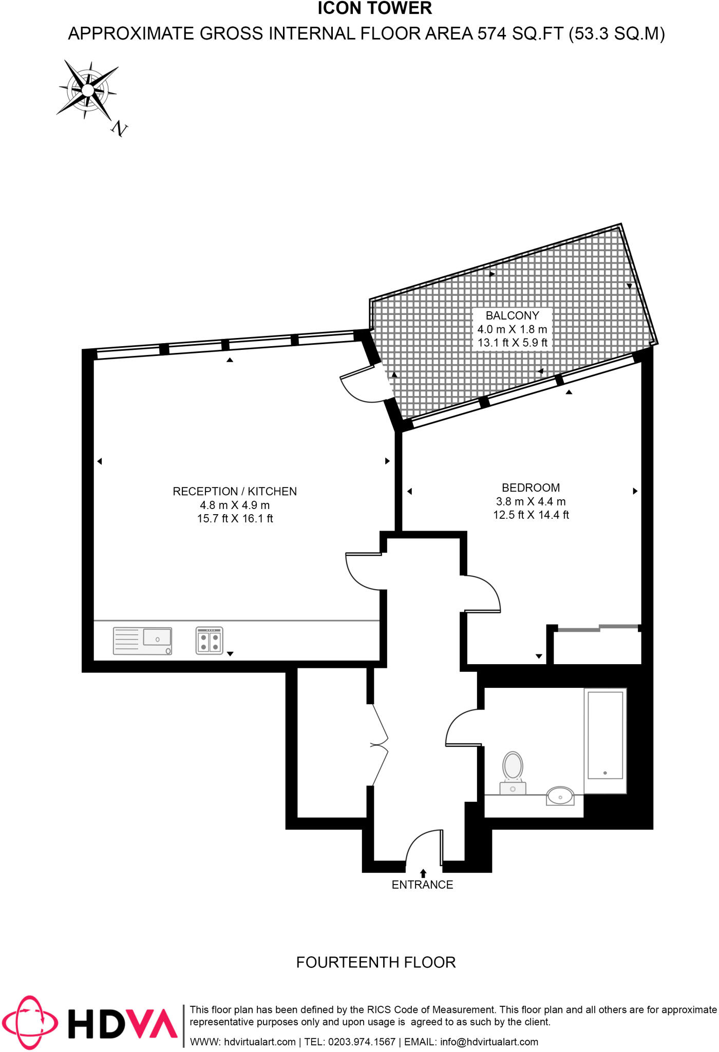
A luxury one bedroom, one bathroom apartment set on the 14th floor of this landmark development, Icon Tower. The apartment benefits from spacious open plan living and kitchen area. Spacious bedroom with built in storage, floor-to-ceiling windows and a private balcony.
Property Oracle says ..
This is a modern one-bedroom apartment located in East Acton, London. The property is in good condition and offers convenient access to transportation and local amenities. The apartment features a modern kitchen and bathroom, and the living spaces are well-maintained. While the property doesn’t have a garden, it does have a balcony. The price is reasonable compared to the average in the area, making it a potentially attractive option for buyers.
Therefore, we give this property 6 / 10. *Disclaimer: This is our option and does constitute a recommendation or financial advice. Do your own research. *
- Price
- 7
- Condition
- 8
- Location
- 7
- Land
- 3
- Bedrooms
- 1
- Bathrooms
- 1
- Sqft (est)
- 574.00
The heatmap indicates the level of crime in the area. The color of the heatmap indicates the crime severity and recency.
Metrics Year-on-Year
- Average area value
- 602,363.00 £Decreased by 3.66 %
- Est sale value
- 437,962.00 £Increased by 25.49 %
- Average area rental value
- 2,309.00 £/moIncreased by 9.48 %
- Est letting value
- 1,148.00 £/moUnchanged by 0.00 %
- Est rental Yield
- 4.60 %Increased by 13.58 %
- Crime Rate
- 7.00 %Unchanged by 0.00 %
Agent Activity
JLL created the listing.
Nearby Schools
| Name | Type | Ofsted | Distance |
|---|---|---|---|
| London Bunka Yochien | Other Independent School | Good | 0.72 KM |
| John Perryn Primary School | Community School | Good | 0.77 KM |
| East Acton Primary School | Community School | Good | 1.34 KM |
| Maples Children'S Centre | Children's Centre Linked Site | 1.44 KM | |
| Maples Nursery School And Children'S Centre | Local Authority Nursery School | Good | 1.48 KM |
Images
Nearby Streets
| Name | Average Price | Average Sqft | Distance |
|---|---|---|---|
| A4000 | £ 0 | 0 | 0.00 KM |
| Park View | £ 719,993 | 0 | 0.00 KM |
| Heartwood Boulevard | £ 563,375 | 0 | 0.00 KM |
| Friary Road | £ 0 | 0 | 0.00 KM |
| Canada Road | £ 514,167 | 0 | 0.00 KM |
Nearby Transport
| Name | NLC | TLC | Distance |
|---|---|---|---|
| Acton Main Line | 3000 | AML | 0.80 KM |
| Acton Central | 1404 | ACC | 1.51 KM |
| Harlesden | 1521 | HDN | 1.63 KM |
| Willesden Junction | 1457 | WIJ | 2.21 KM |
| South Acton | 1452 | SAT | 2.68 KM |
Nearby Listings
| Address | Price | Type | Score | Distance |
|---|---|---|---|---|
| Icon Tower, Portal Way, London, W3 | £ 430,000 | BUY | Unknown | 0.00 KM |
| London W3 | £ 449,000 | BUY | 6 / 10 | 0.00 KM |
| Icon Tower, Portal Way W3 | £ 530,000 | BUY | 6 / 10 | 0.00 KM |
| Icon Tower W3 | £ 675,000 | BUY | 6 / 10 | 0.00 KM |
| Portal Way, Acton, W3 | £ 425,000 | BUY | 6 / 10 | 0.01 KM |
Nearby Properties
| Address | Price | Distance |
|---|---|---|
| 52 Wales Farm Road | £ 200,000 | 0.21 KM |
| 38 Wales Farm Road | £ 725,000 | 0.21 KM |
| 36 Wales Farm Road | £ 775,000 | 0.21 KM |
| 2 Garrett Close | £ 85,000 | 0.23 KM |
| 9 Garrett Close | £ 250,000 | 0.23 KM |