Manderston Close, Milking Bank/ Lower Gornal
By Taylors Estate Agents
£ 350,000
Reviews
3 out of 5 stars
Taylors Estate Agents says ..
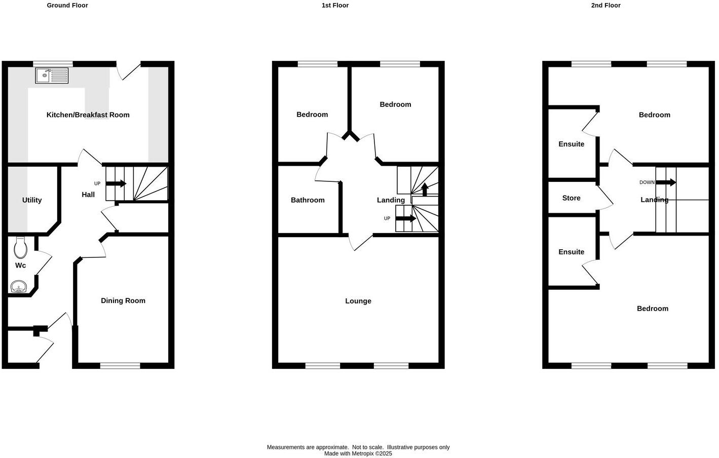
A STUNNING THREE-STOREY FAMILY RESIDENCE, occupying an ideal position within a desirable cul-de-sac offering the best of what Lower Gornal & Milking Bank has to offer. Being IMMACULATELY PRESENTED THROUGHOUT, this DECEPTIVELY SPACIOUS FOUR BEDROOM semi-detached briefly compris...
Property Oracle says ..
This is a four-bedroom terraced house located in Manderston Close, Milking Bank/ Lower Gornal, Dudley. The property is in good condition and features a modern kitchen, three bathrooms, and a well-maintained garden with a shed and patio area. Nearby schools include Milking Bank Primary School and Roberts Primary School. The nearest train station is Coseley, which is 4.47 KM away. The property is listed for £350,000, which seems reasonable given its condition, location, and size of 1,400 sqft.
Therefore, we give this property 7 / 10. *Disclaimer: This is our option and does constitute a recommendation or financial advice. Do your own research. *
- Price
- 7
- Condition
- 8
- Location
- 7
- Land
- 7
- Bedrooms
- 4
- Bathrooms
- 3
- Sqft (est)
- 1,400.00
The heatmap indicates the level of crime in the area. The color of the heatmap indicates the crime severity and recency.
Metrics Year-on-Year
- Average area value
- 1,598,970.00 £Decreased by 20.58 %
- Est sale value
- 2,039,800.00 £Decreased by 26.53 %
- Average area rental value
- 2,716.00 £/moDecreased by 1.74 %
- Est letting value
- 2,800.00 £/moUnchanged by 0.00 %
- Est rental Yield
- 2.04 %Increased by 23.64 %
- Crime Rate
- 3.00 %Unchanged by 0.00 %
Agent Activity
Taylors Estate Agents created the listing.
Nearby Schools
| Name | Type | Ofsted | Distance |
|---|---|---|---|
| Milking Bank Primary School | Community School | Good | 0.48 KM |
| Roberts Primary School | Community School | Good | 0.56 KM |
| Gornal Children'S Centre | Children's Centre | 0.57 KM | |
| The King Alfred School | Other Independent School | 0.80 KM | |
| Cherry Tree Learning Centre | Academy Alternative Provision Converter | 1.11 KM |
Images
Nearby Streets
| Name | Average Price | Average Sqft | Distance |
|---|---|---|---|
| Winchcombe Close | £ 0 | 0 | 0.00 KM |
| Jew's Lane | £ 0 | 0 | 0.00 KM |
| Cricket Meadow | £ 156,650 | 0 | 0.00 KM |
| Grosvenor Road South | £ 0 | 0 | 0.00 KM |
| Rock Street | £ 107,499 | 0 | 0.00 KM |
Nearby Transport
| Name | NLC | TLC | Distance |
|---|---|---|---|
| Coseley | 1143 | CSY | 4.47 KM |
| Tipton | 1159 | TIP | 5.71 KM |
| Cradley Heath | 4639 | CRA | 6.11 KM |
| Lye (West Midlands) | 4640 | LYE | 6.50 KM |
| Dudley Port | 1212 | DDP | 7.38 KM |
Nearby Listings
| Address | Price | Type | Score | Distance |
|---|---|---|---|---|
| Manderston Close, Milking Bank/ Dudley Border | £ 349,950 | BUY | 7 / 10 | 0.00 KM |
| Manderston Close, Milking Bank/ Lower Gornal | £ 350,000 | BUY | 7 / 10 | 0.00 KM |
| Manderston Close, Lower Gornal/ Milking Bank | £ 139,950 | BUY | 5 / 10 | 0.00 KM |
| Dibdale Road West, Dudley | £ 136,000 | BUY | 6 / 10 | 0.04 KM |
| Dibdale Road West, DUDLEY, DY1 2TF | £ 214,950 | BUY | 6 / 10 | 0.04 KM |
Nearby Properties
| Address | Price | Distance |
|---|---|---|
| 36 Manderston Close | £ 159,950 | 0.00 KM |
| 25 Manderston Close | £ 116,000 | 0.00 KM |
| 5 Manderston Close | £ 272,000 | 0.00 KM |
| 6 Manderston Close | £ 170,000 | 0.00 KM |
| 26 Manderston Close | £ 174,950 | 0.00 KM |