brandons says ..
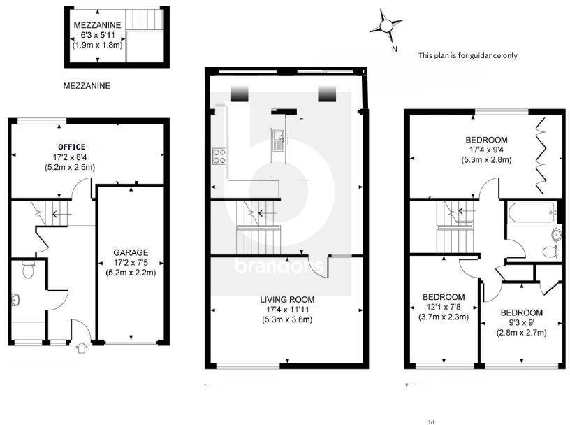
Rarely available, this spacious extended terraced town house is situated within a quiet cul de sac that is a short walk from St. Johns village. The accommodation includes three well-proportioned bedrooms and family bathroom on the top floor, in addition there’s a reception room on the mezzan...
Property Oracle says ..
The property is a 4-bedroom, 2-bathroom terraced house located in St Johns, Woking, Surrey. The list price is £435,000. The property is 2,240.83 sqft and benefits from a garden. The average house price in the area is £374,740, with an average price per sqft of £373. This property is significantly larger than average at 2,240.83 sqft compared to the average of 1,002 sqft. Considering the location, close to schools like The Winston Churchill School (0.41km) and Beaufort Primary School (0.97km), both rated ‘Good’ by Ofsted, and relatively close proximity to Woking train station, the location score is high. The property also benefits from being within walking distance of local amenities. Based on the provided images, the property appears to be in generally good condition, although some areas may benefit from modernisation. The kitchen and bathrooms seem well maintained, but some rooms show signs of needing some updating. There is evidence of a small garden, which adds value to the property. Given the size of the property (2,240.83 sqft), its location, and the presence of a garden, the list price of £435,000 appears to be reasonable, although slightly above the average price for the area. However, the larger size and desirable location justify the higher price point. Further analysis of comparable properties in the immediate vicinity would be beneficial to provide a more precise valuation.
Therefore, we give this property 7 / 10. *Disclaimer: This is our option and does constitute a recommendation or financial advice. Do your own research. *
- Price
- 7
- Condition
- 7
- Location
- 8
- Land
- 6
- Bedrooms
- 4
- Bathrooms
- 2
- Sqft (est)
- 2,240.83
The heatmap indicates the level of crime in the area. The color of the heatmap indicates the crime severity and recency.
Metrics Year-on-Year
- Average area value
- 384,737.00 £Decreased by 1.20 %
- Est sale value
- 912,017.81 £Increased by 15.95 %
- Average area rental value
- 1,963.00 £/moIncreased by 39.81 %
- Est letting value
- 4,481.66 £/moIncreased by 100.00 %
- Est rental Yield
- 6.12 %Increased by 41.34 %
- Crime Rate
- 12.00 %Unchanged by 0.00 %
Agent Activity
brandons created the listing.
Nearby Schools
| Name | Type | Ofsted | Distance |
|---|---|---|---|
| The Winston Churchill School A Specialist Sports College | Foundation School | Good | 0.41 KM |
| Beaufort Primary School | Academy Converter | Good | 0.97 KM |
| St John'S Primary School | Academy Sponsor Led | Requires improvement | 1.04 KM |
| St John'S Primary School And Sure Start Children'S Centre | Children's Centre | 1.04 KM | |
| The Oaktree School | Academy Converter | 1.17 KM |
Images
Nearby Streets
| Name | Average Price | Average Sqft | Distance |
|---|---|---|---|
| Saint John's Lye | £ 0 | 0 | 0.00 KM |
| Robin Hood Roundabout cycle path | £ 0 | 0 | 0.00 KM |
| Lockfield Drive cycle path | £ 0 | 0 | 0.00 KM |
| Prestbury Court | £ 0 | 0 | 0.00 KM |
| St John's Road | £ 535,000 | 0 | 0.00 KM |
Nearby Transport
| Name | NLC | TLC | Distance |
|---|---|---|---|
| Worplesdon | 5686 | WPL | 3.22 KM |
| Brookwood | 5687 | BKO | 4.35 KM |
| Woking | 5685 | WOK | 4.54 KM |
| Longcross | 5674 | LNG | 7.96 KM |
| Guildford | 5631 | GLD | 8.76 KM |
Nearby Listings
| Address | Price | Type | Score | Distance |
|---|---|---|---|---|
| St,Johns | £ 435,000 | BUY | 7 / 10 | 0.00 KM |
| Robin Hood Close, Woking, Surrey, GU21 | £ 435,000 | BUY | 7 / 10 | 0.00 KM |
| Robin Hood Close, St Johns, Woking, GU21 | £ 450,000 | BUY | 6 / 10 | 0.03 KM |
| Ashley Road, Woking, Surrey, GU21 | £ 425,000 | BUY | 7 / 10 | 0.06 KM |
| St. Johns, Woking, Surrey, GU21 | £ 400,000 | BUY | 6 / 10 | 0.08 KM |
Nearby Properties
| Address | Price | Distance |
|---|---|---|
| 17 Robin Hood Close | £ 340,000 | 0.01 KM |
| 2 Robin Hood Close | £ 550,000 | 0.01 KM |
| 11 Robin Hood Close | £ 370,000 | 0.01 KM |
| 18 Robin Hood Close | £ 282,000 | 0.01 KM |
| 14 Robin Hood Close | £ 358,100 | 0.01 KM |