Churcher Estates says ..
Churcher Estates are delighted to present Honeysuckle Cottage, a truly unique four-bedroom detached family home, nestled in the heart of the highly desirable village of Euxton. From the very first glance, this charming residence captures attention with its character, generous proportions,
Property Oracle says ..
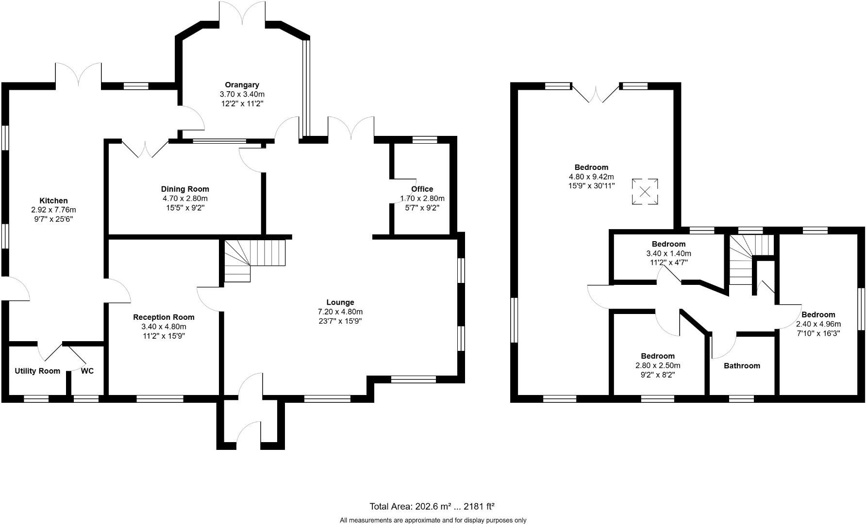
This detached property on Dawbers Lane, Euxton, offers four bedrooms and one bathroom. The house retains some traditional features, including exposed beams and a fireplace, but could benefit from modernisation in certain areas. The property includes a large garden and a patio area, providing ample outdoor space. While the location is convenient for schools and transport, the price is slightly above the local average, considering the condition and potential for updates.
Therefore, we give this property 6 / 10. *Disclaimer: This is our option and does constitute a recommendation or financial advice. Do your own research. *
- Price
- 6
- Condition
- 6
- Location
- 7
- Land
- 8
- Bedrooms
- 4
- Bathrooms
- 1
The heatmap indicates the level of crime in the area. The color of the heatmap indicates the crime severity and recency.
Metrics Year-on-Year
- Average area value
- 362,000.00 £Decreased by 15.58 %
- Average area rental value
- 1,148.00 £/moIncreased by 13.55 %
- Est rental Yield
- 3.81 %Increased by 34.63 %
- Crime Rate
- 18.00 %Unchanged by 0.00 %
Agent Activity
Churcher Estates created the listing.
Nearby Schools
| Name | Type | Ofsted | Distance |
|---|---|---|---|
| Eccleston St Mary'S Church Of England Primary School | Voluntary Aided School | Good | 2.35 KM |
| Blossomfields Children'S Centre | Children's Centre | 2.35 KM | |
| Eccleston Primary School | Community School | Good | 2.42 KM |
| Wade Hall Children'S Centre | Children's Centre | 2.48 KM | |
| St Mary'S Catholic High School | Voluntary Aided School | Good | 2.56 KM |
Images
Nearby Streets
| Name | Average Price | Average Sqft | Distance |
|---|---|---|---|
| Leyland Lane | £ 0 | 0 | 0.00 KM |
| Kestrel Close | £ 399,995 | 0 | 0.00 KM |
| Birdsfoot Close | £ 0 | 0 | 0.00 KM |
| Elder Close | £ 367,500 | 0 | 0.00 KM |
| Warwick Road | £ 0 | 0 | 0.00 KM |
Nearby Transport
| Name | NLC | TLC | Distance |
|---|---|---|---|
| Euxton Balshaw Lane | 2080 | EBA | 4.58 KM |
| Leyland | 2710 | LEY | 4.96 KM |
| Buckshaw Parkway | 7501 | BSV | 5.93 KM |
| Croston | 2313 | CSO | 7.13 KM |
| Lostock Hall | 2689 | LOH | 7.42 KM |
Nearby Listings
| Address | Price | Type | Score | Distance |
|---|---|---|---|---|
| Dawbers Lane, Euxton PR7 | £ 539,950 | BUY | 6 / 10 | 0.00 KM |
| Dawbers Lane, Euxton, PR7 6EU | £ 450,000 | BUY | 7 / 10 | 0.15 KM |
| Runshaw Lane, PR7 | £ 650,000 | BUY | 7 / 10 | 0.15 KM |
| The Barn Lower House Farm Runshaw Lane, Euxton PR7 6EY | £ 795,000 | BUY | 7 / 10 | 0.45 KM |
| Flag Lane, Chorley | £ 425,000 | BUY | 7 / 10 | 0.79 KM |
Nearby Properties
| Address | Price | Distance |
|---|---|---|
| 75 Southport Road | £ 167,500 | 1.20 KM |
| Four Winds | £ 650,000 | 1.20 KM |
| 73 Southport Road | £ 165,000 | 1.20 KM |
| 71 Southport Road | £ 189,000 | 1.23 KM |
| 65 Southport Road | £ 200,000 | 1.23 KM |