Chase Holmes says ..
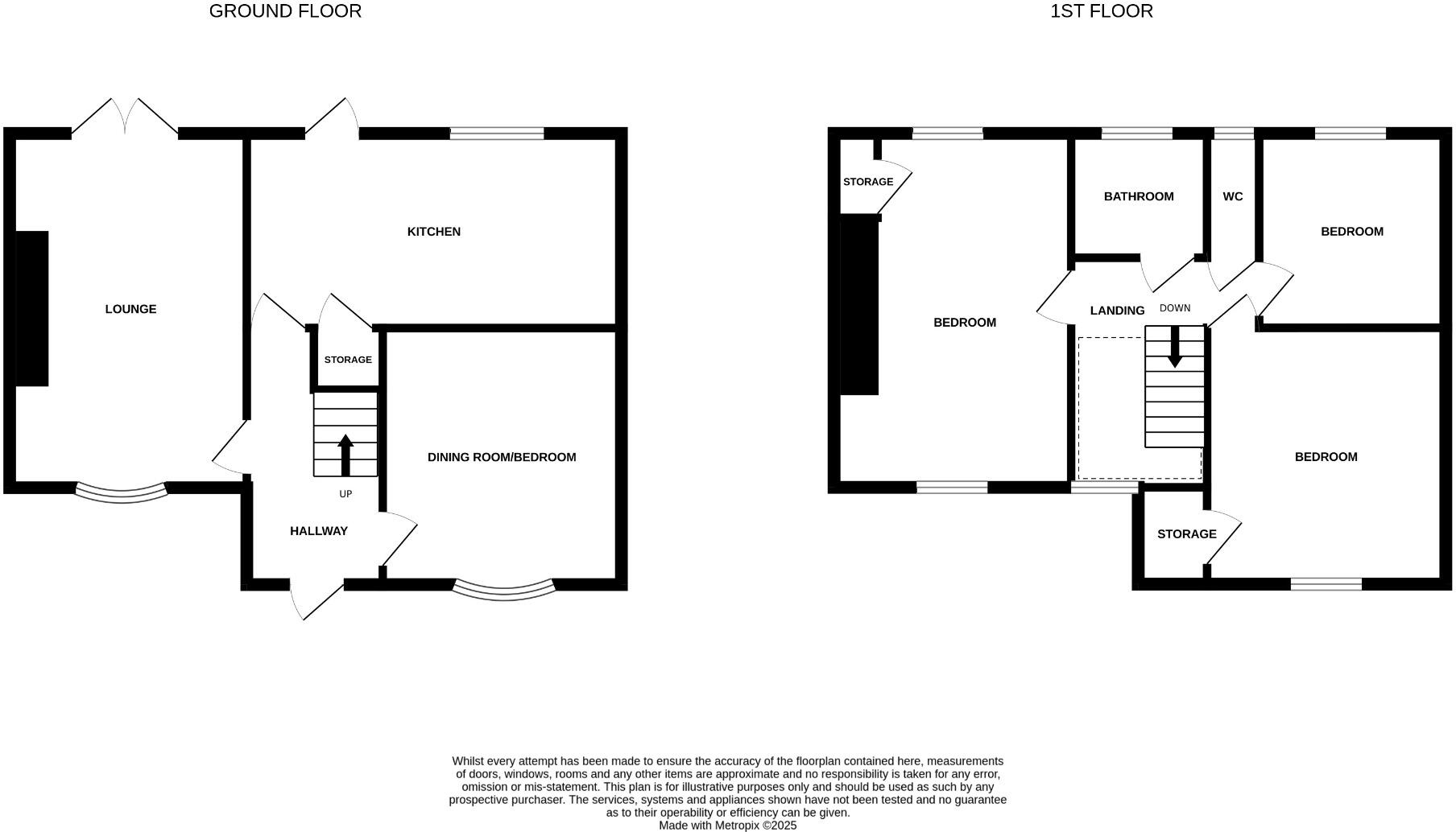
This fabulous three bedroom semi-detached house is ideally situated in a highly sought-after area of Jarrow. With generous living space, extensive surrounding gardens, and excellent transport links, this property is perfect for growing families.
Property Oracle says ..
Therefore, we give this property 7 / 10. *Disclaimer: This is our option and does constitute a recommendation or financial advice. Do your own research. *
- Price
- 8
- Condition
- 8
- Location
- 7
- Land
- 7
- Bedrooms
- 3
- Bathrooms
- 1
- Sqft (est)
- 936.00
The heatmap indicates the level of crime in the area. The color of the heatmap indicates the crime severity and recency.
Metrics Year-on-Year
- Average area value
- 410,714.00 £Increased by 0.52 %
- Est sale value
- 393,120.00 £Increased by 4.48 %
- Average area rental value
- 1,363.00 £/moDecreased by 8.52 %
- Est letting value
- 936.00 £/moUnchanged by 0.00 %
- Est rental Yield
- 3.98 %Decreased by 9.13 %
- Crime Rate
- 1.00 %Unchanged by 0.00 %
from 408,604.00 £
from 376,272.00 £
from 1,490.00 £/mo
from 936.00 £/mo
from 4.38 %
from 1.00 %
Agent Activity
Chase Holmes created the listing.
Nearby Schools
| Name | Type | Ofsted | Distance |
|---|---|---|---|
| Bede Burn Primary School | Community School | Good | 0.20 KM |
| Valley View Primary School | Community School | Outstanding | 0.72 KM |
| St Matthew'S Rc Voluntary Aided Primary School | Voluntary Aided School | Outstanding | 0.87 KM |
| Primrose Centre | Children's Centre | 0.91 KM | |
| Jarrow School | Foundation School | Good | 0.92 KM |
Images
Nearby Streets
| Name | Average Price | Average Sqft | Distance |
|---|---|---|---|
| Valley View | £ 0 | 0 | 0.00 KM |
| Rothbury Avenue | £ 200,000 | 0 | 0.00 KM |
| York Avenue | £ 340,000 | 0 | 0.00 KM |
| Hylton Road | £ 0 | 0 | 0.00 KM |
| Wentworth Close | £ 0 | 0 | 0.00 KM |
Nearby Transport
| Name | NLC | TLC | Distance |
|---|---|---|---|
| Heworth | 7766 | HEW | 6.89 KM |
Nearby Listings
| Address | Price | Type | Score | Distance |
|---|---|---|---|---|
| Jarrow, Tyne And Wear, NE32 | £ 235,000 | BUY | 7 / 10 | 0.00 KM |
| Laburnum Gardens, Primrose, Jarrow, Tyne and Wear, NE32 5NF | £ 165,000 | BUY | 6 / 10 | 0.04 KM |
| Laburnum Gardens, Jarrow | £ 180,000 | BUY | 7 / 10 | 0.06 KM |
| Laburnum Gardens, Jarrow, South Tyneside, NE32 | £ 215,000 | BUY | 8 / 10 | 0.10 KM |
| Laburnum Gardens, Jarrow, South Tyneside, NE32 | £ 215,000 | BUY | 7 / 10 | 0.10 KM |
Nearby Properties
| Address | Price | Distance |
|---|---|---|
| 56 Laburnum Gardens | £ 138,500 | 0.05 KM |
| 17 Laburnum Gardens | £ 135,000 | 0.05 KM |
| 60 Laburnum Gardens | £ 133,500 | 0.05 KM |
| 12 Laburnum Gardens | £ 147,650 | 0.05 KM |
| 9 Laburnum Gardens | £ 112,000 | 0.05 KM |