Hay Street, Steeple Morden, SG8
By Ensum Brown
£ 1,000,000
Reviews
3 out of 5 stars
Ensum Brown says ..
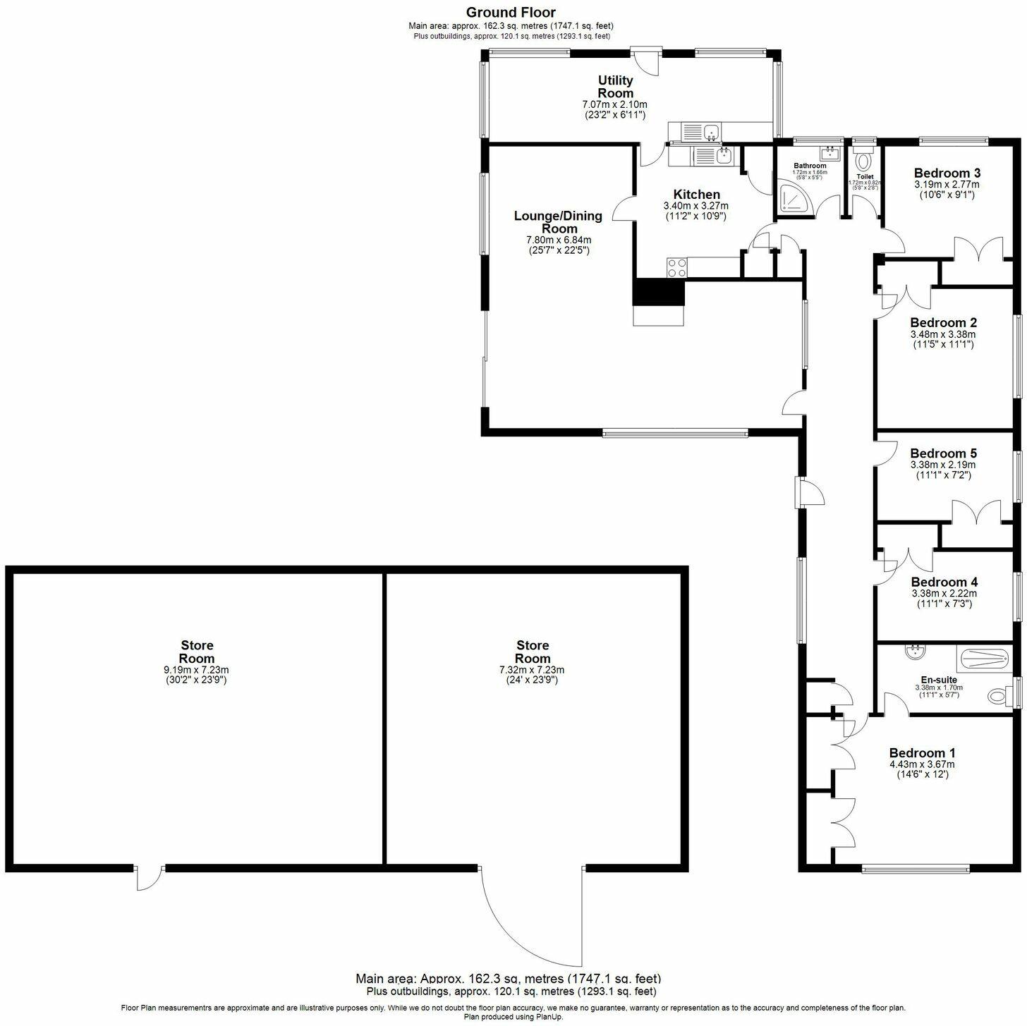
Ensum Brown offer this rare opportunity to purchase a 4.13 acre plot in Steeple Morden, with stunning countryside views, a gated entrance, all services connected to the dwelling in situ, and the opportunity to build a new property of approx. 4000sq ft. Planning info available upon request.
Property Oracle says ..
This property in Steeple Morden, Cambridgeshire presents a unique opportunity. The main attraction is the substantial land encompassing the dwelling. The house itself is a bungalow with five bedrooms and two bathrooms, situated in the countryside with excellent views. While the interior photos suggest a need for some modernisation, the property has a solid foundation. The substantial plot allows for a potential extension or new build, subject to planning permission. The location offers a balance of rural tranquility and accessibility to amenities via a nearby train station. Families will appreciate the proximity to well-regarded primary schools. However, buyers should factor in the cost of updating the interior to meet their standards. The absence of comprehensive details regarding the property’s precise square footage and the average price per square foot in Steeple Morden makes a precise price analysis more difficult. Nevertheless, given the generous land and desirability of the location, the asking price seems justifiable, although perhaps not exceptionally great value.
Therefore, we give this property 7 / 10. *Disclaimer: This is our option and does constitute a recommendation or financial advice. Do your own research. *
- Price
- 7
- Condition
- 5
- Location
- 7
- Land
- 9
- Bedrooms
- 5
- Bathrooms
- 2
- Sqft (est)
- 1,746.98
The heatmap indicates the level of crime in the area. The color of the heatmap indicates the crime severity and recency.
Metrics Year-on-Year
- Average area value
- 457,116.00 £Decreased by 2.18 %
- Est sale value
- 955,598.06 £Increased by 3.01 %
- Average area rental value
- 1,475.00 £/moDecreased by 15.71 %
- Est letting value
- 1,746.98 £/moUnchanged by 0.00 %
- Est rental Yield
- 3.87 %Decreased by 13.81 %
- Crime Rate
- 30.00 %Unchanged by 0.00 %
Agent Activity
Ensum Brown marked this listing as sold.
Ensum Brown created the listing.
Nearby Schools
| Name | Type | Ofsted | Distance |
|---|---|---|---|
| Steeple Morden Cofe Vc Primary School | Voluntary Controlled School | Good | 0.53 KM |
| Guilden Morden Cofe Primary Academy | Academy Sponsor Led | Good | 2.15 KM |
| Ashwell Primary School | Community School | Good | 4.72 KM |
| Wrestlingworth Cofe Vc Lower School | Voluntary Controlled School | Outstanding | 6.51 KM |
| Bassingbourn Primary School | Community School | Good | 6.68 KM |
Images
Nearby Streets
| Name | Average Price | Average Sqft | Distance |
|---|---|---|---|
| Russell Close | £ 0 | 0 | 0.00 KM |
Nearby Transport
| Name | NLC | TLC | Distance |
|---|---|---|---|
| Ashwell And Morden | 6083 | AWM | 4.43 KM |
Nearby Listings
| Address | Price | Type | Score | Distance |
|---|---|---|---|---|
| Craft Way, Steeple Morden, SG8 | £ 585,000 | BUY | 8 / 10 | 0.10 KM |
| Craft Way, Steeple Morden, SG8 | £ 625,000 | BUY | 7 / 10 | 0.10 KM |
| Craft Way, Steeple Morden, SG8 | £ 650,000 | BUY | Unknown | 0.12 KM |
| Craft Way, Steeple Morden, Royston, SG8 | £ 400,000 | BUY | 6 / 10 | 0.15 KM |
| Craft Way, Steeple Morden, Royston, SG8 | £ 425,000 | BUY | 6 / 10 | 0.15 KM |
Nearby Properties
| Address | Price | Distance |
|---|---|---|
| 30 Craft Way | £ 350,000 | 0.17 KM |
| 14 Craft Way | £ 355,000 | 0.17 KM |
| 39 Craft Way | £ 550,000 | 0.17 KM |
| 41 Craft Way | £ 342,500 | 0.17 KM |
| 16 Craft Way | £ 274,000 | 0.17 KM |