Hunters says ..
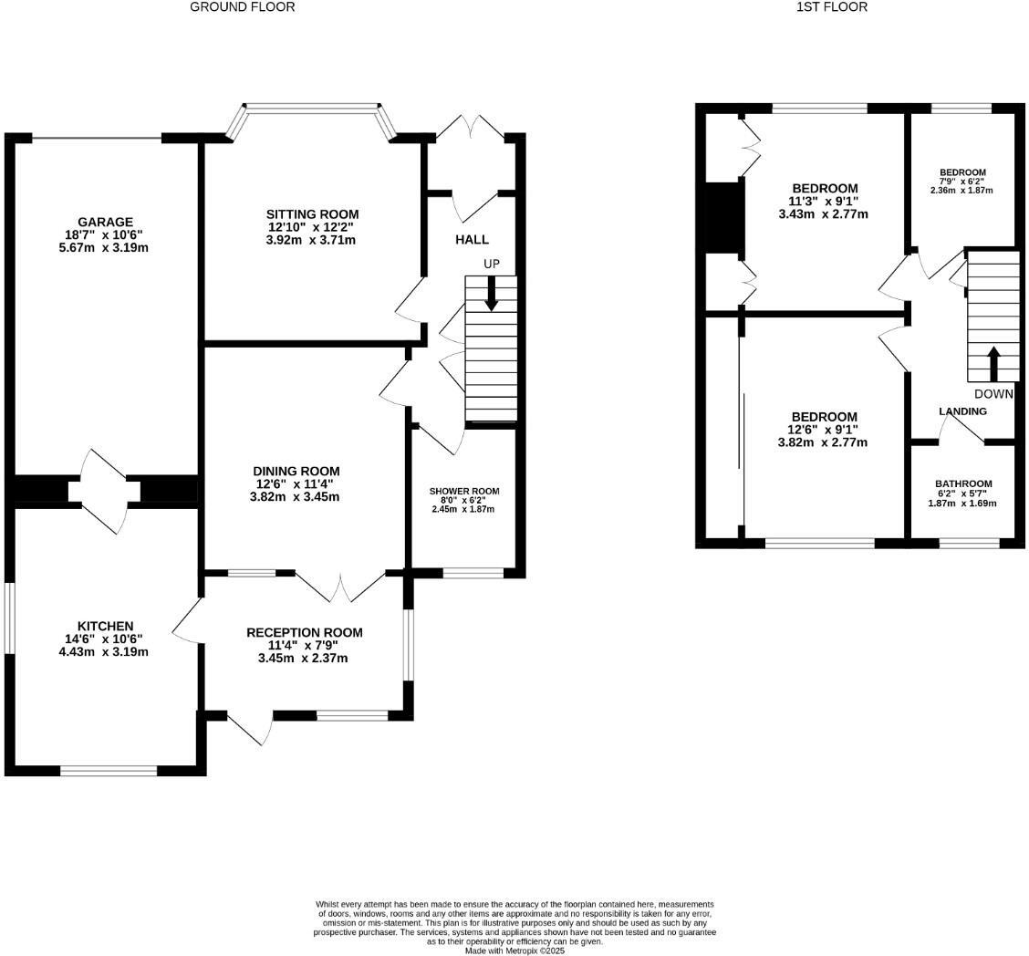
Situated on Milner Road in Gillingham, this delightful end-terrace house offers a perfect blend of comfort and convenience. Spanning an impressive 1,206 square feet, the property has three bedrooms, making it an ideal home for families or those seeking extra space. Upon entering, you are...
Property Oracle says ..
Therefore, we give this property 6 / 10. *Disclaimer: This is our option and does constitute a recommendation or financial advice. Do your own research. *
- Price
- 6
- Condition
- 6
- Location
- 7
- Land
- 7
- Bedrooms
- 3
- Bathrooms
- 2
- Sqft (est)
- 1,080.21
The heatmap indicates the level of crime in the area. The color of the heatmap indicates the crime severity and recency.
Metrics Year-on-Year
- Average area value
- 258,294.00 £Increased by 3.99 %
- Est sale value
- 402,918.33 £Increased by 24.75 %
- Average area rental value
- 1,321.00 £/moDecreased by 18.41 %
- Est letting value
- 1,080.21 £/moUnchanged by 0.00 %
- Est rental Yield
- 6.14 %Decreased by 21.48 %
- Crime Rate
- 9.00 %Unchanged by 0.00 %
from 248,375.00 £
from 322,982.79 £
from 1,619.00 £/mo
from 1,080.21 £/mo
from 7.82 %
from 9.00 %
Agent Activity
Hunters created the listing.
Nearby Schools
| Name | Type | Ofsted | Distance |
|---|---|---|---|
| Rivermead School | Academy Special Converter | Good | 0.43 KM |
| St Mary'S Catholic Primary School | Voluntary Aided School | Good | 0.53 KM |
| Saxon Way Primary School And Children'S Centre | Children's Centre | 0.54 KM | |
| Saxon Way Primary School | Academy Sponsor Led | Good | 0.54 KM |
| Burnt Oak Primary School | Community School | Requires improvement | 0.58 KM |
Images
Nearby Streets
| Name | Average Price | Average Sqft | Distance |
|---|---|---|---|
| Cleveland Road | £ 232,750 | 0 | 0.00 KM |
| Pier Road Industrial Estate | £ 0 | 0 | 0.00 KM |
| Greenfield Road | £ 0 | 0 | 0.00 KM |
| East End Road | £ 294,000 | 0 | 0.00 KM |
| B2004 | £ 0 | 0 | 0.00 KM |
Nearby Transport
| Name | NLC | TLC | Distance |
|---|---|---|---|
| Gillingham (Kent) | 5169 | GLM | 0.93 KM |
| Chatham | 5199 | CTM | 4.01 KM |
| Rochester | 5203 | RTR | 5.03 KM |
| Strood (Kent) | 5191 | SOO | 6.09 KM |
| Rainham (Kent) | 5177 | RAI | 6.89 KM |
Nearby Listings
| Address | Price | Type | Score | Distance |
|---|---|---|---|---|
| Milner Road, Gillingham | £ 350,000 | BUY | 6 / 10 | 0.00 KM |
| Milner Road, Gillingham, Kent, ME7 | £ 280,000 | BUY | 6 / 10 | 0.08 KM |
| Milner Road, Gillingham, Kent, ME7 | £ 270,000 | BUY | 6 / 10 | 0.08 KM |
| Hamilton Road, Gillingham, Kent, ME7 | £ 200,000 | BUY | 6 / 10 | 0.10 KM |
| Corporation Road, Gillingham, Kent, ME7 | £ 220,000 | BUY | 5 / 10 | 0.10 KM |
Nearby Properties
| Address | Price | Distance |
|---|---|---|
| 67 Milner Road | £ 135,000 | 0.08 KM |
| 17 Milner Road | £ 220,000 | 0.08 KM |
| 66 Milner Road | £ 109,000 | 0.08 KM |
| 31 Milner Road | £ 163,500 | 0.08 KM |
| 61 Milner Road | £ 206,000 | 0.08 KM |