Smallfield Road, Horley, Surrey, RH6
By Mayhew Estates
£ 510,000
Reviews
3 out of 5 stars
Mayhew Estates says ..
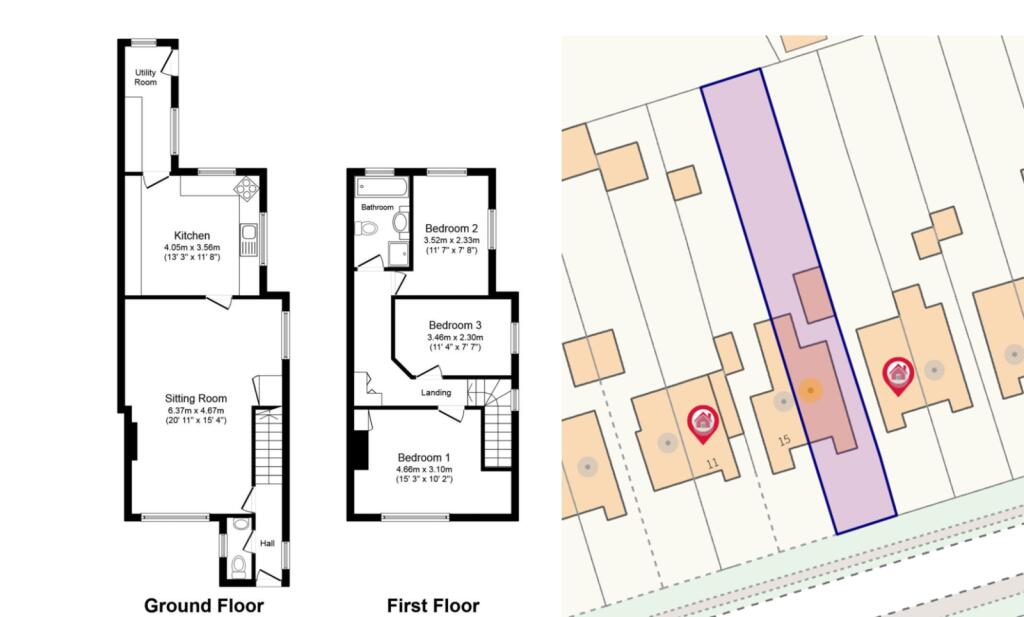
LARGE GARDEN! A well presented three double bedroom semi-detached family home situated a short walk from Horley town centre, train station and popular schools!
Property Oracle says ..
This three-bedroom semi-detached house in Horley, Surrey is presented as a family home conveniently located near Horley town centre, its train station, and several well-regarded schools. The property benefits from a modern and recently updated kitchen and bathroom, as evidenced by the provided photographs. The interior appears well-maintained and spacious. The listing highlights the home’s proximity to key amenities and transportation links. The garden, while not exceptionally large, offers additional outdoor space. The property’s list price seems in line with comparable properties in the area. However, a lack of precise plot size information and a complete absence of square footage for nearby properties limits the ability to accurately assess the value proposition. Overall, the property presents a solid and attractive option for families seeking convenient access to local amenities and transport links. Potential buyers should confirm the actual garden size and conduct a thorough survey to address any potential concerns.
Therefore, we give this property 6 / 10. *Disclaimer: This is our option and does constitute a recommendation or financial advice. Do your own research. *
- Price
- 7
- Condition
- 8
- Location
- 7
- Land
- 5
- Bedrooms
- 3
- Bathrooms
- 1
- Sqft (est)
- 986.30
The heatmap indicates the level of crime in the area. The color of the heatmap indicates the crime severity and recency.
Metrics Year-on-Year
- Average area value
- 401,643.00 £Decreased by 13.23 %
- Est sale value
- 469,478.80 £Increased by 40.83 %
- Average area rental value
- 1,377.00 £/moDecreased by 6.96 %
- Est letting value
- 986.30 £/moUnchanged by 0.00 %
- Est rental Yield
- 4.11 %Increased by 7.03 %
- Crime Rate
- 4.00 %Unchanged by 0.00 %
Agent Activity
Mayhew Estates created the listing.
Nearby Schools
| Name | Type | Ofsted | Distance |
|---|---|---|---|
| Langshott Primary School | Community School | Good | 0.23 KM |
| Oakwood School | Community School | Good | 0.24 KM |
| Horley Infant School | Community School | Good | 0.78 KM |
| Yattendon School | Foundation School | Good | 0.84 KM |
| Trinity Oaks Church Of England Primary School | Voluntary Aided School | Good | 1.14 KM |
Images
Nearby Streets
| Name | Average Price | Average Sqft | Distance |
|---|---|---|---|
| Meadowside | £ 0 | 0 | 0.00 KM |
| Maizecroft | £ 235,000 | 0 | 0.00 KM |
| Larksfield | £ 550,000 | 0 | 0.00 KM |
| Birchwood Close | £ 0 | 0 | 0.00 KM |
| Honeysuckle Close | £ 0 | 0 | 0.00 KM |
Nearby Transport
| Name | NLC | TLC | Distance |
|---|---|---|---|
| Horley | 5365 | HOR | 0.84 KM |
| Gatwick Airport | 5416 | GTW | 2.12 KM |
| Salfords (Surrey) | 5380 | SAF | 3.04 KM |
| Earlswood (Surrey) | 5414 | ELD | 6.03 KM |
| Nutfield | 5476 | NUF | 6.36 KM |
Nearby Listings
| Address | Price | Type | Score | Distance |
|---|---|---|---|---|
| Smallfield Road, Horley, Surrey, RH6 | £ 475,000 | BUY | Unknown | 0.06 KM |
| Smallmead, Horley | £ 500,000 | BUY | 6 / 10 | 0.14 KM |
| Smallmead, Horley, Surrey, RH6 | £ 300,000 | BUY | 5 / 10 | 0.16 KM |
| Windmill Close, Horley, Surrey, RH6 | £ 450,000 | BUY | 6 / 10 | 0.16 KM |
| Heatherlands, Horley, Surrey, RH6 | £ 300,000 | BUY | Unknown | 0.17 KM |
Nearby Properties
| Address | Price | Distance |
|---|---|---|
| 11 Smallfield Road | £ 412,500 | 0.01 KM |
| 27 Smallfield Road | £ 81,500 | 0.01 KM |
| 23 Smallfield Road | £ 250,000 | 0.02 KM |
| 5 Smallfield Road | £ 235,000 | 0.02 KM |
| 19 Smallfield Road | £ 406,000 | 0.02 KM |