Seal Road, Bramhall, SK7
By Snapes Estate Agents
£ 515,000
Reviews
3 out of 5 stars
Snapes Estate Agents says ..
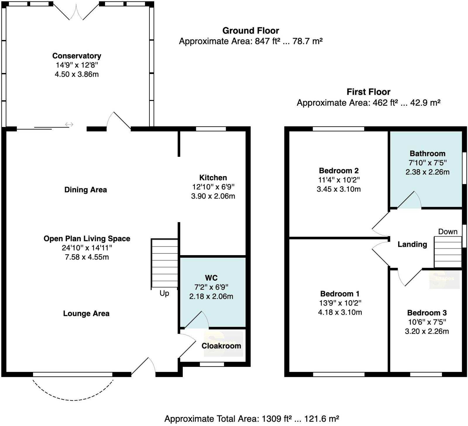
Detached Home ** No Chain ** 3 Bedrooms ** Open Plan Living Space ** Modern Interior ** Modern Kitchen ** Spacious Conservatory ** Downstairs Toilet & Cloakroom ** Modern Bathroom ** Good Size Garden ** Ample Driveway Parking ** Popular Residential Location ** Large Garage (NO Vehicular Access)
Property Oracle says ..
This three-bedroom, one-bathroom semi-detached house in Bramhall, Stockport, offers a desirable location and a generally well-presented interior. The property’s proximity to excellent schools, including the Outstanding Ladybrook Primary School, is a key selling point for families. Bramhall train station, providing easy access to Manchester city centre, adds further appeal. The kitchen appears to have been recently updated, whilst other areas of the property have a more dated style. Whilst the interior is generally clean and modern, some of the decor is inconsistent, suggesting that a full renovation or upgrade to a more cohesive style would improve the home’s overall appeal and possibly increase its value. The garden is a modest size, and might not be sufficient for buyers who require ample outdoor space. The asking price of £515,000 seems competitive given the local market, though a more detailed square-footage analysis of directly comparable properties would be beneficial to fully assess its value. Overall, this property will be particularly appealing to families prioritising good schools and convenient transportation, who do not require an extensive garden.
Therefore, we give this property 6 / 10. *Disclaimer: This is our option and does constitute a recommendation or financial advice. Do your own research. *
- Price
- 7
- Condition
- 6
- Location
- 7
- Land
- 4
- Bedrooms
- 3
- Bathrooms
- 1
- Sqft (est)
- 1,308.89
The heatmap indicates the level of crime in the area. The color of the heatmap indicates the crime severity and recency.
Metrics Year-on-Year
- Average area value
- 420,413.00 £Decreased by 37.76 %
- Est sale value
- 647,900.55 £Increased by 43.48 %
- Average area rental value
- 1,333.00 £/moDecreased by 26.60 %
- Est letting value
- 1,308.89 £/mo
- Est rental Yield
- 3.80 %Increased by 17.65 %
- Crime Rate
- 0.00 %
Agent Activity
Snapes Estate Agents created the listing.
Nearby Schools
| Name | Type | Ofsted | Distance |
|---|---|---|---|
| Ladybrook Primary School | Community School | Outstanding | 0.41 KM |
| Bramhall High School | Community School | Requires improvement | 0.57 KM |
| Pownall Green Primary School | Community School | Outstanding | 1.26 KM |
| Hazel Grove High School | Academy Converter | Requires improvement | 1.78 KM |
| Lostock Hall Primary School | Academy Converter | 1.87 KM |
Images
Nearby Streets
| Name | Average Price | Average Sqft | Distance |
|---|---|---|---|
| Birkdale Close | £ 0 | 0 | 0.00 KM |
| Jacksons Lane | £ 0 | 0 | 0.00 KM |
| Canberra Road | £ 475,000 | 0 | 0.00 KM |
| A6 - Bramhall Park Cycle Path | £ 675,000 | 0 | 0.00 KM |
| Southern Close | £ 525,000 | 0 | 0.00 KM |
Nearby Transport
| Name | NLC | TLC | Distance |
|---|---|---|---|
| Bramhall | 2944 | BML | 1.62 KM |
| Poynton | 2874 | PYT | 2.14 KM |
| Woodsmoor | 2773 | WSR | 2.73 KM |
| Davenport | 2770 | DVN | 3.14 KM |
| Hazel Grove | 2768 | HAZ | 3.41 KM |
Nearby Listings
| Address | Price | Type | Score | Distance |
|---|---|---|---|---|
| Seal Road, Bramhall, SK7 | £ 515,000 | BUY | 6 / 10 | 0.00 KM |
| Chevin Gardens, Bramhall | £ 325,000 | BUY | 6 / 10 | 0.08 KM |
| Seal Road, Bramhall, SK7 | £ 365,000 | BUY | 6 / 10 | 0.09 KM |
| Pownall Avenue, Bramhall, SK7 | £ 2,150,000 | BUY | 8 / 10 | 0.13 KM |
| Seal Road, Bramhall, Stockport, Cheshire, SK7 | £ 395,000 | BUY | 7 / 10 | 0.17 KM |
Nearby Properties
| Address | Price | Distance |
|---|---|---|
| 13 Chevin Gardens | £ 150,000 | 0.08 KM |
| 9 Chevin Gardens | £ 66,000 | 0.08 KM |
| 3 Chevin Gardens | £ 180,000 | 0.08 KM |
| 2 Chevin Gardens | £ 230,000 | 0.08 KM |
| 7 Chevin Gardens | £ 90,000 | 0.08 KM |