Stanbra Powell says ..
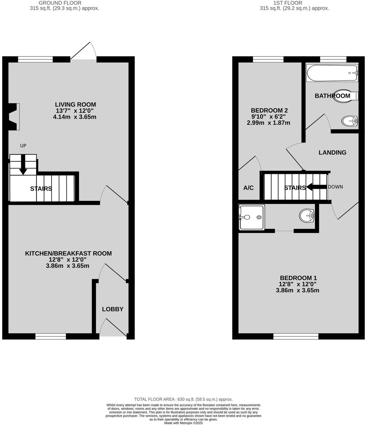
An end of terraced house offered with no onward chain, located in a popular development within walking distance of many amenities. Entrance porch | Kitchen/breakfast room | Living room | Master bedroom with shower and handbasin |Second bedroom | Bathroom | Gardens to front and rear | Tw...
Property Oracle says ..
This end-of-terrace property is located in Parklands, Banbury. It benefits from proximity to schools and transportation. The property is in need of renovation, with dated decor and fixtures. It includes a garden with a shed. The price is significantly lower than the area average, reflecting the condition and need for renovation.
Therefore, we give this property 6 / 10. *Disclaimer: This is our option and does constitute a recommendation or financial advice. Do your own research. *
- Price
- 8
- Condition
- 4
- Location
- 7
- Land
- 6
- Bedrooms
- 2
- Bathrooms
- 1
- Sqft (est)
- 527.00
The heatmap indicates the level of crime in the area. The color of the heatmap indicates the crime severity and recency.
Metrics Year-on-Year
- Average area value
- 441,248.00 £Increased by 42.34 %
- Est sale value
- 195,517.00 £Decreased by 5.12 %
- Average area rental value
- 1,135.00 £/moIncreased by 0.27 %
- Est letting value
- 0.00 £/moDecreased by 100.00 %
- Est rental Yield
- 3.09 %Decreased by 29.45 %
- Crime Rate
- 1.00 %Unchanged by 0.00 %
Agent Activity
Stanbra Powell created the listing.
Nearby Schools
| Name | Type | Ofsted | Distance |
|---|---|---|---|
| Hill View Primary School | Academy Converter | 0.70 KM | |
| Banbury Children And Family Centre | Children's Centre | 0.71 KM | |
| St Mary'S Church Of England Primary School, Banbury | Academy Converter | 1.01 KM | |
| Frank Wise School | Community Special School | Outstanding | 1.09 KM |
| Hardwick Primary School | Academy Converter | 1.15 KM |
Images
Nearby Streets
| Name | Average Price | Average Sqft | Distance |
|---|---|---|---|
| Glanville Gardens | £ 0 | 0 | 0.00 KM |
| Garden Close | £ 0 | 0 | 0.00 KM |
| Hilton Road | £ 0 | 0 | 0.00 KM |
| Boxhedge Road West | £ 348,333 | 0 | 0.00 KM |
| Belgrave Crescent | £ 0 | 0 | 0.00 KM |
Nearby Transport
| Name | NLC | TLC | Distance |
|---|---|---|---|
| Banbury | 4502 | BAN | 2.35 KM |
| Kings Sutton | 4508 | KGS | 9.02 KM |
Nearby Listings
| Address | Price | Type | Score | Distance |
|---|---|---|---|---|
| Parklands, Banbury | £ 235,000 | BUY | 7 / 10 | 0.00 KM |
| Parklands, Banbury | £ 240,000 | BUY | 7 / 10 | 0.00 KM |
| Parklands, Banbury | £ 122,500 | BUY | 6 / 10 | 0.00 KM |
| Parklands, Banbury | £ 185,000 | BUY | 6 / 10 | 0.08 KM |
| Parklands, Banbury | £ 189,995 | BUY | 7 / 10 | 0.09 KM |
Nearby Properties
| Address | Price | Distance |
|---|---|---|
| 143 Parklands | £ 179,525 | 0.01 KM |
| 97 Parklands | £ 152,000 | 0.01 KM |
| 85 Parklands | £ 42,000 | 0.01 KM |
| 115 Parklands | £ 178,000 | 0.01 KM |
| 101 Parklands | £ 75,000 | 0.01 KM |