Marbury Street, Warrington, WA4
By Ashtons Estate Agency
£ 160,000
Reviews
3 out of 5 stars
Ashtons Estate Agency says ..
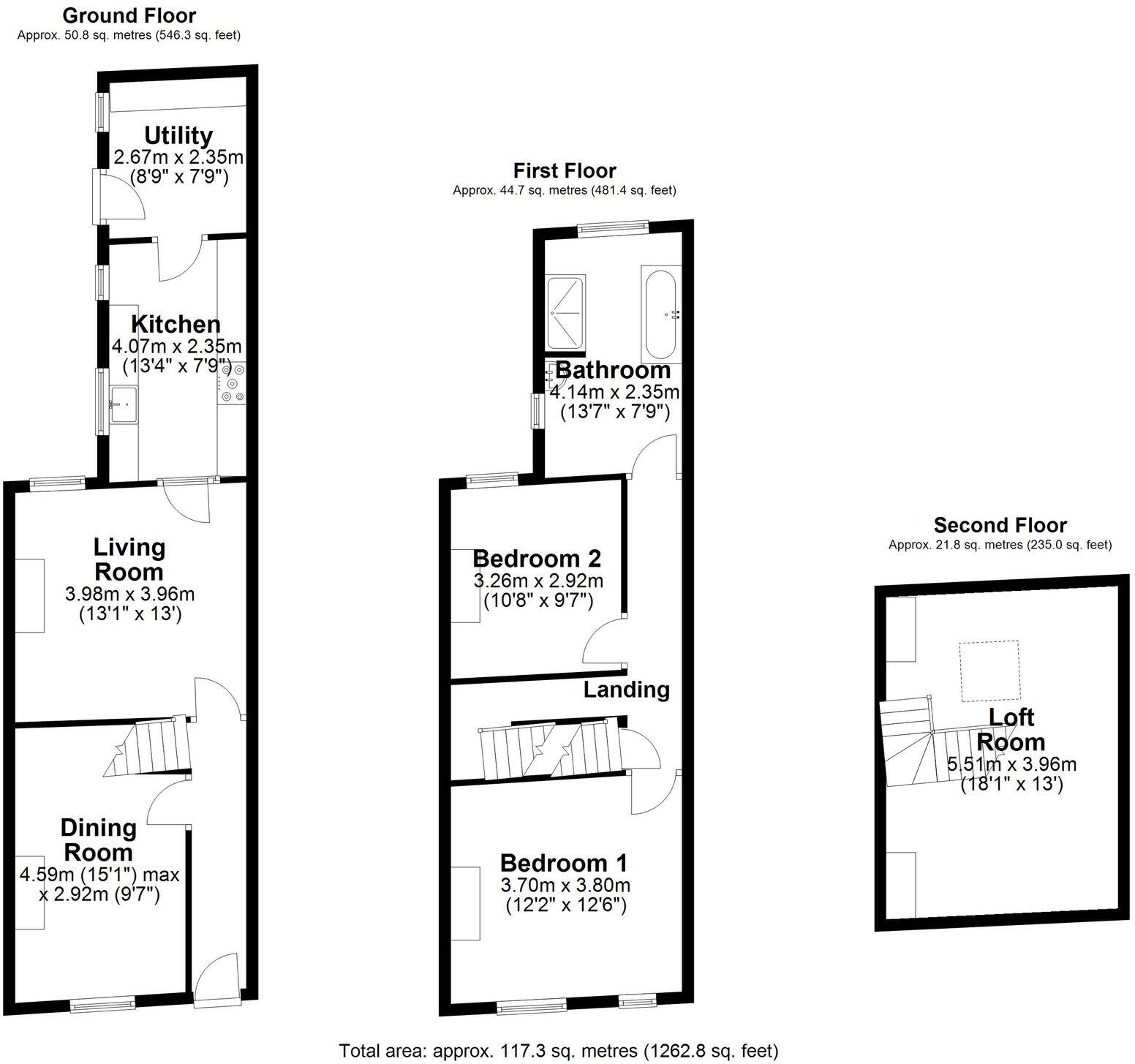
A beautifully presented mid terraced property located in the sought after area of Latchford. With two bedrooms, two reception rooms, a utility and accessible loft space, this is the ideal home for first time buyers and those looking to downsize.
Property Oracle says ..
Therefore, we give this property 6 / 10. *Disclaimer: This is our option and does constitute a recommendation or financial advice. Do your own research. *
- Price
- 9
- Condition
- 8
- Location
- 7
- Land
- 3
- Bedrooms
- 2
- Bathrooms
- 1
- Sqft (est)
- 1,078.12
The heatmap indicates the level of crime in the area. The color of the heatmap indicates the crime severity and recency.
Metrics Year-on-Year
- Average area value
- 183,878.00 £Decreased by 22.92 %
- Est sale value
- 230,717.68 £Decreased by 17.37 %
- Average area rental value
- 1,019.00 £/moIncreased by 15.93 %
- Est letting value
- 1,078.12 £/mo
- Est rental Yield
- 6.65 %Increased by 50.45 %
- Crime Rate
- 5.00 %Unchanged by 0.00 %
from 238,551.00 £
from 279,233.08 £
from 879.00 £/mo
from 0.00 £/mo
from 4.42 %
from 5.00 %
Agent Activity
Ashtons Estate Agency marked this listing as sold.
Ashtons Estate Agency created the listing.
Nearby Schools
| Name | Type | Ofsted | Distance |
|---|---|---|---|
| Priestley College | Academy 16-19 Converter | Good | 0.37 KM |
| Latchford St James Cofe Primary School | Voluntary Aided School | Good | 0.49 KM |
| St Elphin'S (Fairfield) Cofe Voluntary Aided Primary School | Voluntary Aided School | Good | 1.40 KM |
| Stockton Heath Primary School | Community School | Good | 1.46 KM |
| Our Lady'S Catholic Primary School | Voluntary Aided School | Good | 1.48 KM |
Images
Nearby Streets
| Name | Average Price | Average Sqft | Distance |
|---|---|---|---|
| St Mary's Court | £ 225,000 | 0 | 0.00 KM |
| Peartree Place | £ 129,000 | 0 | 0.00 KM |
| Miller Street | £ 165,000 | 0 | 0.00 KM |
| Canterbury Street | £ 0 | 0 | 0.00 KM |
| Hughes Street | £ 80,000 | 0 | 0.00 KM |
Nearby Transport
| Name | NLC | TLC | Distance |
|---|---|---|---|
| Warrington Central | 2390 | WAC | 1.36 KM |
| Warrington Bank Quay | 2384 | WBQ | 1.99 KM |
| Padgate | 2387 | PDG | 4.00 KM |
| Warrington West | 6583 | WAW | 6.03 KM |
| Sankey For Penketh | 2388 | SNK | 7.35 KM |
Nearby Listings
| Address | Price | Type | Score | Distance |
|---|---|---|---|---|
| Marbury Street, Warrington, WA4 | £ 160,000 | BUY | 6 / 10 | 0.00 KM |
| Marbury Street, Warrington, WA4 | £ 168,000 | BUY | 6 / 10 | 0.05 KM |
| St Marys Court, Latchford, Warrington, WA4 | £ 200,000 | BUY | 6 / 10 | 0.08 KM |
| St. Marys Court, Warrington, WA4 | £ 217,500 | BUY | 6 / 10 | 0.09 KM |
| Marbury Street, Warrington, WA4 | £ 130,000 | BUY | 6 / 10 | 0.10 KM |
Nearby Properties
| Address | Price | Distance |
|---|---|---|
| 59 Marbury Street | £ 128,600 | 0.04 KM |
| 13 Marbury Street | £ 122,000 | 0.04 KM |
| 3 Marbury Street | £ 105,000 | 0.04 KM |
| 10 Marbury Street | £ 80,000 | 0.04 KM |
| 22 Marbury Street | £ 100,000 | 0.04 KM |