Beesands, Kingsbridge, TQ7
By Charles Head
£ 1,250,000
Reviews
4 out of 5 stars
Charles Head says ..
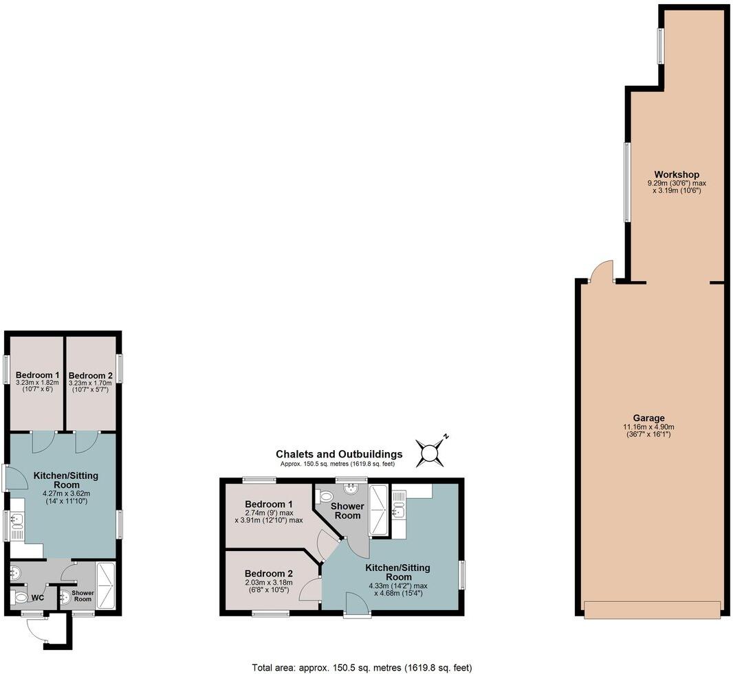
A rare chance to own a luxurious 4-bedroom water fronted property with the addition of; two detached chalets, a detached outbuilding, a large meadow and ample parking. Existing holiday let with further potential on site subject to planning permission.
Property Oracle says ..
This property is a 4 bedroom, 4 bathroom house located in Beesands, Devon. The house is modern and well-maintained, and boasts stunning sea views. It has a sizeable garden and is within a reasonable distance of Stokenham Area Primary School (3.46km). While the provided data lacks information on transportation links, the property’s location and condition suggest a high quality of life. The list price of £1,250,000 is significantly higher than the average house price in the area (£275,043), but this disparity may be justified by the property’s unique features, including its sea views and modern condition. Further analysis of comparable properties in the immediate vicinity would be needed to definitively assess the price’s reasonableness.
Therefore, we give this property 8 / 10. *Disclaimer: This is our option and does constitute a recommendation or financial advice. Do your own research. *
- Price
- 7
- Condition
- 9
- Location
- 9
- Land
- 8
- Bedrooms
- 4
- Bathrooms
- 4
- Sqft (est)
- 1,511.10
- Lot (est)
- 1,738.20
The heatmap indicates the level of crime in the area. The color of the heatmap indicates the crime severity and recency.
Metrics Year-on-Year
- Average area value
- 216,225.00 £Decreased by 4.32 %
- Est sale value
- 395,908.20 £Increased by 37.89 %
- Average area rental value
- 863.00 £/moDecreased by 37.87 %
- Est letting value
- 1,511.10 £/moUnchanged by 0.00 %
- Est rental Yield
- 4.79 %Decreased by 35.09 %
- Crime Rate
- 163.00 %Unchanged by 0.00 %
Agent Activity
Charles Head created the listing.
Nearby Schools
| Name | Type | Ofsted | Distance |
|---|---|---|---|
| Stokenham Area Primary School | Community School | Outstanding | 3.46 KM |
| Stoke Fleming Community Primary School | Academy Converter | 9.91 KM |
Images
Nearby Streets
| Name | Average Price | Average Sqft | Distance |
|---|---|---|---|
| Sunnydale | £ 329,950 | 0 | 0.00 KM |
| Holmleigh Road | £ 1,150,000 | 0 | 0.00 KM |
| The Barns | £ 0 | 0 | 0.00 KM |
| Duck feeding area | £ 0 | 0 | 0.00 KM |
| Fordsworth Cottages | £ 1,750,000 | 0 | 0.00 KM |
Nearby Listings
| Address | Price | Type | Score | Distance |
|---|---|---|---|---|
| Beesands, Kingsbridge, TQ7 | £ 1,250,000 | BUY | 8 / 10 | 0.00 KM |
| Beesands, Kingsbridge | £ 595,000 | BUY | 7 / 10 | 0.15 KM |
| Beesands, Kingsbridge | £ 850,000 | BUY | Unknown | 0.15 KM |
| Beesands | £ 395,000 | BUY | 7 / 10 | 0.30 KM |
| Beesands, Kingsbridge | £ 610,000 | BUY | 7 / 10 | 0.30 KM |
Nearby Properties
| Address | Price | Distance |
|---|---|---|
| 1 Higher Terrace | £ 200,000 | 0.09 KM |
| 1 Orchard Close | £ 248,000 | 1.20 KM |
| 4 Orchard Close | £ 216,000 | 1.20 KM |
| 2 Orchard Close | £ 165,000 | 1.20 KM |
| 2 Sunnyside Cottages | £ 317,500 | 1.31 KM |