Queens Road, Herstmonceux, Hailsham
By Stevens & Carter
£ 300,000
Reviews
3 out of 5 stars
Stevens & Carter says ..
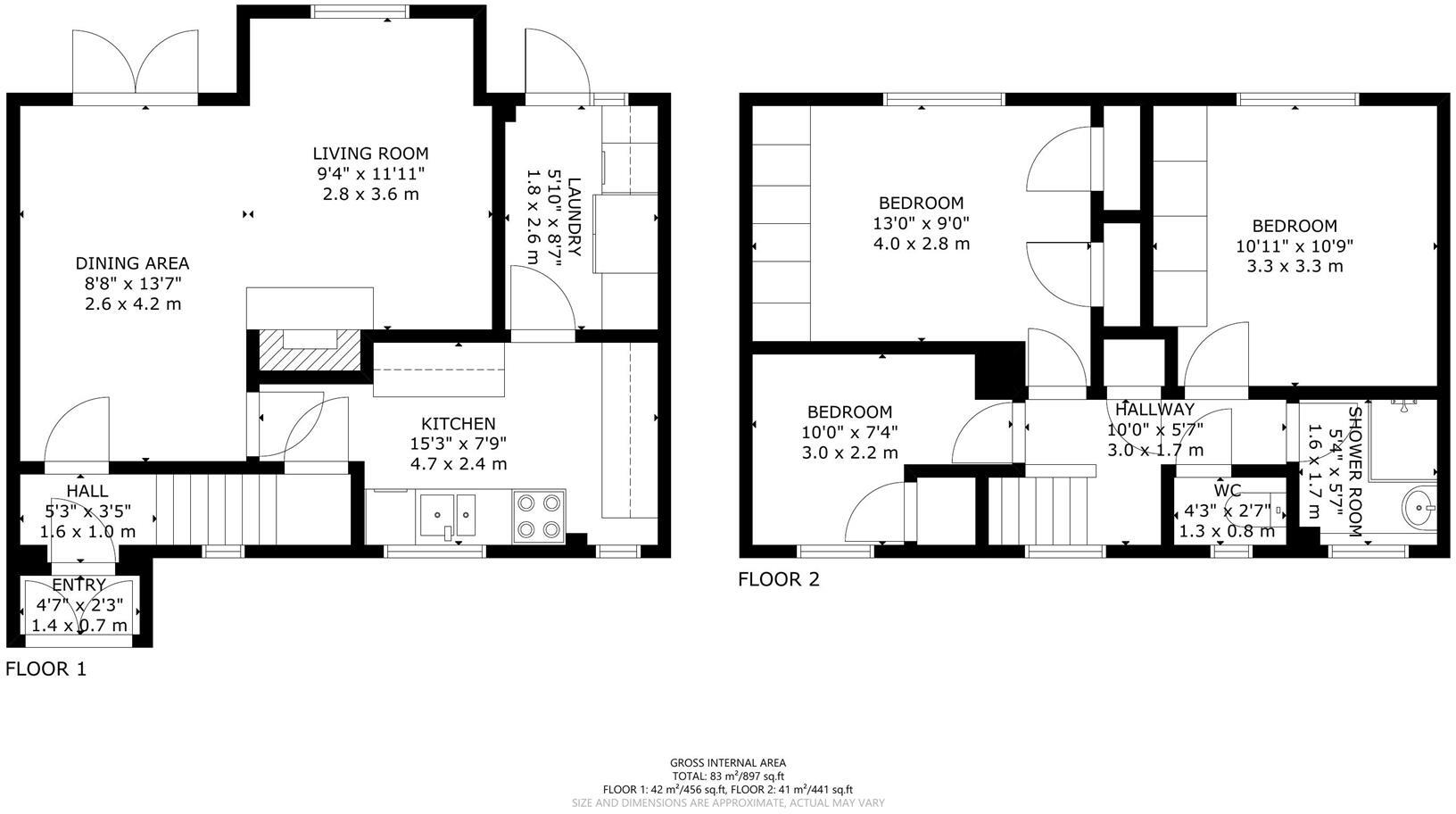
3D Virtual Tour | Village Location | Vendor Suited | Driveway Parking | Sunny Aspect Garden | Log Burner | Close To Amenities | Shower Room | Separate WC | Bus Route Closeby | Situated within the heart of the historic Sussex village of Herstmonceux, this three-bedroom terraced family ho...
Property Oracle says ..
This is a three-bedroom terraced house on Queens Road in Herstmonceux, East Sussex. The property features a well-maintained garden with a pond and patio area. The interior is in generally good condition, with a modern bathroom. The property is located within a reasonable distance of local schools and transportation links. The asking price of £300,000 appears fair when compared to similar properties in the area.
Therefore, we give this property 7 / 10. *Disclaimer: This is our option and does constitute a recommendation or financial advice. Do your own research. *
- Price
- 7
- Condition
- 7
- Location
- 6
- Land
- 8
- Bedrooms
- 3
- Bathrooms
- 1
The heatmap indicates the level of crime in the area. The color of the heatmap indicates the crime severity and recency.
Metrics Year-on-Year
- Average area value
- 538,995.00 £Increased by 24.36 %
- Average area rental value
- 965.00 £/moDecreased by 34.58 %
- Est rental Yield
- 2.15 %Decreased by 47.30 %
- Crime Rate
- 91.00 %Unchanged by 0.00 %
Agent Activity
Stevens & Carter created the listing.
Nearby Schools
| Name | Type | Ofsted | Distance |
|---|---|---|---|
| Herstmonceux Church Of England Primary School | Voluntary Controlled School | Good | 0.61 KM |
| Hailsham East Children'S Centre | Children's Centre | 6.05 KM | |
| Phoenix Academy | Academy Sponsor Led | Good | 6.12 KM |
| White House Academy | Academy Sponsor Led | Good | 6.70 KM |
| The Ropemakers' Academy | Free Schools Special | 6.84 KM |
Images
Nearby Streets
| Name | Average Price | Average Sqft | Distance |
|---|---|---|---|
| Queens Road | £ 0 | 0 | 0.00 KM |
| Elm Close | £ 133,000 | 0 | 0.00 KM |
| Chestnut Close | £ 0 | 0 | 0.00 KM |
| West Terrace | £ 275,000 | 0 | 0.00 KM |
| Lower Road | £ 0 | 0 | 0.00 KM |
Nearby Transport
| Name | NLC | TLC | Distance |
|---|---|---|---|
| Pevensey And Westham | 5461 | PEV | 8.14 KM |
| Pevensey Bay | 5462 | PEB | 8.38 KM |
Nearby Listings
| Address | Price | Type | Score | Distance |
|---|---|---|---|---|
| Queens Road, Herstmonceux, East Sussex | £ 295,000 | BUY | Unknown | 0.00 KM |
| Queens Road, Herstmonceux, Hailsham | £ 300,000 | BUY | 7 / 10 | 0.00 KM |
| Buckwell Rise, Herstmonceux, BN27 | £ 315,000 | BUY | 7 / 10 | 0.11 KM |
| Fairlawns Drive, Herstmonceux, BN27 | £ 285,000 | BUY | 7 / 10 | 0.13 KM |
| Fairlawns Drive, Herstmonceux, East Sussex | £ 335,000 | BUY | 7 / 10 | 0.15 KM |
Nearby Properties
| Address | Price | Distance |
|---|---|---|
| 24 Queens Road | £ 182,000 | 0.03 KM |
| 9 Queens Road | £ 185,000 | 0.04 KM |
| 2 Queens Road | £ 277,000 | 0.04 KM |
| 3 Queens Road | £ 59,500 | 0.04 KM |
| 1 Queens Road | £ 265,000 | 0.04 KM |