BR
Frost Drive, Irby, Wirral, CH61
By Bradshaw Farnham & Lea
£ 595,000
Reviews
3 out of 5 stars
Bradshaw Farnham & Lea says ..
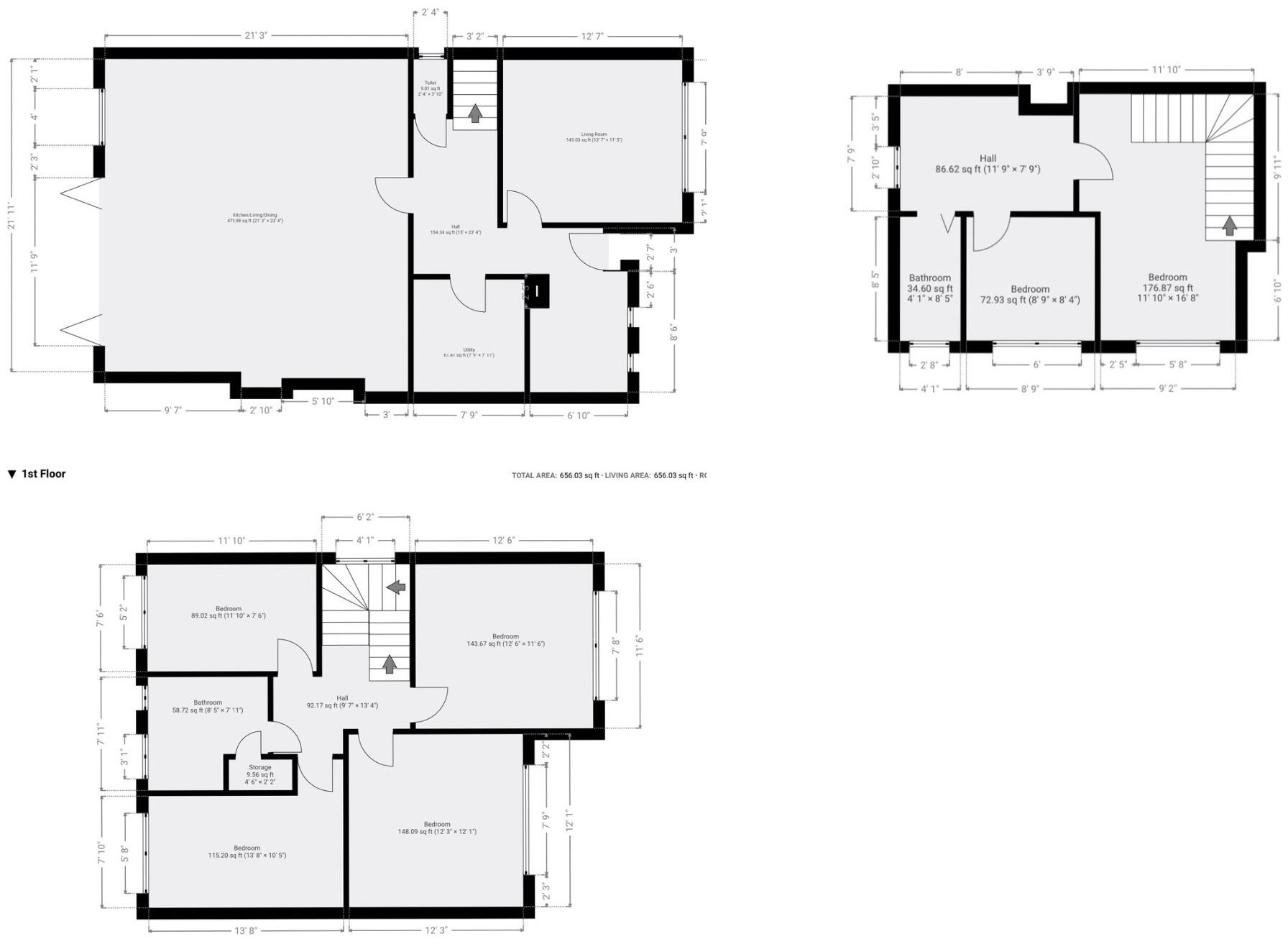
Situated in the heart of Irby, this beautifully extended and immaculately presented semi-detached home offers generous and flexible living across three well-designed floors
Property Oracle says ..
Therefore, we give this property 7 / 10. *Disclaimer: This is our option and does constitute a recommendation or financial advice. Do your own research. *
- Price
- 7
- Condition
- 9
- Location
- 8
- Land
- 7
- Bedrooms
- 6
- Bathrooms
- 2
- Sqft (est)
- 656.03
The heatmap indicates the level of crime in the area. The color of the heatmap indicates the crime severity and recency.
Metrics Year-on-Year
- Average area value
- 429,000.00 £Increased by 36.65 %
- Est sale value
- 301,773.80 £Increased by 41.54 %
- Average area rental value
- 1,163.00 £/moIncreased by 0.43 %
- Est letting value
- 656.03 £/moUnchanged by 0.00 %
- Est rental Yield
- 3.25 %Decreased by 26.64 %
- Crime Rate
- 11.00 %Unchanged by 0.00 %
from 313,930.00 £
from 213,209.75 £
from 1,158.00 £/mo
from 656.03 £/mo
from 4.43 %
from 11.00 %
Agent Activity
Bradshaw Farnham & Lea created the listing.
Nearby Schools
| Name | Type | Ofsted | Distance |
|---|---|---|---|
| Thurstaston Dawpool Cofe Primary School | Voluntary Aided School | Outstanding | 0.89 KM |
| Irby Primary School | Community School | Outstanding | 1.45 KM |
| Greasby Junior School | Community School | Good | 1.64 KM |
| Our Lady Of Pity Catholic Primary School | Academy Converter | 1.75 KM | |
| Pensby High School | Foundation School | Good | 1.93 KM |
Images
Nearby Streets
| Name | Average Price | Average Sqft | Distance |
|---|---|---|---|
| Edgemoor Drive | £ 300,000 | 0 | 0.00 KM |
| School Lane | £ 0 | 0 | 0.00 KM |
| Dawlish Road | £ 550,000 | 0 | 0.00 KM |
| Manor Road | £ 0 | 0 | 0.00 KM |
| Foothpath 45 | £ 160,000 | 0 | 0.00 KM |
Nearby Transport
| Name | NLC | TLC | Distance |
|---|---|---|---|
| Upton (Merseyside) | 2141 | UPT | 5.70 KM |
| Meols | 2254 | MEO | 5.78 KM |
| Moreton (Merseyside) | 2151 | MRT | 5.84 KM |
| Heswall | 2138 | HSW | 6.44 KM |
| Leasowe | 2237 | LSW | 6.46 KM |
Nearby Listings
| Address | Price | Type | Score | Distance |
|---|---|---|---|---|
| Frost Drive, Irby, Wirral, CH61 | £ 595,000 | BUY | 7 / 10 | 0.00 KM |
| Frost Drive, Irby, Wirral | £ 595,000 | BUY | 7 / 10 | 0.07 KM |
| Frost Drive, Irby, Wirral, CH61 | £ 400,000 | BUY | 7 / 10 | 0.11 KM |
| Sandy Lane, Irby, Wirral | £ 595,000 | BUY | 7 / 10 | 0.15 KM |
| Martin Close, Irby, Wirral | £ 475,000 | BUY | 7 / 10 | 0.20 KM |
Nearby Properties
| Address | Price | Distance |
|---|---|---|
| 10 Frost Drive | £ 242,000 | 0.07 KM |
| 17 Frost Drive | £ 177,500 | 0.07 KM |
| 25 Frost Drive | £ 225,000 | 0.07 KM |
| 21 Frost Drive | £ 230,000 | 0.07 KM |
| 8 Frost Drive | £ 193,000 | 0.07 KM |