Church Street, Ribchester, PR3
By Dewhurst Homes
£ 550,000
Reviews
3 out of 5 stars
Dewhurst Homes says ..
A perfect English countryside retreat. This captivating property seamlessly blends period features with modern luxury, offering a truly unique living experience. A fabulous family home in a beautiful setting.
Property Oracle says ..
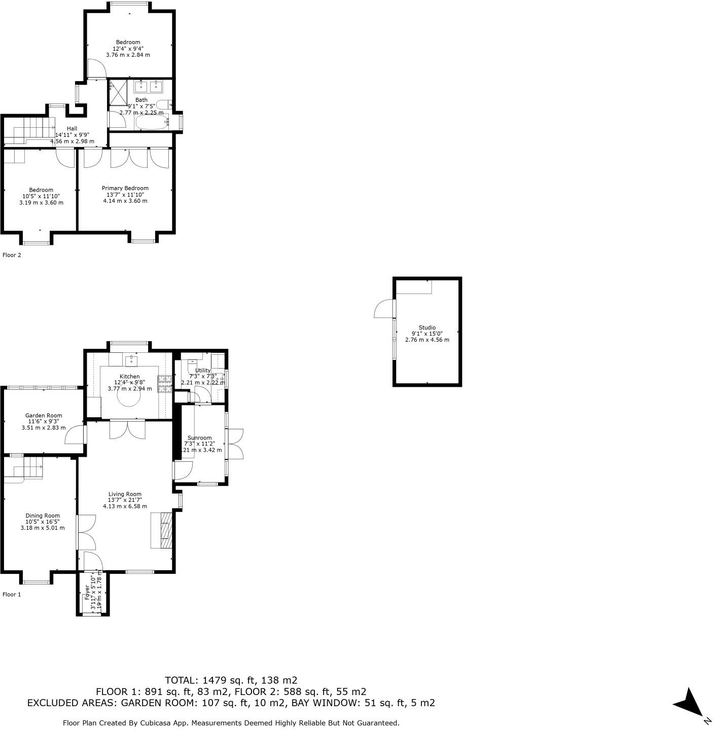
This property is a charming cottage located in the desirable village of Ribchester, Lancashire. The property boasts a traditional style with exposed beams and stonework, which adds character and charm. The cottage has been well-maintained and updated, with a modern kitchen and bathrooms. The property benefits from a good-sized garden with a separate studio/home office, which is a significant added value. The location is excellent, with a highly-rated primary school nearby and convenient access to local amenities. Ribchester is a picturesque village with a strong sense of community. However, the list price is significantly higher than the average price for the area, and the average price per square foot is also higher. This could be due to the property’s unique features, location, and size of the garden. More information on comparable properties is needed to make a conclusive statement on the value.
Therefore, we give this property 7 / 10. *Disclaimer: This is our option and does constitute a recommendation or financial advice. Do your own research. *
- Price
- 6
- Condition
- 9
- Location
- 9
- Land
- 7
- Bedrooms
- 3
- Bathrooms
- 2
- Sqft (est)
- 1,565.92
- Lot (est)
- 1,479.00
The heatmap indicates the level of crime in the area. The color of the heatmap indicates the crime severity and recency.
Metrics Year-on-Year
- Average area value
- 1,023,636.00 £Increased by 133.98 %
- Est sale value
- 502,660.32 £Decreased by 9.32 %
- Average area rental value
- 1,600.00 £/moIncreased by 126.95 %
- Est letting value
- 0.00 £/mo
- Est rental Yield
- 1.88 %Decreased by 2.59 %
- Crime Rate
- 109.00 %Unchanged by 0.00 %
Agent Activity
Dewhurst Homes created the listing.
Nearby Schools
| Name | Type | Ofsted | Distance |
|---|---|---|---|
| Ribchester St Wilfrid'S Church Of England Voluntary Aided Primary School | Voluntary Aided School | Good | 0.11 KM |
| St Mary'S Roman Catholic Primary School, Osbaldeston | Voluntary Aided School | Good | 3.50 KM |
| Brook View School | Other Independent Special School | Good | 3.75 KM |
| Mellor St Mary Church Of England Primary School | Voluntary Aided School | Good | 4.30 KM |
| Balderstone St Leonard'S Church Of England Voluntary Aided Primary School | Voluntary Aided School | Good | 4.42 KM |
Images
Nearby Streets
| Name | Average Price | Average Sqft | Distance |
|---|---|---|---|
| Blackburn Road | £ 525,000 | 0 | 0.00 KM |
Nearby Transport
| Name | NLC | TLC | Distance |
|---|---|---|---|
| Ramsgreave And Wilpshire | 2734 | RGW | 6.97 KM |
| Cherry Tree | 2573 | CYT | 8.90 KM |
| Pleasington | 2752 | PLS | 9.07 KM |
| Mill Hill (Lancs) | 2750 | MLH | 9.13 KM |
| Langho | 2735 | LHO | 9.29 KM |
Nearby Listings
| Address | Price | Type | Score | Distance |
|---|---|---|---|---|
| Church Street, Ribchester, PR3 | £ 310,000 | BUY | 7 / 10 | 0.00 KM |
| Church Street, Ribchester, PR3 | £ 550,000 | BUY | 7 / 10 | 0.00 KM |
| Church Street, Ribchester, Preston | £ 304,950 | BUY | 6 / 10 | 0.01 KM |
| Church Street, Ribchester, PR3 | £ 299,950 | BUY | 6 / 10 | 0.04 KM |
| Water Street, Ribchester, Preston | £ 159,950 | BUY | 5 / 10 | 0.10 KM |
Nearby Properties
| Address | Price | Distance |
|---|---|---|
| 4 Church Street | £ 225,000 | 0.00 KM |
| 73 Church Street | £ 222,500 | 0.00 KM |
| 20 Church Street | £ 300,000 | 0.00 KM |
| 9 Church Street | £ 245,000 | 0.00 KM |
| 21 Church Street | £ 250,000 | 0.00 KM |