Carlisle Crescent, Penshaw, Houghton Le Spring, DH4
By Hegartys Estate Agents
£ 130,000
Reviews
3 out of 5 stars
Hegartys Estate Agents says ..
This property is for sale by the Modern Method of FOR SALE VIA MODERN METHOD OF AUCTION... Auction, meaning the buyer and seller are to Complete within 56 days (the "Reservation Period"). Interested parties personal data will be shared with the Auctioneer (iamsold). If c...
Property Oracle says ..
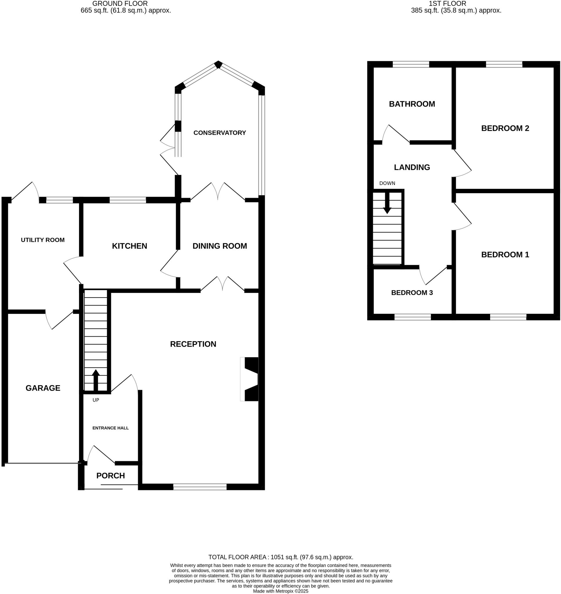
This is a three-bedroom semi-detached house located in Penshaw, Houghton Le Spring. The property features a garden, driveway, and a conservatory. While the interior design is somewhat dated and could benefit from modernization, the house appears structurally sound. It is located near schools and local amenities, making it suitable for families. The asking price of £130,000 seems reasonable given the location, size, and features of the property, especially when compared to the average property price in the area. The property includes a garage, shed and patio area.
Therefore, we give this property 6 / 10. *Disclaimer: This is our option and does constitute a recommendation or financial advice. Do your own research. *
- Price
- 8
- Condition
- 5
- Location
- 6
- Land
- 7
- Bedrooms
- 3
- Bathrooms
- 1
- Sqft (est)
- 1,051.00
The heatmap indicates the level of crime in the area. The color of the heatmap indicates the crime severity and recency.
Metrics Year-on-Year
- Average area value
- 163,932.00 £Decreased by 14.20 %
- Est sale value
- 249,087.00 £Increased by 10.23 %
- Average area rental value
- 598.00 £/moDecreased by 27.07 %
- Est letting value
- 0.00 £/mo
- Est rental Yield
- 4.38 %Decreased by 14.95 %
- Crime Rate
- 6.00 %Unchanged by 0.00 %
Agent Activity
Hegartys Estate Agents created the listing.
Nearby Schools
| Name | Type | Ofsted | Distance |
|---|---|---|---|
| Barnwell Academy | Academy Converter | Good | 0.14 KM |
| Our Lady Queen Of Peace Catholic Primary School | Academy Converter | 0.39 KM | |
| New Penshaw Academy | Academy Sponsor Led | Good | 0.40 KM |
| Shiney Row Primary School | Community School | Good | 0.79 KM |
| Newbottle Primary Academy | Academy Converter | Good | 2.84 KM |
Images
Nearby Streets
| Name | Average Price | Average Sqft | Distance |
|---|---|---|---|
| Sutton Close | £ 0 | 0 | 0.00 KM |
| Station Road | £ 130,833 | 0 | 0.00 KM |
| Ribblesdale | £ 0 | 0 | 0.00 KM |
| Teesdale Avenue | £ 0 | 0 | 0.00 KM |
| Westbourne Terrace | £ 0 | 0 | 0.00 KM |
Nearby Transport
| Name | NLC | TLC | Distance |
|---|---|---|---|
| Chester-Le-Street | 7736 | CLS | 9.47 KM |
Nearby Listings
| Address | Price | Type | Score | Distance |
|---|---|---|---|---|
| Carlisle Crescent, Penshaw, Houghton Le Spring, DH4 | £ 130,000 | BUY | 6 / 10 | 0.00 KM |
| Carlisle Crescent, Penshaw, Houghton Le Spring, Tyne and Wear, DH4 7RD | £ 184,950 | BUY | 7 / 10 | 0.10 KM |
| Thirkeld Place, Penshaw, Houghton Le Spring | £ 135,000 | BUY | 6 / 10 | 0.11 KM |
| Thirkeld Place, Penshaw, Houghton le Spring, DH4 | £ 170,000 | BUY | 7 / 10 | 0.21 KM |
| Whitefield Crescent , Penshaw, Houghton Le Spring | £ 135,000 | BUY | 5 / 10 | 0.23 KM |
Nearby Properties
| Address | Price | Distance |
|---|---|---|
| 48 Carlisle Crescent | £ 51,000 | 0.03 KM |
| 19 Carlisle Crescent | £ 140,000 | 0.03 KM |
| 54 Carlisle Crescent | £ 44,000 | 0.03 KM |
| 24 Carlisle Crescent | £ 146,000 | 0.03 KM |
| 52 Carlisle Crescent | £ 56,500 | 0.03 KM |