Winton Road, Reading, Berkshire
RO

Winton Road, Reading, Berkshire

By Romans

£ 400,000

Reviews

3 out of 5 stars

Romans says ..

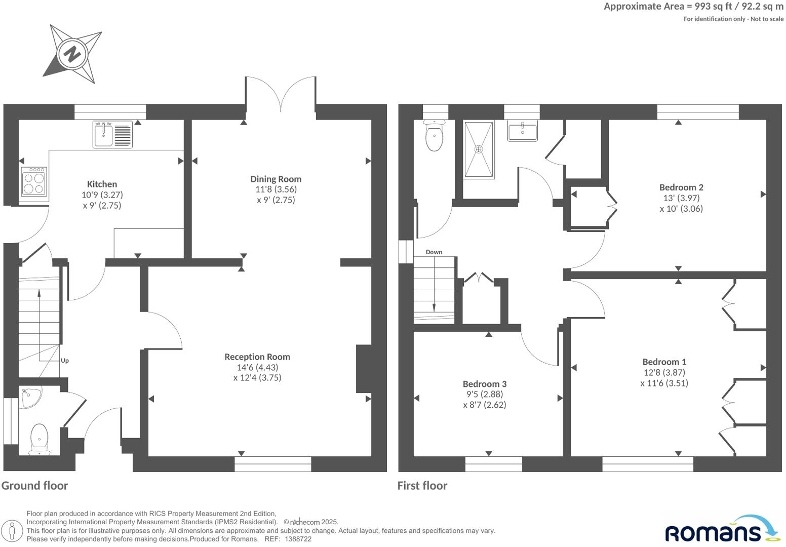
A beautifully presented three-bedroom semi-detached family home, ideally located on the sought-after Winton Road in Reading and offered to the market with no onward chain. The property has been lovingly maintained and offers well-balanced accommodation throughout. On the ground floor y...

Property Oracle says ..

This is a three-bedroom semi-detached house on Winton Road, Reading. The property is in a good location, close to schools and transportation. The house is in reasonable condition but would benefit from some modernisation. It features a garden and off-street parking. The property is listed for £400,000, which is slightly above the average for the area, but reasonable considering the location and size. The property is ideal for a family looking for a home in a convenient location with good schools nearby.

Therefore, we give this property 6 / 10. *Disclaimer: This is our option and does constitute a recommendation or financial advice. Do your own research. *

Price
7
Condition
6
Location
7
Land
7
Bedrooms
3
Bathrooms
1
Sqft (est)
740.50

The heatmap indicates the level of crime in the area. The color of the heatmap indicates the crime severity and recency.

Metrics Year-on-Year

Average area value
261,363.00 £
Decreased by 17.32 %
from 316,116.00 £
Est sale value
262,137.00 £
Increased by 53.25 %
from 171,055.50 £
Average area rental value
1,055.00 £/mo
Decreased by 3.56 %
from 1,094.00 £/mo
Est letting value
740.50 £/mo
from 0.00 £/mo
Est rental Yield
4.84 %
Increased by 16.63 %
from 4.15 %
Crime Rate
5.00 %
Unchanged by 0.00 %
from 5.00 %

Agent Activity

  • Romans created the listing.

Nearby Schools

NameTypeOfstedDistance
Crosfields SchoolOther Independent School0.50 KM
The Ridgeway Primary SchoolCommunity SchoolGood0.69 KM
Christ The King Catholic Primary SchoolVoluntary Aided SchoolRequires improvement0.87 KM
Geoffrey Field Junior SchoolCommunity SchoolGood0.98 KM
Geoffrey Field Infant SchoolCommunity SchoolOutstanding0.98 KM

Images

1388722-19-694554... 1388722-4-694553a... 1388722-16-694554... 1388722-5-694553b... 1388722-1-6945535... 1388722-2-6945537... 1388722-12-694554... 1388722-7-694553e... 1388722-13-694554... 1388722-10-694554... 1388722-14-694554... 1388722-18-694554... 1388722-15-694554... 1388722-8-694553f... 1388722-6-694553c... 1388722-9-6945545... 1388722-17-694554... 1388722-11-694554...

Nearby Streets

NameAverage PriceAverage SqftDistance
Whitley Wood Road £ 450,00000.00 KM
Hilary Close £ 000.00 KM
Willow Gardens £ 000.00 KM
Cherry Grove £ 000.00 KM
Ryhill Way £ 625,00000.00 KM

Nearby Transport

NameNLCTLCDistance
Earley5694EAR4.42 KM
Reading3149RDG4.53 KM
Reading West3160RDW5.48 KM
Winnersh Triangle5698WTI7.04 KM
Winnersh5697WNS8.50 KM

Nearby Listings

AddressPriceTypeScoreDistance
Winton Road, Reading, Berkshire £ 400,000BUY6 / 100.00 KM
Winton Road, Reading, Berkshire, RG2 8HH £ 450,000BUY7 / 100.00 KM
Winton Road, Reading, Berkshire, RG2 8HH £ 430,000BUY7 / 100.00 KM
Brybur Close, Reading, RG2 £ 375,000BUY7 / 100.14 KM
Brybur Close, Reading £ 375,000BUYUnknown0.19 KM

Nearby Properties

AddressPriceDistance
22 Winton Road £ 350,0000.06 KM
30 Winton Road £ 250,0000.06 KM
10 Winton Road £ 174,5000.06 KM
34 Winton Road £ 189,9500.06 KM
1 Winton Road £ 205,0000.06 KM