Clifton Street, Lytham St. Annes, FY8
By McGowan Housing
£ 115,000
Reviews
3 out of 5 stars
McGowan Housing says ..
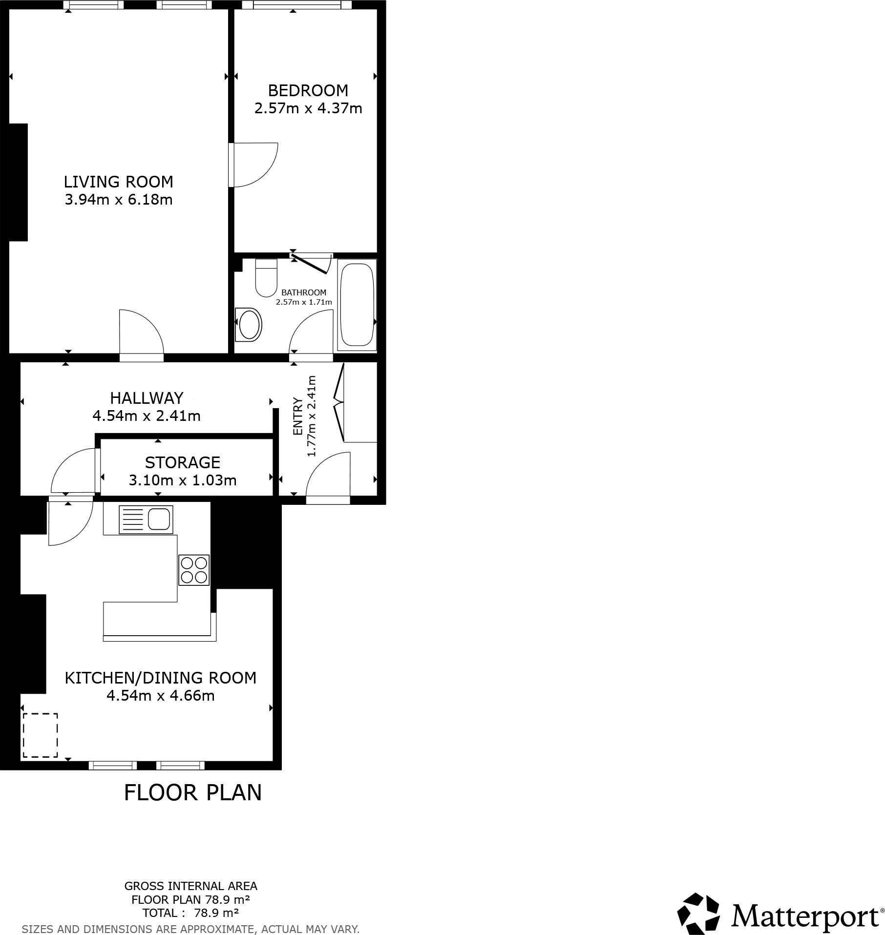
Buy-to-Let Opportunity | Long Term Tenant Currently Situated | 1 Bedroom Flat | Spacious Room | Lounge I Prime Rental Location Within Lytham St. Annes.
Property Oracle says ..
This is a one-bedroom flat located on Clifton Street, Lytham St. Annes. The property is in a central location, close to local amenities and transportation links. The flat appears to be in reasonable condition, with a modern kitchen and bathroom. The asking price of £115,000 seems fair given the location and condition of the property. The flat is relatively small at 247.89 sqft and has very little land.
Therefore, we give this property 6 / 10. *Disclaimer: This is our option and does constitute a recommendation or financial advice. Do your own research. *
- Price
- 8
- Condition
- 7
- Location
- 7
- Land
- 3
- Bedrooms
- 1
- Bathrooms
- 1
- Sqft (est)
- 247.89
The heatmap indicates the level of crime in the area. The color of the heatmap indicates the crime severity and recency.
Metrics Year-on-Year
- Average area value
- 368,758.00 £Decreased by 22.24 %
- Est sale value
- 128,159.13 £Increased by 27.34 %
- Average area rental value
- 1,595.00 £/moDecreased by 3.10 %
- Est letting value
- 495.78 £/moIncreased by 100.00 %
- Est rental Yield
- 5.19 %Increased by 24.46 %
- Crime Rate
- 106.00 %Unchanged by 0.00 %
Agent Activity
McGowan Housing created the listing.
Nearby Schools
| Name | Type | Ofsted | Distance |
|---|---|---|---|
| Lytham Church Of England Voluntary Aided Primary School | Voluntary Aided School | Good | 0.90 KM |
| St Bede'S Catholic High School | Voluntary Aided School | Good | 1.17 KM |
| Lytham Hall Park Primary School | Community School | Outstanding | 1.24 KM |
| Lytham Children'S Centre | Children's Centre Linked Site | 1.34 KM | |
| St Peter'S Catholic Primary School, Lytham | Voluntary Aided School | Good | 1.36 KM |
Images
Nearby Streets
| Name | Average Price | Average Sqft | Distance |
|---|---|---|---|
| Bath Road | £ 0 | 0 | 0.00 KM |
| Moorfield Drive | £ 0 | 0 | 0.00 KM |
| The Mariners | £ 0 | 0 | 0.00 KM |
| The Sidings | £ 0 | 0 | 0.00 KM |
| Elim Court | £ 130,000 | 0 | 0.00 KM |
Nearby Transport
| Name | NLC | TLC | Distance |
|---|---|---|---|
| Lytham | 2670 | LTM | 0.31 KM |
| Ansdell And Fairhaven | 2662 | AFV | 3.39 KM |
| Moss Side | 2675 | MOS | 3.83 KM |
| St Annes-On-The-Sea | 2672 | SAS | 7.55 KM |
Nearby Listings
| Address | Price | Type | Score | Distance |
|---|---|---|---|---|
| Clifton Street, Lytham St. Annes, FY8 | £ 115,000 | BUY | 6 / 10 | 0.00 KM |
| Clifton Street, Lytham St Annes, FY8 | £ 119,950 | BUY | Unknown | 0.02 KM |
| 95 Clifton Street, Lytham, FY8 5EH | £ 495,000 | BUY | 4 / 10 | 0.04 KM |
| Central Beach, Lytham St. Annes, FY8 | £ 425,000 | BUY | 7 / 10 | 0.08 KM |
| Pleasant Court, Pleasant Street, Lytham St. Annes | £ 199,950 | BUY | 5 / 10 | 0.08 KM |
Nearby Properties
| Address | Price | Distance |
|---|---|---|
| 2 Central Beach | £ 250,000 | 0.18 KM |
| 3 South Clifton Street | £ 59,000 | 0.19 KM |
| 2 South Clifton Street | £ 167,000 | 0.19 KM |
| 14 South Clifton Street | £ 38,000 | 0.19 KM |
| 1 South Clifton Street | £ 155,000 | 0.19 KM |