Barton Mill Road, Canterbury
By Page & Co Property Services Ltd
£ 325,000
Reviews
4 out of 5 stars
Page & Co Property Services Ltd says ..
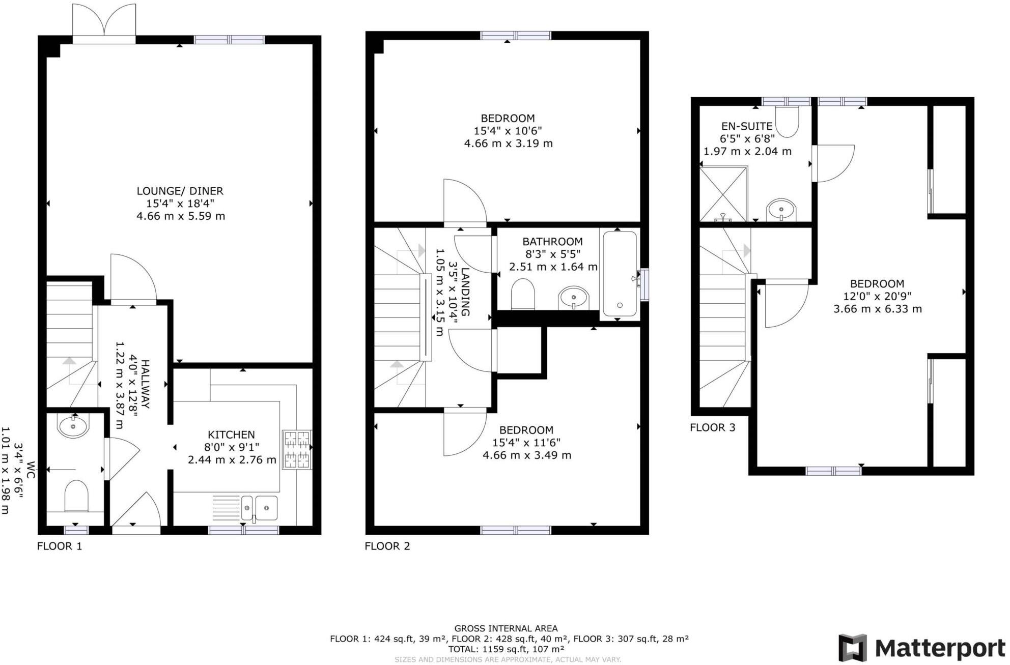
A delightful end terrace home, offering 1159 square ft. of spacious accommodation, including three double bedrooms, two bathrooms and a WC. Convenient location, a short walk from City Centre and excellent amenities, with a garage.
Property Oracle says ..
This property is a 3-bedroom, 2-bathroom end-of-terrace house located in Canterbury, Kent. The property benefits from a good location, with nearby schools, transportation links and amenities. The property is in good condition and well-maintained, with modern fixtures and fittings. The property includes a private rear garden and garage. The list price of £325,000 is slightly above the average price for the area, but considering the property’s condition, location, and additional features, it represents reasonable value for money.
Therefore, we give this property 8 / 10. *Disclaimer: This is our option and does constitute a recommendation or financial advice. Do your own research. *
- Price
- 7
- Condition
- 9
- Location
- 9
- Land
- 7
- Bedrooms
- 3
- Bathrooms
- 2
- Sqft (est)
- 705.08
The heatmap indicates the level of crime in the area. The color of the heatmap indicates the crime severity and recency.
Metrics Year-on-Year
- Average area value
- 315,875.00 £Increased by 78.34 %
- Est sale value
- 325,746.96 £Increased by 121.05 %
- Average area rental value
- 686.00 £/moDecreased by 15.52 %
- Est letting value
- 705.08 £/mo
- Est rental Yield
- 2.61 %Decreased by 52.55 %
- Crime Rate
- 7.00 %Unchanged by 0.00 %
Agent Activity
Page & Co Property Services Ltd marked this listing as sold.
Page & Co Property Services Ltd created the listing.
Nearby Schools
| Name | Type | Ofsted | Distance |
|---|---|---|---|
| Riverside Children'S Centre (Canterbury) | Children's Centre | 0.80 KM | |
| St Thomas' Catholic Primary School, Canterbury | Voluntary Aided School | Outstanding | 0.82 KM |
| Canterbury Christ Church University | Higher Education Institutions | 0.89 KM | |
| St Johns Church Of England Primary School | Voluntary Controlled School | Good | 1.00 KM |
| The King'S School Canterbury | Other Independent School | 1.02 KM |
Images
Nearby Streets
| Name | Average Price | Average Sqft | Distance |
|---|---|---|---|
| Riverside | £ 121,250 | 0 | 0.00 KM |
| Chaucer Road | £ 0 | 0 | 0.00 KM |
| Kingfisher Road | £ 0 | 0 | 0.00 KM |
| Ayrshire Court | £ 0 | 0 | 0.00 KM |
| Malthouse Road | £ 0 | 0 | 0.00 KM |
Nearby Transport
| Name | NLC | TLC | Distance |
|---|---|---|---|
| Canterbury West | 5007 | CBW | 1.76 KM |
| Canterbury East | 5164 | CBE | 2.21 KM |
| Sturry | 5029 | STU | 3.79 KM |
| Bekesbourne | 5198 | BKS | 5.84 KM |
| Chestfield And Swalecliffe | 5200 | CSW | 8.52 KM |
Nearby Listings
| Address | Price | Type | Score | Distance |
|---|---|---|---|---|
| Barton Mill Road, Canterbury | £ 325,000 | BUY | 8 / 10 | 0.00 KM |
| Barton Mill Road, Canterbury | £ 900,000 | BUY | 6 / 10 | 0.03 KM |
| Ripple Court, Barton Mill Road | £ 180,000 | BUY | 6 / 10 | 0.03 KM |
| Barton Mill Road, Canterbury, CT1 | £ 200,000 | BUY | 5 / 10 | 0.03 KM |
| Barton Mill Road, Canterbury, Kent, CT1 | £ 215,000 | BUY | Unknown | 0.03 KM |
Nearby Properties
| Address | Price | Distance |
|---|---|---|
| 40 Barton Mill Road | £ 360,000 | 0.03 KM |
| 42 Barton Mill Road | £ 195,000 | 0.03 KM |
| 51 Barton Mill Road | £ 673,000 | 0.03 KM |
| 33 Barton Mill Road | £ 180,000 | 0.03 KM |
| 38 Barton Mill Road | £ 249,995 | 0.03 KM |