HU
Bearwood Park, Bearwood Path, Winnersh
By Hunters
£ 175,000
Reviews
3 out of 5 stars
Hunters says ..
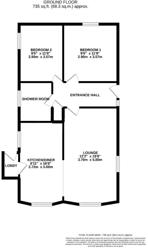
Stunning Fully Refurbished 2-Bedroom Detached Park Home – Bearwood Park Located in the beautiful and peaceful Bearwood Park, this fully refurbished 2 double bedroom detached park home offers modern living in a quiet, well-maintained setting. Perfectly positioned on this sought-after site...
Property Oracle says ..
Therefore, we give this property 7 / 10. *Disclaimer: This is our option and does constitute a recommendation or financial advice. Do your own research. *
- Price
- 8
- Condition
- 8
- Location
- 7
- Land
- 7
- Bedrooms
- 2
- Bathrooms
- 1
- Sqft (est)
- 602.46
The heatmap indicates the level of crime in the area. The color of the heatmap indicates the crime severity and recency.
Metrics Year-on-Year
- Average area value
- 750,000.00 £Increased by 26.30 %
- Est sale value
- 190,377.36 £Decreased by 28.83 %
- Average area rental value
- 2,175.00 £/moIncreased by 10.29 %
- Est letting value
- 0.00 £/moDecreased by 100.00 %
- Est rental Yield
- 3.48 %Decreased by 12.56 %
- Crime Rate
- 6.00 %Unchanged by 0.00 %
from 593,827.00 £
from 267,492.24 £
from 1,972.00 £/mo
from 602.46 £/mo
from 3.98 %
from 6.00 %
Agent Activity
Hunters created the listing.
Nearby Schools
| Name | Type | Ofsted | Distance |
|---|---|---|---|
| Winnersh Children'S Centre | Children's Centre | 1.00 KM | |
| The Forest School | Academy Converter | Good | 1.23 KM |
| Bearwood Primary School | Community School | Good | 1.40 KM |
| Hawkedon Primary School | Community School | Good | 1.90 KM |
| Reddam House Berkshire | Other Independent School | 1.92 KM |
Images
Nearby Streets
| Name | Average Price | Average Sqft | Distance |
|---|---|---|---|
| Rhodes Close | £ 0 | 0 | 0.00 KM |
| Baslow Road | £ 560,000 | 0 | 0.00 KM |
| Mermaid Close | £ 0 | 0 | 0.00 KM |
| Rainbow Park | £ 0 | 0 | 0.00 KM |
| Sidney Linton Way | £ 0 | 0 | 0.00 KM |
Nearby Transport
| Name | NLC | TLC | Distance |
|---|---|---|---|
| Winnersh Triangle | 5698 | WTI | 0.58 KM |
| Winnersh | 5697 | WNS | 1.30 KM |
| Earley | 5694 | EAR | 3.41 KM |
| Twyford | 3155 | TWY | 5.54 KM |
| Wokingham | 5696 | WKM | 5.60 KM |
Nearby Listings
| Address | Price | Type | Score | Distance |
|---|---|---|---|---|
| Bearwood Park, Bearwood Path, Winnersh | £ 175,000 | BUY | 7 / 10 | 0.00 KM |
| Bearwood Park, Bearwood Path, Winnersh, Wokingham, RG41 | £ 195,000 | BUY | 7 / 10 | 0.06 KM |
| Bearwood Park, Bearwood Path, Winnersh, Wokingham, RG41 | £ 170,000 | BUY | 5 / 10 | 0.09 KM |
| Bearwood Park, Bearwood Path, Winnersh, Wokingham, RG41 | £ 135,000 | BUY | 6 / 10 | 0.09 KM |
| Bearwood Path, Winnersh | £ 135,000 | BUY | 6 / 10 | 0.10 KM |
Nearby Properties
| Address | Price | Distance |
|---|---|---|
| 17 Lockyer Close | £ 233,500 | 0.08 KM |
| 5 Lockyer Close | £ 315,000 | 0.08 KM |
| 7 Lockyer Close | £ 355,000 | 0.08 KM |
| 11 Lockyer Close | £ 305,000 | 0.08 KM |
| 16 Lockyer Close | £ 340,000 | 0.08 KM |