Pearsons says ..
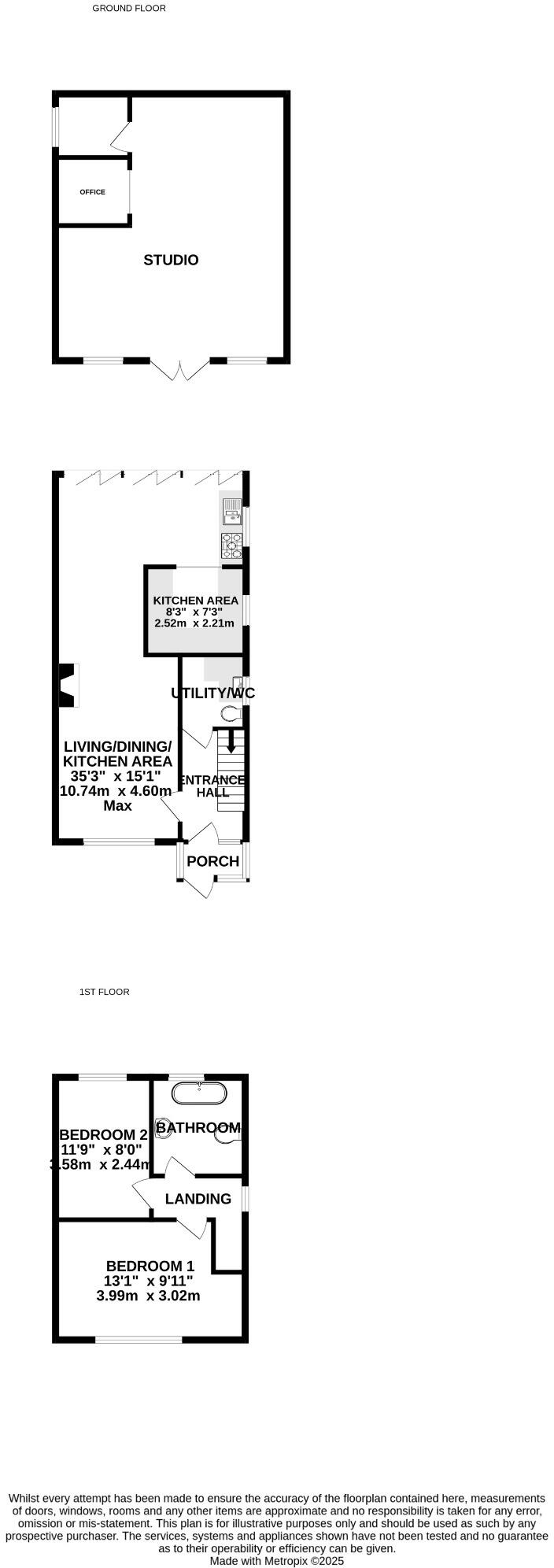
This well presented 2 bedroom semi detached house is situated in an ideal location close to schools and local amenities. The property has been extended and updated throughout by the current owners and benefits from an open planned living/dining/kitchen, utility, refitted bathroom, an office/studi...
Property Oracle says ..
This is a well-presented semi-detached property located in Dibden Purlieu, New Forest. The house features modern interiors, including a recently updated kitchen and bathroom. The property benefits from a manageable garden, off-street parking, and proximity to local schools. The listing price appears competitive when compared to average property values in the area, making it an attractive option for potential buyers. The property also features a utility room, a garage and a patio area.
Therefore, we give this property 7 / 10. *Disclaimer: This is our option and does constitute a recommendation or financial advice. Do your own research. *
- Price
- 7
- Condition
- 8
- Location
- 7
- Land
- 7
- Bedrooms
- 2
- Bathrooms
- 1
- Sqft (est)
- 825.91
The heatmap indicates the level of crime in the area. The color of the heatmap indicates the crime severity and recency.
Metrics Year-on-Year
- Average area value
- 471,111.00 £Increased by 12.11 %
- Est sale value
- 445,165.49 £Increased by 34.75 %
- Average area rental value
- 1,283.00 £/moDecreased by 19.91 %
- Est letting value
- 825.91 £/moUnchanged by 0.00 %
- Est rental Yield
- 3.27 %Decreased by 28.45 %
- Crime Rate
- 11.00 %Unchanged by 0.00 %
Agent Activity
Pearsons created the listing.
Nearby Schools
| Name | Type | Ofsted | Distance |
|---|---|---|---|
| Wildground Infant School | Community School | Good | 0.33 KM |
| Wildground Junior School | Community School | Good | 0.42 KM |
| Orchard Infant School | Community School | Outstanding | 1.04 KM |
| Orchard Junior School | Community School | Good | 1.04 KM |
| Noadswood School | Academy Converter | Good | 1.10 KM |
Images
Nearby Streets
| Name | Average Price | Average Sqft | Distance |
|---|---|---|---|
| Armitage Avenue | £ 0 | 0 | 0.00 KM |
| Whitewater Rise | £ 333,317 | 0 | 0.00 KM |
| Ratcliffe Road | £ 399,500 | 0 | 0.00 KM |
| Pine Close | £ 0 | 0 | 0.00 KM |
| Hartley Walk | £ 317,500 | 0 | 0.00 KM |
Nearby Transport
| Name | NLC | TLC | Distance |
|---|---|---|---|
| Southampton Central | 5932 | SOU | 6.20 KM |
| Woolston | 5925 | WLS | 6.43 KM |
| Millbrook (Hants) | 5909 | MBK | 7.12 KM |
| Sholing | 5930 | SHO | 7.12 KM |
| Netley | 5911 | NTL | 8.03 KM |
Nearby Listings
| Address | Price | Type | Score | Distance |
|---|---|---|---|---|
| Crete Road, Dibden Purlieu | £ 349,950 | BUY | 7 / 10 | 0.00 KM |
| Chaveney Close, Dibden Purlieu, SO45 | £ 480,000 | BUY | 6 / 10 | 0.12 KM |
| Crete Road, Dibden Purlieu, Southampton | £ 430,000 | BUY | Unknown | 0.14 KM |
| Chaveney Close, Dibden Purlieu | £ 485,000 | BUY | 7 / 10 | 0.15 KM |
| Corbould Road, Dibden Purlieu, Southampton, Hampshire, SO45 | £ 475,000 | BUY | 7 / 10 | 0.19 KM |
Nearby Properties
| Address | Price | Distance |
|---|---|---|
| 24 Crete Road | £ 139,950 | 0.02 KM |
| 38 Crete Road | £ 229,000 | 0.02 KM |
| 26 Crete Road | £ 217,500 | 0.02 KM |
| 32 Crete Road | £ 297,000 | 0.02 KM |
| 11a Crete Road | £ 155,000 | 0.04 KM |