The Agency UK says ..
Modern Urban Living in the Heart of the High Street, A stunning recently converted 2-bedroom apartment offering contemporary design, a private roof terrace, and off-street parking, set in the vibrant centre of Thornbury
Property Oracle says ..
This is a modern two-bedroom apartment located on High Street in Easton, Bristol. The property is in good condition, with a modern kitchen and bathroom. It benefits from a terrace, providing outdoor space. The location is central and well-connected, with nearby transportation options and schools. The asking price of £235,000 appears reasonable given the property’s size, condition, and location. The apartment would be ideally suited to a young professional or small family.
Therefore, we give this property 7 / 10. *Disclaimer: This is our option and does constitute a recommendation or financial advice. Do your own research. *
- Price
- 8
- Condition
- 8
- Location
- 7
- Land
- 6
- Bedrooms
- 2
- Bathrooms
- 1
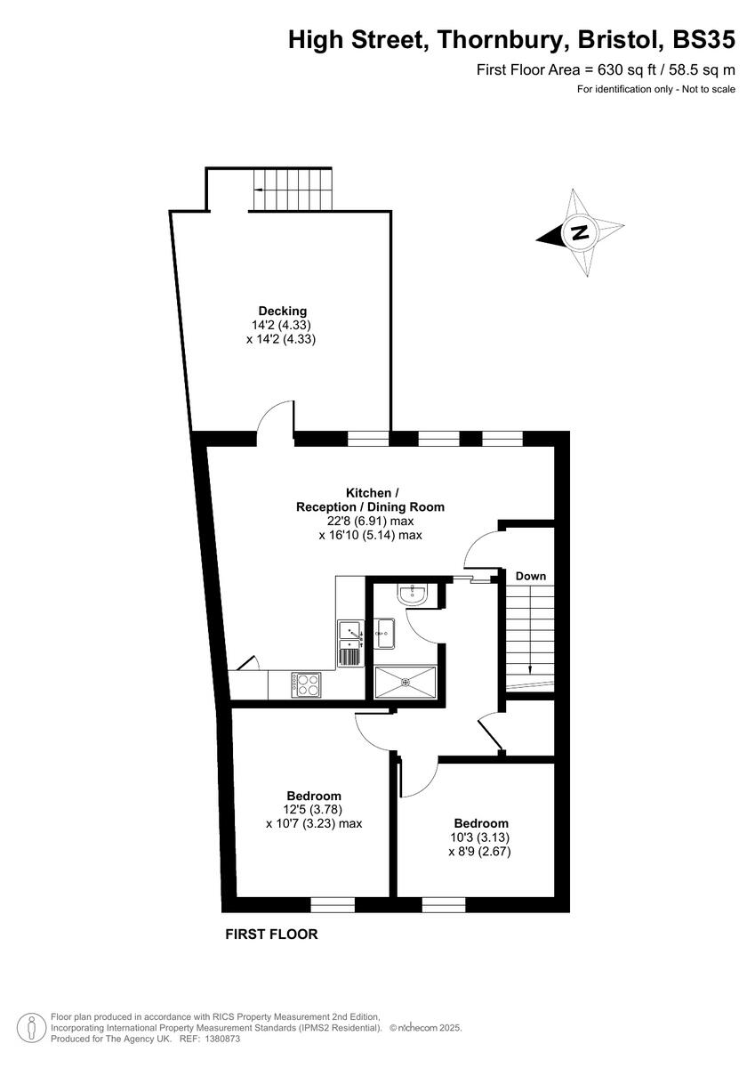
- Sqft (est)
- 796.00
The heatmap indicates the level of crime in the area. The color of the heatmap indicates the crime severity and recency.
Metrics Year-on-Year
- Average area value
- 505,125.00 £Increased by 36.80 %
- Est sale value
- 421,880.00 £Increased by 32.83 %
- Average area rental value
- 1,447.00 £/moDecreased by 20.23 %
- Est letting value
- 796.00 £/moUnchanged by 0.00 %
- Est rental Yield
- 3.44 %Decreased by 41.69 %
- Crime Rate
- 10.00 %Unchanged by 0.00 %
Agent Activity
The Agency UK created the listing.
Nearby Schools
| Name | Type | Ofsted | Distance |
|---|---|---|---|
| Bannerman Road Community Academy | Academy Sponsor Led | Requires improvement | 0.41 KM |
| Bannerman Road Children'S Centre | Children's Centre | 0.60 KM | |
| The City Academy Bristol | Academy Sponsor Led | Good | 0.73 KM |
| May Park Primary School | Academy Sponsor Led | 0.79 KM | |
| The Limes Nursery School & Children'S Centre | Children's Centre | 0.80 KM |
Images
Nearby Streets
| Name | Average Price | Average Sqft | Distance |
|---|---|---|---|
| Chapel Road | £ 0 | 0 | 0.00 KM |
| Cato Street | £ 425,000 | 0 | 0.00 KM |
| Roman Road | £ 345,000 | 0 | 0.00 KM |
| Kingsley Road | £ 250,000 | 0 | 0.00 KM |
| Brixton Road | £ 340,000 | 0 | 0.00 KM |
Nearby Transport
| Name | NLC | TLC | Distance |
|---|---|---|---|
| Stapleton Road | 3250 | SRD | 0.40 KM |
| Lawrence Hill | 3225 | LWH | 0.99 KM |
| Bristol Temple Meads | 3231 | BRI | 2.84 KM |
| Montpelier | 3203 | MTP | 2.88 KM |
| Redland | 3247 | RDA | 4.04 KM |
Nearby Listings
| Address | Price | Type | Score | Distance |
|---|---|---|---|---|
| High Street, Bristol, BS35 | £ 235,000 | BUY | 7 / 10 | 0.00 KM |
| Greenbank Avenue West, Easton, Bristol, BS5 | £ 375,000 | BUY | 6 / 10 | 0.05 KM |
| Anstey Street, Easton, Bristol, BS5 | £ 300,000 | BUY | 5 / 10 | 0.05 KM |
| Anstey Street, Easton, Bristol BS5 6DH | £ 290,000 | BUY | 5 / 10 | 0.06 KM |
| Anstey Street, Easton | £ 385,000 | BUY | 7 / 10 | 0.06 KM |
Nearby Properties
| Address | Price | Distance |
|---|---|---|
| 45 High Street | £ 266,000 | 0.02 KM |
| 75 High Street | £ 75,000 | 0.02 KM |
| 27 High Street | £ 350,000 | 0.02 KM |
| 81 High Street | £ 260,000 | 0.02 KM |
| 73 High Street | £ 120,000 | 0.02 KM |