SI
Coopers Lane, Sellindge, TN25
By Simpson & Hall
£ 800,000
Reviews
3 out of 5 stars
Simpson & Hall says ..
“Unique” is an over used expression within estate agency - but nestled on a quiet country lane on the outskirts of the village of Sellindge, stands his one-of-a-kind eco-friendly detached home.
Property Oracle says ..
Therefore, we give this property 7 / 10. *Disclaimer: This is our option and does constitute a recommendation or financial advice. Do your own research. *
- Price
- 7
- Condition
- 8
- Location
- 8
- Land
- 7
- Bedrooms
- 4
- Bathrooms
- 3
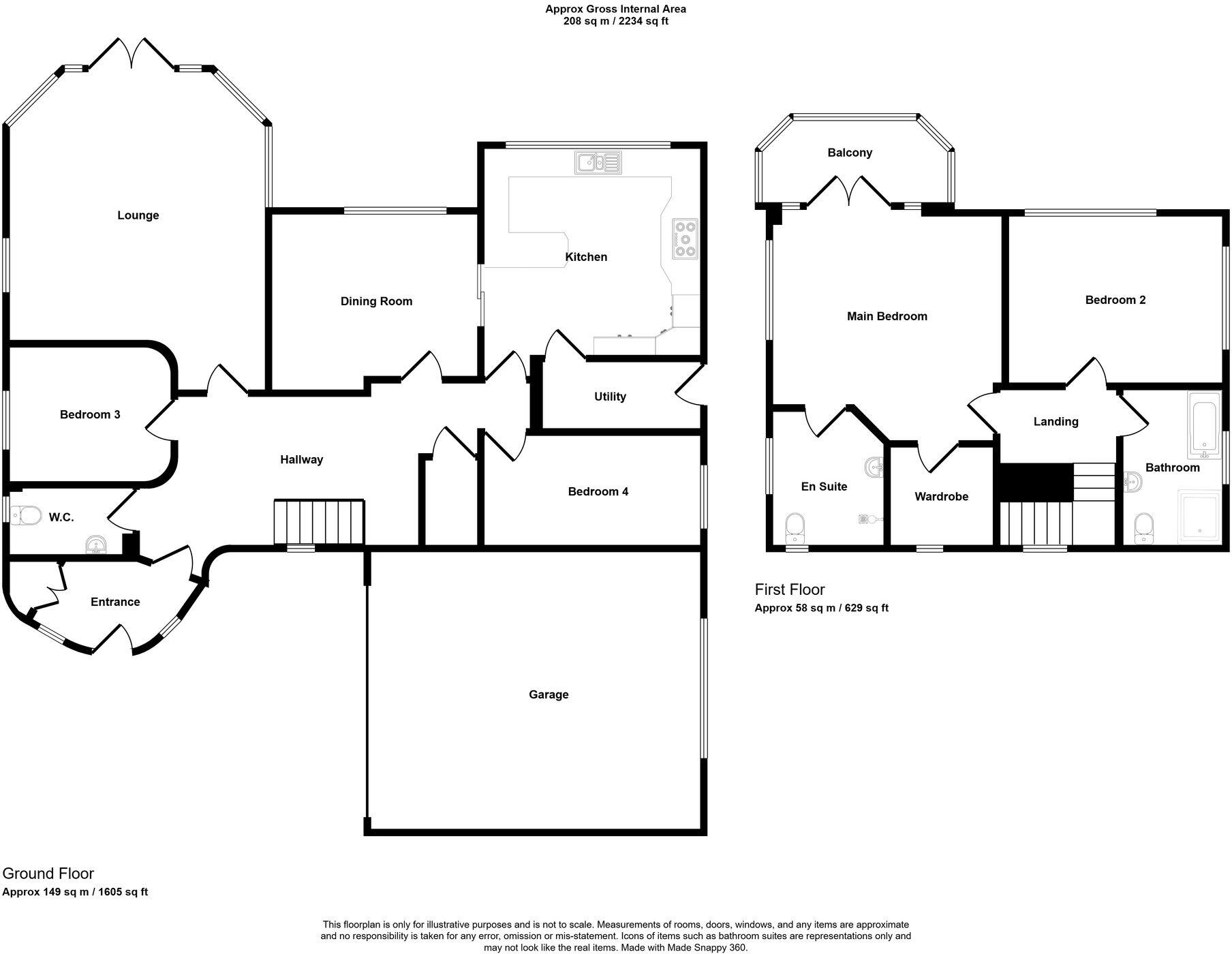
- Sqft (est)
- 1,506.95
The heatmap indicates the level of crime in the area. The color of the heatmap indicates the crime severity and recency.
Metrics Year-on-Year
- Average area value
- 453,050.00 £Decreased by 26.49 %
- Est sale value
- 741,419.40 £Increased by 11.56 %
- Average area rental value
- 900.00 £/moDecreased by 20.56 %
- Est letting value
- 0.00 £/mo
- Est rental Yield
- 2.38 %Increased by 7.69 %
- Crime Rate
- 71.00 %Unchanged by 0.00 %
from 616,312.00 £
from 664,564.95 £
from 1,133.00 £/mo
from 0.00 £/mo
from 2.21 %
from 71.00 %
Agent Activity
Simpson & Hall created the listing.
Nearby Schools
| Name | Type | Ofsted | Distance |
|---|---|---|---|
| Sellindge Primary School | Community School | Outstanding | 2.19 KM |
| Smeeth Community Primary School | Foundation School | Requires improvement | 2.31 KM |
| Brabourne Church Of England Primary School | Voluntary Controlled School | Good | 2.92 KM |
| Caldecott Foundation School | Non-maintained Special School | Good | 3.60 KM |
| Aldington Primary School | Foundation School | Good | 4.71 KM |
Images
Nearby Streets
| Name | Average Price | Average Sqft | Distance |
|---|---|---|---|
| Lilyvale Road | £ 0 | 0 | 0.00 KM |
Nearby Transport
| Name | NLC | TLC | Distance |
|---|---|---|---|
| Westenhanger | 5030 | WHA | 6.24 KM |
| Sandling | 5025 | SDG | 9.36 KM |
Nearby Listings
| Address | Price | Type | Score | Distance |
|---|---|---|---|---|
| Coopers Lane, Sellindge, TN25 | £ 800,000 | BUY | 7 / 10 | 0.00 KM |
| Coopers Lane, Sellindge, TN25 | £ 550,000 | BUY | 7 / 10 | 0.00 KM |
| Sellindge, Kent | £ 650,000 | BUY | 7 / 10 | 0.10 KM |
| Coopers Lane, Sellindge, TN25 | £ 800,000 | BUY | 7 / 10 | 0.13 KM |
| Stone Hill, Sellindge | £ 400,000 | BUY | 6 / 10 | 0.24 KM |
Nearby Properties
| Address | Price | Distance |
|---|---|---|
| York Cottage | £ 377,000 | 0.01 KM |
| Tanglewood | £ 498,000 | 0.01 KM |
| Milland | £ 520,000 | 0.28 KM |
| Wentways | £ 420,000 | 0.28 KM |
| Maison Dieu | £ 495,000 | 0.56 KM |