, Parkgate, Knutsford
ME

, Parkgate, Knutsford

By Meller Braggins

£ 460,000

Reviews

3 out of 5 stars

Meller Braggins says ..

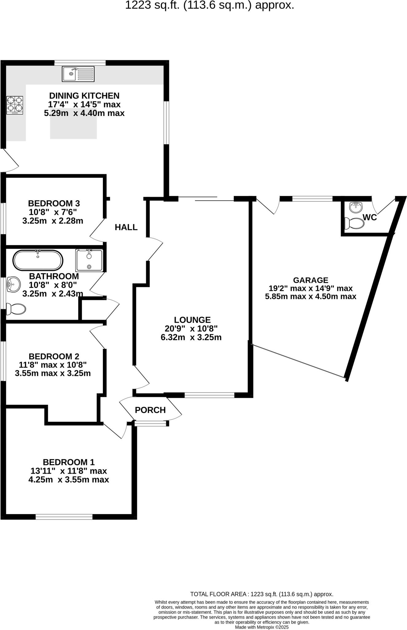
An exceptionally well presented detached three bedroom true family bungalow nestling in 0.2 acres of mature gardens and grounds. The property offers a high level of accommodation and there is great potential to extend to create a larger family home (subject to obtaining the relevant planning c...

Property Oracle says ..

This property is a 3-bedroom, 1-bathroom house located in Parkgate, Knutsford, Cheshire. The list price is £460,000, and the property has a plot size of 1,223 sqft and is 1,176.69 sqft. The average price for properties in the area is £626,016, with an average price per sqft of £489. The property appears to be in good condition based on the provided photos. It has a well-maintained garden, and the interior looks recently updated. The location is excellent, with nearby schools and transportation links. Considering the condition, location, and land size, the list price seems reasonable, although slightly below the average price for the area. However, the lower price may be justified by the smaller size compared to the average property in the area.

Therefore, we give this property 7 / 10. *Disclaimer: This is our option and does constitute a recommendation or financial advice. Do your own research. *

Price
7
Condition
8
Location
9
Land
7
Bedrooms
3
Bathrooms
1
Sqft (est)
1,176.69
Lot (est)
1,223.00

The heatmap indicates the level of crime in the area. The color of the heatmap indicates the crime severity and recency.

Metrics Year-on-Year

Average area value
678,106.00 £
Increased by 15.18 %
from 588,724.00 £
Est sale value
689,540.34 £
Increased by 35.96 %
from 507,153.39 £
Average area rental value
1,651.00 £/mo
Decreased by 17.16 %
from 1,993.00 £/mo
Est letting value
1,176.69 £/mo
Unchanged by 0.00 %
from 1,176.69 £/mo
Est rental Yield
2.92 %
Decreased by 28.08 %
from 4.06 %
Crime Rate
37.00 %
Unchanged by 0.00 %
from 37.00 %

Agent Activity

  • Meller Braggins created the listing.

Nearby Schools

NameTypeOfstedDistance
Manor Park Primary School And NurseryAcademy Converter0.57 KM
Adelaide Heath AcademyAcademy Special Sponsor Led0.63 KM
Knutsford Children'S CentreChildren's Centre0.65 KM
St Vincent'S Catholic Primary SchoolVoluntary Aided SchoolGood0.83 KM
Egerton Primary SchoolAcademy Converter2.29 KM

Images

parkgate.jpg DSC03099-Edit.jpg DSC03106-Edit.jpg DSC03096-Edit-Edit.jpg DSC03069.jpg DSC03074.jpg DSC03072.jpg DSC03077.jpg DSC03112.jpg DSC03115.jpg DSC03120.jpg DSC03078.jpg DSC03079.jpg DSC03081.jpg DSC03082.jpg DSC03084.jpg DSC03085.jpg DSC03087-Edit.jpg DSC03089.jpg site plan.jpg front.jpg garden 1.jpg garden.jpg

Nearby Streets

NameAverage PriceAverage SqftDistance
Brookdale Avenue £ 000.00 KM
Drinkwater Close £ 000.00 KM
Jackson Road £ 425,00000.00 KM
Beechwood £ 000.00 KM
Lichfield Close £ 000.00 KM

Nearby Transport

NameNLCTLCDistance
Knutsford2848KNF1.88 KM
Mobberley2849MOB3.35 KM
Ashley2850ASY5.41 KM
Hale (Manchester)2845HAL7.77 KM
Plumley2308PLM7.97 KM

Nearby Listings

AddressPriceTypeScoreDistance
, Parkgate, Knutsford £ 460,000BUY7 / 100.00 KM
Parkgate, Knutsford £ 325,000BUY6 / 100.12 KM
Northfields, Knutsford £ 180,000BUY6 / 100.15 KM
Leigh Avenue, Knutsford £ 335,000BUY8 / 100.16 KM
Leigh Avenue, Knutsford £ 360,000BUY7 / 100.16 KM

Nearby Properties

AddressPriceDistance
4 Oakfield Avenue £ 165,0000.07 KM
12 Oakfield Avenue £ 313,0000.07 KM
16 Oakfield Avenue £ 97,0000.07 KM
9 Oakfield Avenue £ 163,0000.07 KM
22 Parkgate £ 217,0000.09 KM