Stockton Hill, Dawlish
ST

Stockton Hill, Dawlish

By Stags

£ 625,000

Reviews

3 out of 5 stars

Stags says ..

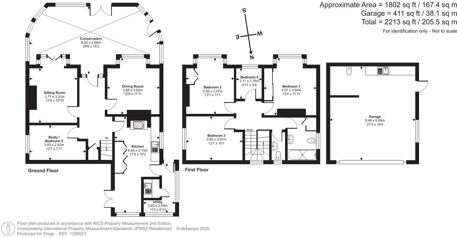
A substantial detached residence enjoying panoramic sea and countryside views, set within a generous plot and not sold in over fifty years. EPC: D

Property Oracle says ..

Therefore, we give this property 7 / 10. *Disclaimer: This is our option and does constitute a recommendation or financial advice. Do your own research. *

Price
7
Condition
6
Location
8
Land
7
Bedrooms
4
Bathrooms
1

The heatmap indicates the level of crime in the area. The color of the heatmap indicates the crime severity and recency.

Metrics Year-on-Year

Average area value
285,875.00 £
Decreased by 12.04 %
from 325,012.00 £
Average area rental value
1,067.00 £/mo
Decreased by 3.61 %
from 1,107.00 £/mo
Est rental Yield
4.48 %
Increased by 9.54 %
from 4.09 %
Crime Rate
5.00 %
Unchanged by 0.00 %
from 5.00 %

Agent Activity

  • Stags created the listing.

Nearby Schools

NameTypeOfstedDistance
Oakwood Court College (Phoenix Learning Care Ltd)Special Post 16 InstitutionGood0.48 KM
Education And Care (Devon) Ltd At 7-9 Oak Park VillasMiscellaneous0.51 KM
Gatehouse Primary AcademyAcademy Sponsor LedSerious Weaknesses0.64 KM
Dawlish CollegeAcademy Converter0.94 KM
Westcliff Primary AcademyAcademy Sponsor LedGood0.98 KM

Images

Rear view Front 1290623-31-68261eab1c632-ARW.jpg Sitting room Sun-room 1290623-23-68261cfed93eb-ARW.jpg Kitchen/Breakfast room 1290623-35-68261ef930567-ARW.jpg 1290623-27-68261dc8584bb-ARW.jpg 1290623-13-68261c055e62c-ARW.jpg Bedroom 1290623-19-68261c1eb2156-ARW.jpg 1290623-21-68261c28c3760-ARW.jpg 1290623-10-68261bf6e7dd4-ARW.jpg 13-1290623-15-68261c0e3f903-ARW-13.jpg Rear garden 1290623-1-68261900141aa-ARW.jpg View 1290623-4-68261962e2e81-ARW.jpg 1290623-1-68261a68441d3-ARW.jpg 1290623-3-68261ac7c541d-ARW.jpg 1290623-4-68261b106a0e2-ARW.jpg 1290623-6-68261b4455445-ARW.jpg 1290623-7-68261bb967e25-ARW.jpg

Nearby Streets

NameAverage PriceAverage SqftDistance
Sutton Close £ 390,00000.00 KM
Wallace Avenue £ 425,00000.00 KM
Orchard Close £ 300,00000.00 KM
Priory Road £ 500,00000.00 KM
Honeysuckle Drive £ 500,00000.00 KM

Nearby Transport

NameNLCTLCDistance
Dawlish3408DWL0.75 KM
Dawlish Warren3409DWW3.40 KM
Teignmouth3430TGM4.81 KM
Starcross3413SCS5.48 KM
Exmouth5756EXM7.43 KM

Nearby Listings

AddressPriceTypeScoreDistance
Stockton Hill, Dawlish £ 625,000BUY7 / 100.00 KM
Stockton Hill, Dawlish, Devon, EX7 £ 800,000BUY6 / 100.07 KM
Stockton Hill, Dawlish, EX7 £ 800,000BUY8 / 100.10 KM
1.63 acres of land at Sutton Close, Dawlish £ 60,000BUY6 / 100.10 KM
Priory Park Road, Dawlish, EX7 £ 249,950BUY7 / 100.13 KM

Nearby Properties

AddressPriceDistance
Hillcrest £ 435,0000.09 KM
5 Wallace Avenue £ 340,0000.10 KM
9 Wallace Avenue £ 500,0000.10 KM
1 Wallace Avenue £ 240,0000.10 KM
7 Wallace Avenue £ 243,0000.10 KM