Christleton Avenue, Heaton Chapel
By Gascoigne Halman
£ 400,000
Reviews
3 out of 5 stars
Gascoigne Halman says ..
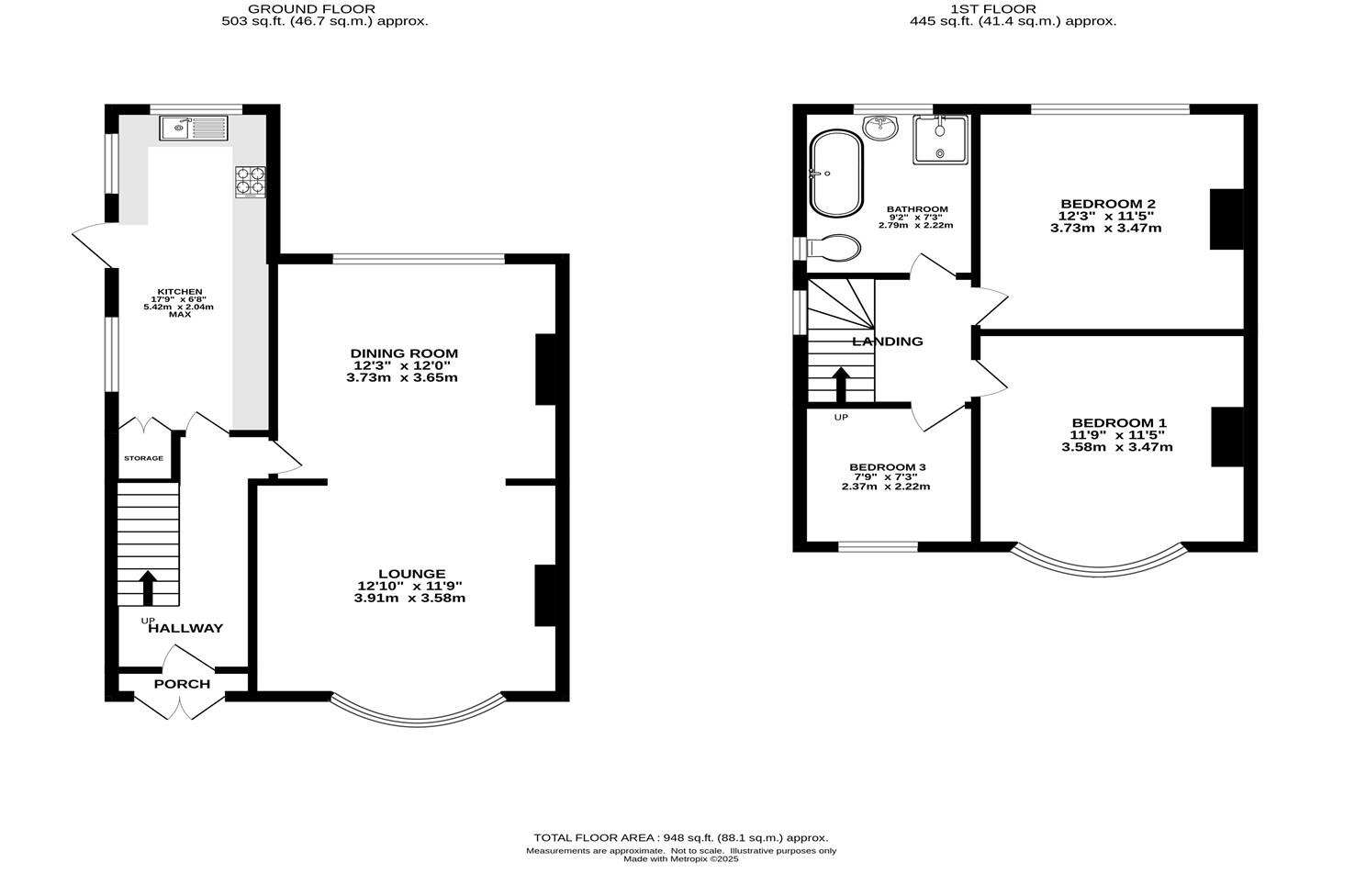
Situated on a premium residential cul de sac in close vicinity to the centre of Heaton Chapel sits this immaculately presented three-bedroom semi-detached property offering fantastic family living, within easy walking distance to the local amenities, schools and transport links.
Property Oracle says ..
This property is a 3-bedroom semi-detached house located in Heaton Chapel, Stockport. The property benefits from being close to several highly-rated primary schools, including Broadstone Hall Primary School and St Thomas’ Church of England Primary School, both within a 1km radius. Heaton Chapel train station is also conveniently located nearby, providing easy access to Manchester and other areas. The house itself appears to be well-maintained and in good condition, with modern updates to the kitchen and bathroom. The property includes a garden and detached garage. The asking price of £400,000 is slightly higher than the average price for the area, but considering the property’s condition, location, and additional features, it could be considered reasonable for the right buyer. The average price per sqft in the area is £295.00, and while the sqft of this property is not provided, the asking price is comparable to other similar properties in the area.
Therefore, we give this property 7 / 10. *Disclaimer: This is our option and does constitute a recommendation or financial advice. Do your own research. *
- Price
- 7
- Condition
- 8
- Location
- 9
- Land
- 7
- Bedrooms
- 3
- Bathrooms
- 1
- Sqft (est)
- 948.00
The heatmap indicates the level of crime in the area. The color of the heatmap indicates the crime severity and recency.
Metrics Year-on-Year
- Average area value
- 288,000.00 £Decreased by 2.19 %
- Est sale value
- 284,400.00 £Increased by 3.09 %
- Average area rental value
- 1,220.00 £/moIncreased by 10.71 %
- Est letting value
- 948.00 £/moUnchanged by 0.00 %
- Est rental Yield
- 5.08 %Increased by 13.14 %
- Crime Rate
- 0.00 %
Agent Activity
Gascoigne Halman created the listing.
Nearby Schools
| Name | Type | Ofsted | Distance |
|---|---|---|---|
| Broadstone Hall Primary School | Community School | Good | 0.49 KM |
| St Thomas' Church Of England Primary School Heaton Chapel | Voluntary Aided School | Good | 0.69 KM |
| St Anne'S Roman Catholic High School, A Voluntary Academy | Academy Sponsor Led | 0.83 KM | |
| Whitehill Primary School | Community School | Good | 0.86 KM |
| Broadstones School | Other Independent Special School | Good | 0.88 KM |
Images
Nearby Streets
| Name | Average Price | Average Sqft | Distance |
|---|---|---|---|
| School Lane | £ 0 | 0 | 0.00 KM |
| Holly Road | £ 0 | 0 | 0.00 KM |
| Marlborough Drive | £ 400,000 | 0 | 0.00 KM |
| Lawton Road | £ 0 | 0 | 0.00 KM |
| Keswick Road | £ 0 | 0 | 0.00 KM |
Nearby Transport
| Name | NLC | TLC | Distance |
|---|---|---|---|
| Heaton Chapel | 2861 | HTC | 0.79 KM |
| Reddish South | 2857 | RDS | 1.73 KM |
| Stockport | 2771 | SPT | 2.75 KM |
| Levenshulme | 2862 | LVM | 2.84 KM |
| Reddish North | 2979 | RDN | 2.95 KM |
Nearby Listings
| Address | Price | Type | Score | Distance |
|---|---|---|---|---|
| Christleton Avenue, Heaton Chapel | £ 400,000 | BUY | 7 / 10 | 0.00 KM |
| Downham Road, Heaton Chapel, Stockport | £ 399,995 | BUY | 6 / 10 | 0.09 KM |
| Whirley Close, Heaton Chapel | £ 270,000 | BUY | 7 / 10 | 0.18 KM |
| Whirley Close, Heaton Chapel, Stockport, SK4 | £ 300,000 | BUY | 7 / 10 | 0.20 KM |
| Grange Avenue, Heaton Chapel, Stockport, SK4 | £ 470,000 | BUY | 8 / 10 | 0.21 KM |
Nearby Properties
| Address | Price | Distance |
|---|---|---|
| 21 Christleton Avenue | £ 320,000 | 0.09 KM |
| 4 Christleton Avenue | £ 285,000 | 0.09 KM |
| 12 Christleton Avenue | £ 278,000 | 0.09 KM |
| 3 Christleton Avenue | £ 372,500 | 0.09 KM |
| 19 Christleton Avenue | £ 278,000 | 0.09 KM |