FAIRFIELD ROAD, SCARTHO, GRIMSBY
By Martin Maslin
£ 180,000
Reviews
3 out of 5 stars
Martin Maslin says ..
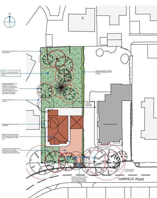
Currently forming part of the established garden of a classic house on Fairfield Road, the availability of this building plot represents a rare opportunity to create a wonderful new home in a mature setting. The plot is rectangular in shape with Outline Planning Permission for the erection o (cont.)
Property Oracle says ..
This property on Fairfield Road, Scartho, Grimsby, presents a mixed bag of features. Its location in a sought-after residential area with good schools and transport links is a definite plus. The substantial garden offers considerable potential, although it currently requires some landscaping work. The photographs suggest the property’s condition is fair, with potential for improvement through modernisation and maintenance. The lack of information regarding the property’s internal features (number of bedrooms and bathrooms, square footage) makes a definitive assessment impossible. However, comparing the list price to nearby property sales suggests that it is priced competitively within the local market, especially considering the garden’s size. A potential buyer should factor in the costs of renovation and landscaping to accurately assess the overall value.
Therefore, we give this property 6 / 10. *Disclaimer: This is our option and does constitute a recommendation or financial advice. Do your own research. *
- Price
- 7
- Condition
- 4
- Location
- 7
- Land
- 6
- Bedrooms
- 0
- Bathrooms
- 0
The heatmap indicates the level of crime in the area. The color of the heatmap indicates the crime severity and recency.
Metrics Year-on-Year
- Average area value
- 195,586.00 £Decreased by 8.31 %
- Average area rental value
- 950.00 £/moIncreased by 2.70 %
- Est rental Yield
- 5.83 %Increased by 12.12 %
- Crime Rate
- 8.00 %Unchanged by 0.00 %
Agent Activity
Martin Maslin created the listing.
Nearby Schools
| Name | Type | Ofsted | Distance |
|---|---|---|---|
| Scartho Outreach | Children's Centre Linked Site | 0.34 KM | |
| Fairfield Academy | Academy Converter | Good | 0.38 KM |
| Scartho Nursery School | Local Authority Nursery School | Outstanding | 0.82 KM |
| Springfield Primary Academy | Academy Converter | Good | 1.08 KM |
| Waltham Leas Primary Academy | Academy Converter | Good | 1.43 KM |
Images
Nearby Streets
| Name | Average Price | Average Sqft | Distance |
|---|---|---|---|
| Royal Gardens | £ 0 | 0 | 0.00 KM |
| Dawlish Road | £ 290,000 | 0 | 0.00 KM |
| Clovelly Way | £ 0 | 0 | 0.00 KM |
| Cross Lane | £ 0 | 0 | 0.00 KM |
| Matthew Telford Park | £ 0 | 0 | 0.00 KM |
Nearby Transport
| Name | NLC | TLC | Distance |
|---|---|---|---|
| Grimsby Town | 6280 | GMB | 3.80 KM |
| Grimsby Docks | 6276 | GMD | 5.36 KM |
| New Clee | 6289 | NCE | 6.20 KM |
| Great Coates | 6275 | GCT | 6.41 KM |
| Cleethorpes | 6274 | CLE | 8.07 KM |
Nearby Listings
| Address | Price | Type | Score | Distance |
|---|---|---|---|---|
| FAIRFIELD ROAD, SCARTHO, GRIMSBY | £ 180,000 | BUY | 6 / 10 | 0.00 KM |
| Fairfield Road, Grimsby, DN33 | £ 185,000 | BUY | 7 / 10 | 0.07 KM |
| Fairfield Avenue, Grimsby, N.E. Lincs, DN33 3DS | £ 199,950 | BUY | 7 / 10 | 0.10 KM |
| Fairfield Avenue, Scartho, Grimsby | £ 190,000 | BUY | 7 / 10 | 0.11 KM |
| DOVEDALE DRIVE, SCARTHO, GRIMSBY | £ 309,950 | BUY | Unknown | 0.12 KM |
Nearby Properties
| Address | Price | Distance |
|---|---|---|
| 15 Fairfield Road | £ 178,750 | 0.06 KM |
| 9a Fairfield Road | £ 185,000 | 0.06 KM |
| 5 Fairfield Road | £ 162,000 | 0.10 KM |
| 19 Fairfield Road | £ 113,000 | 0.10 KM |
| 3 Fairfield Road | £ 166,500 | 0.10 KM |